
RENR5852
JANUARY 2002
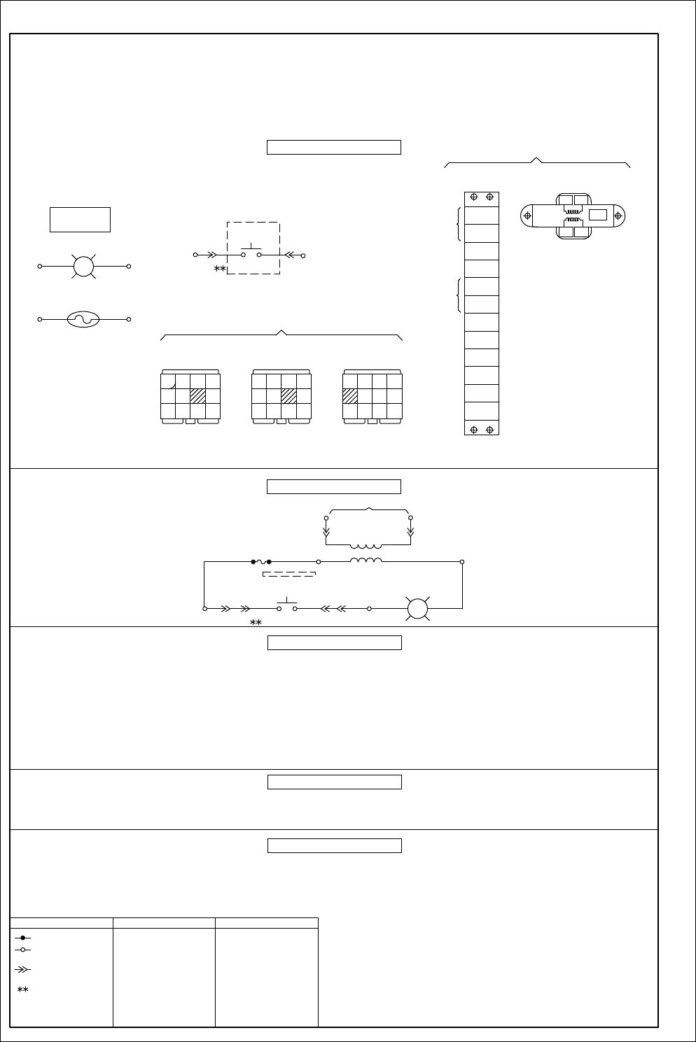
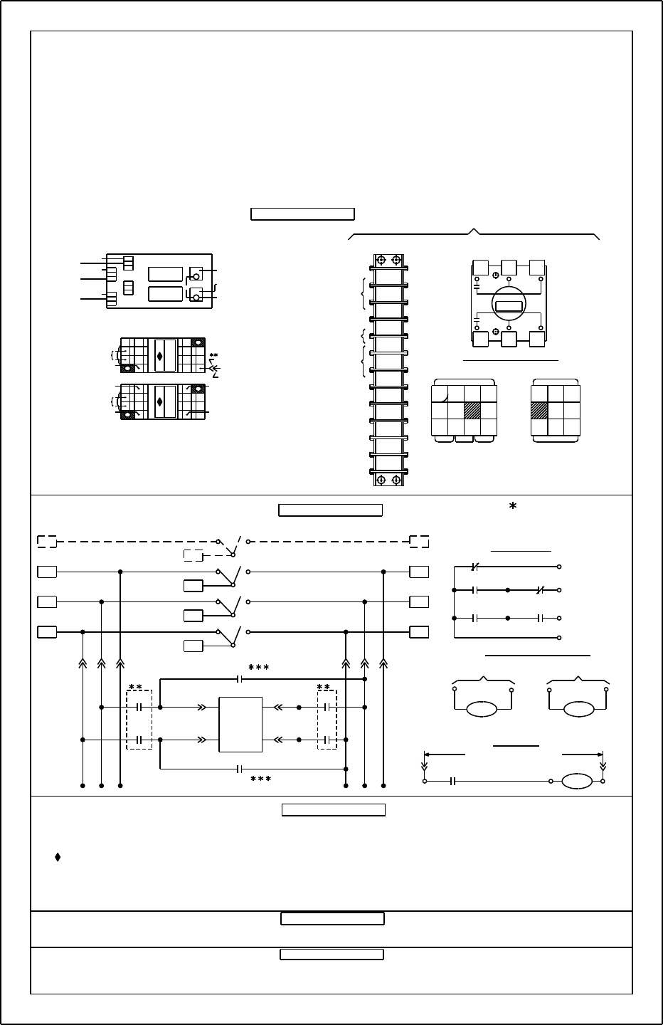
Schematic
CTS and CTSD
Automatic Transfer Switch (ATS)
Electrical System
CTS
TSG1-UP
CTSD
TSH1-UP

CTS:
Sheet 1 Sheet 2 Sheet 1 Sheet 2
40-200 Amp
Page 3 Page 4 Page 5 Page 6
225-400 Amp
Page 7 Page 8 Page 9 Page 10
600-1200 Amp
Page 11 Page 12 Page 13 Page 14
1600-3000 Amp
Page 15 Page 16
4000 Amp
Page 17 Page 18
CTSD:
Sheet 1 Sheet 2 Sheet 3 Sheet 1
40-260 Amp
Page 19 Page 20 Page 21 Page 22
400 Amp
Page 25 Page 26
Page 27 Page 28
600-3000 Amp
Page 29 Page 30
Page 31 Page 32
4000 Amp
Page 33 Page 34
CTS(D) Options
Sheet 1 Sheet 2 Sheet 3 Sheet 4
CTS(D)
Options
Sheet 1 Sheet 2
A1
Page 35
M4
Page 56
A1E
Page 35
Q2
Page 57
A1TD
Page 35
Q3
Page 58
A3
Page 36
Q7
Page 57
AN
Page 37
R15
Page 59 Page 60
ABE
Page 35
R15D
Page 61 Page 62
A3DT
Page 37
R26
Page 63 Page 64
A4
Page 37
R26D
Page 65
ABN
Page 38
YER
Page 57
A4DT
Page 37
YNR
Page 57
A6
Page 39
6A
Page 67
A62
Page 40
6B
Page 67
F
Page 35
6C
Page 67
T3/W3
Page 35
S1
Page 68
L7
Page 41
S1K
Page 68
LDS
Page 42
S2
Page 69
LM
Page
S5
Page 70
LN
Page 43
S5K
Page 70
HH
Page 44
S6
Page
HT
Page 45
S6K
Page
C/D 365
Page 46 Page 47 Page 48
S12
Page 71
D4SC
Page 49 Page 50 Page 51 Page 52
S12K
Page 71
K
Page 53
S14K
Page 72
N1
Page 54
ZNET200
Page 73
M1
Page 55
VA1
Page 74
M2
Page 56
P2
Page 75
M3
Page 55
CTAP
Page 76
Power Circuit and
Layout 3/4 Pole
Power Circuit and
Layout 2 Pole
ATS Electrical Schematic
Page 2
Sheet 2 Sheet 3
Page 23 Page 24
Page 66

N3
T3
N2
T2
N1
T1
NN
TN
E3
E2
E1
EN
306
CCE
CCE
CCN
206
CCN
22
21
20
32
31
30
- BRIDGE RECTIFIER
- MAIN TRANSFER OPERATOR
20 21 22 323130
E1,2,3,N - EMERGENCY LINE
T1,2,3,N - LOAD
N1,2,3,N - NORMAL LINE
ATS POWER CIRCUIT SCHEMATIC
SWITCHED OR SOLID NEUTRAL
AS SPECIFIED FOR
4 WIRE SYSTEMS.
BR
CNE
307209
JUMPER
25ZZ
25ZA
36
GND
DS
(BLANK)
(BLANK)
SE
SN
J6
26
SE
SN
25ZA
SE -
SN -
EMERGENCY POSITION
LIMIT SWITCH
NORMAL POSITION
LIMIT SWITCH
LIMIT SWITCH SCHEMATIC
TO MX SERIES
CONTROL PANEL
(6)
(1)
16
15
14
CNE
BR
307R208R
307A
208
-
+
SCN SCE
- CNE LIMIT SWITCHESSCN/SCE
DS - DISCONNECT SWITCH
ON MX200
DS
OPTIONAL
INTERCONNECT PLUG
WIRE IN
TERMINAL BLOCK
WIRE ON
WIRE CONNECTION
LEGEND
LOCATED ON RELAY/
TRANSFORMER BOX.
GND
903
902
801
901
807
804
803
904
905
906
805
806
(BLANK)
(BLANK)
GROUND
CCE - COIL CONTROL RELAY (EMERGENCY)
CCN - COIL CONTROL RELAY (NORMAL)
COMMON
J5
24V 10V 11V
XE1
24V 10V 11V 10V
XN1 XN2
CCN CCE
XN1 -
XN2 -
XE1 -
NORMAL CONTROL TRANSFORMER
NORMAL 3 PHASE SENSING
TRANSFORMER
EMERGENCY CONTROL TRANSFORMER
801
3 PHASE EMERGENCY
SINGLE PHASE EMERGENCY SENSING
3-PHASE NORMAL SENSING
NORMAL CONTROL POWER
EMERGENCY CONTROL POWER
BK/W
BK
BK/W
BK/W
BK
901
BL 800
BL/W 902
G 804
G/W 803
Y 805
Y/W 806
G 804
G/W 807
BL 900
BL/W 902
G 904
G/W 903
Y 905
Y/W 906
TRANSFORMER LEADS
COLOR CODES:
BK
BK/W
BL
G
G/W
Y
-
-
-
-
-
-
BLACK
BLACK/WHITE STRIPE
BLUE
GREEN
GREEN/WHITE STRIPE
YELLOW
800
900
EMERGENCY 24V OUTPUT
NORMAL 24V OUTPUT
(18)
(1)
BL/W - BLUE/WHITE STRIPE
Y/W - YELLOW/WHITE STRIPE
XE2
907
904
907
XE2 - EMERGENCY 3 PHASE SENSING TRANSFORMER
G
G/W
ATS Electrical Schematic
CTS 3/4 Pole
40 - 200 Amp
Sheet 1 of 2
NOTES
ATS SHOWN IN NORMAL
POSITION WITH NO
POWER AVAILABLE.
Page 3

206 306
1 3
7 9
905 906 805 806
800902 801 901
807
GND
804 803 904 26 36
25ZZ 25ZA
1 9
10 18
1 3
4 6
INTERCONNECT PLUGS
J5
J8
J6
RELAY/TRANSFORMER
BOX TO POWER PANEL
MX SERIES CONTROLRELAY/TRANSFORMER BOX TO
MX SERIES CONTROL PANEL
209307
20 21 22
1514
30 31 32
16
902
1 4
9 12
J9
RELAY/TRANSFORMER
BOX TO AUXILIARY
CONTROL PANEL
20 21 22
1514 16
30 31 32
1 4
9 12
J7
RELAY/TRANSFORMER
BOX TO POWER PANEL
WIRE CONNECTION
RELAY/TRANSFORMER BOX
POWER
PANEL
J7
J8
J6
RELAY/
TRANSFORMER
BOX
MX SERIES
CONTROL PANEL
INTERCONNECT PLUG DIAGRAM
J9
PANEL TO POWER PANEL
ATS
J5
J5
903
900
907
XE1XN1
3130
800
902
804
806
805
803
21
20
24V
10V
11V
804
807
XN2
21
22
J9
J7
CCN
J8 ON BOTTOM J5 ON BOTTOM
CCE
A
306
31
900
TERMINAL CONNECTION PTS.
307
30
901
1
4
7
2
5
8
3
6
9
B
206
21
800
209
20
801
904
907
XE2
31
32
24V
10V
11V
900
902
904
906
905
903
1
4
7
2
5
8
3
6
9
A
B
800
CCN
CCE
DS
XE2 ON TOP
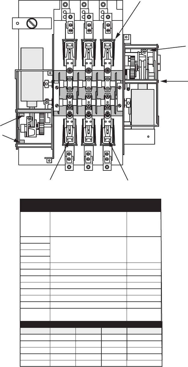
ATS POWER PANEL LAYOUT
A3-1A4-1
AUXILIARY CONTACTS
T3T2T1 TN
E3E2E1 EN
N3N2N1 NN
20 21 22
14 15 16
30 31 32
CNE
BR
307R
208R
208
307A
-
+
SCN
SCE
SE A3
SN A4
ATS Electrical Schematic
CTS 3/4 Pole
40 - 200 Amp
Sheet 2 of 2
Page 4

N2
T2
N1
T1
NN
TN
E2
E1
EN
306
CCE
CCE
CCN
206
CCN
21
20
31
30
- BRIDGE RECTIFIER
- MAIN TRANSFER OPERATOR
20 21 31
30
E1,2,N - EMERGENCY LINE
T1,2,N - LOAD
N1,2,N - NORMAL LINE
ATS POWER CIRCUIT SCHEMATIC
* SWITCHED OR SOLID NEUTRAL
AS SPECIFIED FOR
3 WIRE SYSTEMS.
BR
CNE
307209
JUMPER
WIRE CONNECTION
WIRE ON
TERMINAL BLOCK
WIRE IN
INTERCONNECT PLUG
OPTIONAL
25ZZ
25ZA
36
GND
(BLANK)
(BLANK)
SE
SN
J6
26
SE
SN
25ZA
SE -
SN -
EMERGENCY POSITION
LIMIT SWITCH
NORMAL POSITION
LIMIT SWITCH
LIMIT SWITCH SCHEMATIC
TO MX SERIES
CONTROL PANEL
(6)
(1)
15
14
CNE
BR
307R208R
307A
208
-
+
SCN SCE
- CNE LIMIT SWITCHES
SCN/SCE
DS
DS - DISCONNECT SWITCH
ON MX200
DS
LEGEND
LOCATED ON RELAY/
TRANSFORMER BOX
GND
903
902
801
901
804
803
904
905
906
805
806
(BLANK)
(BLANK)
GROUND
CCE - COIL CONTROL RELAY (EMERGENCY)
CCN - COIL CONTROL RELAY (NORMAL)
COMMON
J5
24V 10V 11V
XE1
24V 10V 11V
XN1
CCN CCE
XN1 -
XE1 -
NORMAL CONTROL TRANSFORMER
EMERGENCY CONTROL TRANSFORMER
801
SINGLE PHASE EMERGENCY SENSING
NORMAL CONTROL POWER
EMERGENCY CONTROL POWER
BK/W
BK
BK/W
BK
901
BL 800
BL/W 902
G 804
G/W 803
Y 805
Y/W 806
BL 900
BL/W 902
G 904
G/W 903
Y 905
Y/W 906
TRANSFORMER LEADS
COLOR CODES:
BK
BK/W
BL
G
G/W
Y
-
-
-
-
-
-
BLACK
BLACK/WHITE STRIPE
BLUE
GREEN
GREEN/WHITE STRIPE
YELLOW
800
900
EMERGENCY 24V OUTPUT
NORMAL 24V OUTPUT
(18)
(1)
BL/W - BLUE/WHITE STRIPE
Y/W - YELLOW/WHITE STRIPE
SINGLE PHASE NORMAL SENSING
*** XN2 - NORMAL 3-PHASE SENSING TRANSFORMER
807
10V
G 804
G/W 807
XN2
22
BK/W
(NOT USED)
(BLANK)
ATS Electrical Schematic
CTS 2 Pole
40 - 200 Amp
Sheet 1 of 2
NOTES
ATS SHOWN IN NORMAL
POSITION WITH NO
POWER AVAILABLE.
Page 5

206 306
1 3
7 9
905 906 805 806
800902 801 901 GND
804 803 904 26 36
25ZZ 25ZA
1 9
10 18
1 3
4 6
INTERCONNECT PLUGS
J5
J8
J6
RELAY/TRANSFORMER
BOX TO POWER PANEL
MX SERIES CONTROLRELAY/TRANSFORMER BOX TO
MX SERIES CONTROL PANEL
209307
20 21
1514
30 31
902
1 4
9 12
J9
RELAY/TRANSFORMER
BOX TO AUXILIARY
CONTROL PANEL
20 21
1514
30 31
1 4
9 12
J7
RELAY/TRANSFORMER
BOX TO POWER PANEL
WIRE CONNECTION
RELAY/TRANSFORMER BOX
POWER
PANEL
J7
J8
J6
RELAY/
TRANSFORMER
BOX
MX SERIES
CONTROL PANEL
INTERCONNECT PLUG DIAGRAM
J9
PANEL TO POWER PANEL
ATS
J5
J5
903
900
807
WIRE #22 REMAINS WIRED IN
RELAY/TRANSFORMER BOX.
WIRE #22 IS NOT CONNECTED
TO ATS POWER PANEL.
800
XE1XN1
3130
800
902
804
806
805
803
21
20
24V
10V
11V
804
807
XN2
21
22
J9
J7
CCN
J8 ON BOTTOM J5 ON BOTTOM
CCE
A
306
31
900
TERMINAL CONNECTION PTS.
307
30
901
1
4
7
2
5
8
3
6
9
B
206
21
800
209
20
801
24V
10V
11V
900
902
904
906
905
903
1
4
7
2
5
8
3
6
9
A
B
DS
LEGEND
ATS POWER PANEL LAYOUT
A3-1A4-1
AUXILIARY CONTACTS
T2
T1
TN
E2
E1
EN
N2
N1
NN
20
21
14
15
30
31
CNE
BR
307R
208R
208
307A
-
+
SCN
SCE
SE A3
SN A4
ATS Electrical Schematic
CTS 2 Pole
40 - 200 Amp
Sheet 2 of 2
Page 6

N3
T3
N2
T2
N1
T1
NN
TN
E3
E2
E1
EN
306
CCE
CCE
CCN
206
CCN
22
21
20
32
31
30
- BRIDGE RECTIFIER
- MAIN TRANSFER OPERATOR
20 21 22 323130
E1,2,3,N - EMERGENCY LINE
T1,2,3,N - LOAD
N1,2,3,N - NORMAL LINE
ATS POWER CIRCUIT SCHEMATIC
SWITCHED OR SOLID NEUTRAL
AS SPECIFIED FOR
4 WIRE SYSTEMS.
BR
CNE
307209
JUMPER
25ZZ
25ZA
36
GND
DS
(BLANK)
(BLANK)
SE
SN
J6
26
SE
SN
25ZA
SE -
SN -
EMERGENCY POSITION
LIMIT SWITCH
NORMAL POSITION
LIMIT SWITCH
LIMIT SWITCH SCHEMATIC
TO MX SERIES
(6)
(1)
16
15
14
CNE
BR
307R208R
307A
208
-
+
SCN SCE
- CNE LIMIT SWITCHESSCN/SCE
DS - DISCONNECT SWITCH
ON MX200
DS
LEGEND
WIRE CONNECTION
WIRE ON
TERMINAL BLOCK
WIRE IN
INTERCONNECT PLUG
OPTIONAL
LOCATED ON RELAY/
TRANSFORMER BOX
YELLOW/WHITE STRIPE
GREEN/WHITE STRIPE
BLACK/WHITE STRIPE
XN1
10V
BL/W
Y/W
BL/W
G/W
BL
BK/W
BK
COLOR CODES:
TRANSFORMER LEADS
Y
G GREEN
YELLOW
-
-
-
BLUE/WHITE STRIPE-
-
-
-
- BLACK
BLUE
801
CCN
24V
BL 800
902
G 804
G/W
BL/W
G/W
Y/W
G/W
CCE
901
BK/W
805Y
803
806
11V
BK
BK/W
G 804
807
XN2
10V 24V
900BL
BK/W
904G
902
903
XE1
10V
EMERGENCY 3 PHASE SENSING
TRANSFORMER
EMERGENCY CONTROL POWER
NORMAL CONTROL POWER
3-PHASE NORMAL SENSING
SINGLE PHASE EMERGENCY SENSING
EMERGENCY CONTROL TRANSFORMER
NORMAL 3 PHASE SENSING
NORMAL CONTROL TRANSFORMER
CCN - COIL CONTROL RELAY (NORMAL)
CCE - COIL CONTROL
RELAY (EMERGENCY)
G/W
Y/W
(1)
J5
906
905
903
806
805
807
904
803
804
GND
901
801
902
907
3 PHASE EMERGENCY
COMMON
GROUND
(BLANK)
(BLANK)
XE2 -
(18)
XE1 -
XN2 -
XN1 -
907
Y 905
906
11V
G
904
XE2
BK
900
800
NORMAL 24V OUTPUT
EMERGENCY 24V OUTPUT
TRANSFORMER
ATS Electrical Schematic
CTS 3/4 Pole
225 - 400 Amp
Sheet 1 of 2
NOTES
ATS SHOWN IN NORMAL
POSITION WITH NO
POWER AVAILABLE.
Page 7

206 306
1 3
7 9
905 906 805 806
800902 801 901
807
GND
804 803 904 26 36
25ZZ 25ZA
1 9
10 18
1 3
4 6
INTERCONNECT PLUGS
J5
J8
J6
RELAY/TRANSFORMER
BOX TO POWER PANEL
MX SERIES CONTROLRELAY/TRANSFORMER BOX TO
MX SERIES CONTROL PANEL
209307
20 21 22
1514
30 31 32
16
902
1 4
9 12
J9
RELAY/TRANSFORMER
BOX TO AUXILIARY
CONTROL PANEL
20 21 22
1514 16
30 31 32
1 4
9 12
J7
RELAY/TRANSFORMER
BOX TO POWER PANEL
RELAY/TRANSFORMER BOX
PANEL TO POWER PANEL
903
900
A
306
31
900
TERMINAL CONNECTION PTS.
307
30
901
1
4
7
2
5
8
3
6
9
B
206
21
800
209
20
801
800
1
4
7
2
5
8
3
6
9
A
B
CCN
CCE
LEGEND
WIRE CONNECTION
24V
11V
20
21
10V
XN1
803
805
806
30
11V
804
902
800
903
905
906
24V
31
XE1
10V
904
902
900
22
XN2
807
21
804
XE2 ON TOP
32
XE2
907
31
904
J8 ON BOTTOM
J7
CCN
CCE
J9
J5 ON BOTTOM
INTERCONNECT PLUG DIAGRAM
POWER
PANEL
ATS
J7
J8
RELAY/
TRANSFORMER
BOX
J9
DS
MX SERIES
CONTROL PANEL
J6 J5
J5
907
ATS POWER PANEL LAYOUT
A3-1A4-1
AUXILIARY CONTACTS
T3T2T1 TN
E3E2E1 EN
N3N2N1 NN
20 21 22
14 15 16
30 31 32
CNE
BR
307R
208R
208
307A
-
+
SCE
SE A3
SN A4
SCN
(OPTIONAL SWITCHES)
A4-3
A4-4
A4-2
A3-4
A3-3
A3-2
ATS Electrical Schematic
CTS 3/4 Pole
225 - 400 Amp
Sheet 2 of 2
Page 8

ATS POWER CIRCUIT SCHEMATIC
25ZZ
25ZA
36
GND
DS
(BLANK)
(BLANK)
SE
SN
J6
26
SE
SN
25ZA
SE -
SN -
EMERGENCY POSITION
LIMIT SWITCH
NORMAL POSITION
LIMIT SWITCH
LIMIT SWITCH SCHEMATIC
TO MX SERIES
(6)
(1)
DS - DISCONNECT SWITCH
ON MX100
DS
LEGEND
WIRE CONNECTION
WIRE ON
TERMINAL BLOCK
WIRE IN
INTERCONNECT PLUG
OPTIONAL
LOCATED ON RELAY/
TRANSFORMER BOX
N1,2,N - NORMAL LINE
21
20
NN
N1
N2
20
SCN
208R
21
CCN
CCN
CNE
209
206
208
JUMPER
-
307A
+
BR
307R
SCE
307
CCE
306
CCE
T1,2,N - LOAD
TN
T2
T1
14
15
SWITCHED OR SOLID NEUTRAL
- MAIN TRANSFER OPERATOR
SCN/SCE
CNE
31
30
BR
- CNE LIMIT SWITCHES
- BRIDGE RECTIFIER
E1,2,N - EMERGENCY LINE
30
31
E1
E2
EN
3 WIRE SYSTEMS.
AS SPECIFIED FOR
CONTROL PANEL
YELLOW/WHITE STRIPE
BLUE/WHITE STRIPE
GREEN/WHITE STRIPE
BLACK/WHITE STRIPE
804G
BL/W
YELLOW
GREEN
Y/W
G/W
Y
G
-
-
-
-
BLUE
BLACK
COLOR CODES:
TRANSFORMER LEADS
BL/W
BK/W
BL
BK
-
-
-
-
801
CCN
24V
800BL
902
G/W
BL/W
G/W
G/W
CCE
901
BK/W
803
XN1
10V
Y 805
Y/W 806
11V
BK
BK/W
G 804
807
XN2
10V
22
BL 900
BK/W
902
24V
G 904
903
XE1
10V
EMERGENCY 24V OUTPUT
CCE - COIL CONTROL RELAY (EMERGENCY)
CCN - COIL CONTROL RELAY (NORMAL)
(BLANK)
SINGLE PHASE EMERGENCY SENSING
SINGLE PHASE NORMAL SENSING
NORMAL CONTROL POWER
EMERGENCY CONTROL POWER
EMERGENCY CONTROL TRANSFORMER
NORMAL 3 PHASE SENSING
NORMAL CONTROL TRANSFORMER
RELAY/TRANSFORMER BOX SCHEMATIC
906
905
903
806
805
807
904
803
804
901
801
902
GND
J5
(1)
(BLANK)
(BLANK)
GROUND
COMMON
XE1 -
XN2 -
XN1 -
906Y/W
905Y
11V
BK
900
800
NORMAL 24V OUTPUT
TRANSFORMER
(18)
***
***
(NOT USED)
ATS Electrical Schematic
CTS 2 Pole
225 - 400 Amp
Sheet 1 of 2
NOTES
ATS SHOWN IN NORMAL
POSITION WITH NO
POWER AVAILABLE.
Page 9

LEGEND
WIRE CONNECTION
206 306
1 3
7 9
905 906 805 806
800902 801 901 GND
804 803 904 26 36
25ZZ 25ZA
1 9
10 18
1 3
4 6
INTERCONNECT PLUGS
J5
J8
J6
RELAY/TRANSFORMER
BOX TO POWER PANEL
MX SERIES CONTROLRELAY/TRANSFORMER BOX TO
MX SERIES CONTROL PANEL
209307
20 21
1514
30 31
902
1 4
9 12
J9
RELAY/TRANSFORMER
BOX TO AUXILIARY
CONTROL PANEL
20 21
1514
30 31
1 4
9 12
J7
RELAY/TRANSFORMER
BOX TO POWER PANEL
POWER
PANEL
J7
J8
J6
RELAY/
TRANSFORMER
BOX
MX SERIES
CONTROL PANEL
INTERCONNECT PLUG DIAGRAM
J9
PANEL TO POWER PANEL
ATS
J5
J5
903
900
807
800
DS
CCE
CCN
24V
CCN
800
21
206
3
9
6
B
2
8
5
20
11V
21
XN1
10V
806
805
803
TERMINAL CONNECTION PTS.
1
7
4
A
801
20
209
31
306
900
3
9
6
B
30
11V
800
902
804
905
903
906
24V
31
XE1
10V
900
902
904
901
30
307
7
4
2 1
8
5
CCE
A
807
XN2
22
804
21
J8 ON BOTTOM
RELAY/TRANSFORMER BOX
J7
J9
J5 ON BOTTOM
***
ATS POWER PANEL.
CONNECTED TO
TRANSFORMER BOX.
WIRE #22 IS NOT
WIRED IN RELAY/
WIRE #22 REMAINS
CCN CCE
22
22
ATS POWER PANEL LAYOUT
A3-1A4-1
AUXILIARY CONTACTS
T2T1 TN
E2E1 EN
N2N1 NN
20 21
14 15
30 31
CNE
BR
307R
208R
208
307A
-
+
SCE
SE A3
SN A4
SCN
(OPTIONAL SWITCHES)
A4-3
A4-4
A4-2
A3-4
A3-3
A3-2
ATS Electrical Schematic
CTS 2 Pole
225 - 400 Amp
Sheet 2 of 2
Page 10

N3
T3
N2
T2
N1
T1
NN
TN
E3
E2
E1
EN
306
CCECCN
206
22
21
20
32
31
30
- NORMAL TRANSFER OPERATOR
20 21 22
323130
- EMERGENCY TRANSFER OPERATOR
E1,2,3,N - EMERGENCY LINE
T1,2,3,N - LOAD
N1,2,3,N - NORMAL LINE
ATS POWER CIRCUIT SCHEMATIC
SWITCHED OR SOLID NEUTRAL
AS SPECIFIED FOR
4 WIRE SYSTEMS.
TO MX SERIES
CONTROL PANEL
(6)
(1)
CECN
- DISCONNECT SWITCH
DS
LEGEND
WIRE CONNECTION
WIRE ON
TERMINAL BLOCK
WIRE IN
INTERCONNECT PLUG
LOCATED ON RELAY/
TRANSFORMER BOX
25ZZ
25ZA
36
GND
ATR/DS
(BLANK)
(BLANK)
SE
SN
J6
26
DS
SE
SN
25ZA
DS -
SE -
SN -
DISCONNECT SWITCH
EMERGENCY POSITION
LIMIT SWITCH
NORMAL POSITION
LIMIT SWITCH
LIMIT SWITCH SCHEMATIC
14
15
16
307209
CCN CCE
CN
CE
OPTIONAL
DS DS
209A 307A
GND
907
903
902
801
901
807
804
803
904
905
906
805
806
(BLANK)
(BLANK)
GROUND
CCE - COIL CONTROL RELAY (EMERGENCY)
CCN - COIL CONTROL RELAY (NORMAL)
COMMON
J5
24V 10V 11V 10V24V 10V 11V 10V
XN1 XN2
XN1 -
XN2 -
XE1 -
XE2 -
NORMAL CONTROL TRANSFORMER
NORMAL 3 PHASE SENSING
TRANSFORMER
EMERGENCY CONTROL TRANSFORMER
EMERGENCY 3 PHASE SENSING
TRANSFORMER
SINGLE PHASE EMERGENCY SENSING
3-PHASE NORMAL SENSING
NORMAL CONTROL POWER
EMERGENCY CONTROL POWER
BK/W
BK
BK/W
901
BL 800
BL/W 902
G 804
G/W 803
Y 805
Y/W 806
G 804
G/W 807
BL 900
BL/W 902
G 904
G/W 903
Y 905
Y/W 906
G
904
G/W 907
800
900
EMERGENCY 24V OUTPUT
NORMAL 24V OUTPUT
(18)
(1)
BL/W - BLUE/WHITE STRIPE
Y/W - YELLOW/WHITE STRIPE
XE1 XE2
BK/W
BK
BK/W
TRANSFORMER LEADS
COLOR CODES:
BK
BK/W
BL
G
G/W
Y
-
-
-
-
-
-
BLACK
BLACK/WHITE STRIPE
BLUE
GREEN
GREEN/WHITE STRIPE
YELLOW
3-PHASE EMERGENCY SENSING
801
CCN CCE
ATS Electrical Schematic
CTS 3/4 Pole
600 - 1200 Amp
Sheet 1 of 2
NOTES
ATS SHOWN IN NORMAL
POSITION WITH NO
POWER AVAILABLE.
Page 11

206 306
1 3
7 9
807
GND
804 803 904
907
J5
J8
J6
RELAY/TRANSFORMER
BOX TO POWER PANEL
MX SERIES CONTROLRELAY/TRANSFORMER BOX TO
MX SERIES CONTROL PANEL
209307
20 21 22
1514
30 31 32
16
1 4
9 12
J9
RELAY/TRANSFORMER
BOX TO AUXILIARY
CONTROL PANEL
206 306
1 3
7 9
J10
RELAY/TRANSFORMER
209307
20 21 22
1514 16
30 31 32
1 4
9 12
J7
RELAY/TRANSFORMER
BOX TO POWER PANEL
BOX TO AUXILIARY
CONTROL PANEL
(IF REQUIRED)
904907
XE2
3132
XE2 ON TOP
J9 J10
PANEL TO POWER PANEL
ATS
J5
J5
903
900
800
902
RELAY/TRANSFORMER BOX
K-1260
4 2 6
3 1 5
209
801
20 21
800
206
CCN
K-1260
4 2 6
3 1 5
307
901
30
31
900
306
CCE
XE1
J8
J7
XN1
900
902
904
906
905
903
31 30
800
902
804
806
805
803
21 20
24V 10V 11V 24V 10V 11V
J10
J9
804807
XN2
2122
J5 ON BOTTOM
INTERCONNECT PLUGS
1 9
10 18
905 906 805
800902 801 901
806
1 3
4 6
26 36
25ZZ 25ZA
POWER
PANEL
J7
J8
J6
RELAY/
TRANSFORMER
BOX
MX SERIES
CONTROL PANEL
INTERCONNECT PLUG DIAGRAM
WIRE CONNECTION
OPTIONAL
LEGEND
ATS POWER PANEL LAYOUT
A3-1
A3-2
A4-1
A4-2
AUXILIARY CONTACTS
25ZA
25ZZ
T3
T2
T1
TN
E3E2
E1
EN
N3
N2
N1
NN
CN
20 21 22
14 15 16
30 31 32
209
209A
A4-1
A4-1
A4-2
A4-2
A4
A3
CE
SN
SE
A3-1
A3-1
A3-2
A3-2
307
307A
AUTO
DS
INHIBIT
ATS Electrical Schematic
CTS 3/4 Pole
600 - 1200 Amp
Sheet 2 of 2
Page 12

NOTESREFERENCELEGEND
N2
T2
N1
T1
NN
TN
E2
E1
EN
306
CCE
CCE
CCN
206
CCN
CA
CN/CE
21
20
31
30
- MAIN TRANSFER OPERATOR
- MAIN TRANSFER OPERATOR
20 21 3130
E1,2,N - EMERGENCY LINE
T1,2,N - LOAD
N1,2,N - NORMAL LINE
ATS POWER CIRCUIT SCHEMATIC
SWITCHED OR SOLID NEUTRAL
AS SPECIFIED FOR
CAPACITOR
3 WIRE SYSTEMS.
CA
CN/CE
307209
JUMPER
WIRE CONNECTION
WIRE ON
TERMINAL BLOCK
WIRE IN
INTERCONNECT PLUG
OPTIONAL
LOCATED ON RELAY/
TRANSFORMER BOX
25ZZ
25ZA
36
GND
ATR/DS
(BLANK)
(BLANK)
SE
SN
J6
26
DS
SE
SN
25ZA
DS -
SE -
SN -
DISCONNECT SWITCH ON MX200
EMERGENCY POSITION
LIMIT SWITCH
NORMAL POSITION
LIMIT SWITCH
LIMIT SWITCH SCHEMATIC
TO MX SERIES
CONTROL PANEL
(6)
(1)
15
14
ATS SHOWN IN NORMAL
POSITION WITH NO
POWER AVAILABLE.
ATS Electrical Schematic
CTS 2 Pole
Sheet 1 of 2
600 - 1200 Amp
BK/W
22
XN2
807G/W
804G
10V
807
(NOT USED)
NORMAL 3-PHASE SENSING TRANSFORMERXN2 -
(BLANK)
YELLOW/WHITE STRIPE-Y/W
BLUE/WHITE STRIPE-BL/W
(1)
(18)
NORMAL 24V OUTPUT
EMERGENCY 24V OUTPUT
900
800
YELLOW
GREEN/WHITE STRIPE
GREEN
BLUE
BLACK/WHITE STRIPE
BLACK
-
-
-
-
-
-
Y
G/W
G
BL
BK/W
BK
COLOR CODES:
TRANSFORMER LEADS
906Y/W
905Y
903G/W
904G
902BL/W
900BL
806Y/W
805Y
803G/W
804G
902BL/W
800BL
901
BK
BK/W
BK
BK/W
EMERGENCY CONTROL POWER
NORMAL CONTROL POWER
SINGLE PHASE NORMAL SENSING
SINGLE PHASE EMERGENCY SENSING
801
EMERGENCY CONTROL TRANSFORMER
NORMAL CONTROL TRANSFORMER
XE1 -
XN1 -
CCECCN
XN1
11V10V24V
XE1
11V10V24V
J5
COMMON
CCN - COIL CONTROL RELAY (NORMAL)
CCE - COIL CONTROL RELAY (EMERGENCY)
GROUND
(BLANK)
(BLANK)
806
805
906
905
904
803
804
901
801
902
903
GND
Page 13

LEGEND REFERENCE NOTES
ON ATS POWER PANEL.
ARE NOT CONNECTED
BOX. WIRES #22, #32
IN RELAY/ TRANSFORMER
WIRE #22 REMAINS WIRED
OPTIONAL
WIRE CONNECTION
DS
902
800
807
XN2
900
903
J5
J5
ATS
PANEL TO POWER PANEL
J10J9
CONTROL PANEL
MX SERIES
BOX
TRANSFORMER
RELAY/
J6
J8
J7
PANEL
POWER
J5 ON BOTTOM
J9J10
XN1
J7
J8
XE1
C
C
E
C
C
N
(IF REQUIRED)
CONTROL PANEL
BOX TO AUXILIARY
BOX TO POWER PANEL
RELAY/TRANSFORMER
129
41
3130
14 15
2120
307 209
RELAY/TRANSFORMER
97
31
306206
CONTROL PANEL
BOX TO AUXILIARY
RELAY/TRANSFORMER
129
41
3130
14 15
2120
307 209
MX SERIES CONTROL PANEL
RELAY/TRANSFORMER BOX TO MX SERIES CONTROL
BOX TO POWER PANEL
RELAY/TRANSFORMER
64
31
1810
91
25ZA25ZZ
3626904803804
GND901801902 800
806805906905
97
31
306206
22 21
807 804
11V10V24V11V10V24V
2021
803
805
806
804
902
800
3031
903
905
906
904
902
900
306
900
31
30
901
307
513
624
206
800
21
20
801
209
513
624
INTERCONNECT PLUG DIAGRAM
RELAY/TRANSFORMER BOX
J7
J10J9
J6
J8
J5
INTERCONNECT PLUGS
T2
T1
TN
E2
E1
EN
N2
N1
NN
CN/CE
20
21
30
31
A4-1
A4-1
A4-2
A4-2
206
209
306
CA
A4 SN
SEA3
ATS POWER PANEL LAYOUT
306206
GND
A3-1
A3-2
A4-1
A4-2
A3-1
A3-1
A3-2
A3-2
14
15
AUXILIARY CONTACTS
ATS Electrical Schematic
CTS 2 Pole
Sheet 2 of 2
600 - 1200 Amp
Page 14

LEGEND
N3
T3
N2
T2
N1
T1
NN
TN
E3
E2
E1
EN
306
CCECCN
206
22
21
20
32
31
30
20 21 22 323130
E1,2,3,N - EMERGENCY LINE
T1,2,3,N - LOAD
N1,2,3,N - NORMAL LINE
ATS POWER CIRCUIT SCHEMATIC
SWITCHED OR SOLID NEUTRAL
AS SPECIFIED FOR
4 WIRE SYSTEMS.
ON MX SERIES
CONTROL PANEL
(6)
(1)
CE
RE
306R206R
+
-
307R
25ZZ
25ZA
36
GND
ATR/DS
(BLANK)
(BLANK)
SE
SN
J6
26
DS
SE
SN
25ZA
DS -
SE -
SN -
DISCONNECT SWITCH
EMERGENCY POSITION
LIMIT SWITCH
NORMAL POSITION
LIMIT SWITCH
LIMIT SWITCH SCHEMATIC
CN
RN
209R
+
-
CCN
209
14
16
15
- EMERGENCY TRANSFER OPERATORCE
- NORMAL TRANSFER OPERATORCN
- NORMAL BRIDGE RECTIFIERRN
- EMERGENCY BRIDGE RECTIFIERRE
- DISCONNECT SWITCHDS
CCE
307
WIRE CONNECTION
WIRE ON
TERMINAL BLOCK
WIRE IN
INTERCONNECT PLUG
OPTIONAL
LOCATED ON RELAY/
TRANSFORMER BOX
DS
209A 307A
DS
GND
907
903
902
801
901
807
804
803
904
905
906
805
806
(BLANK)
(BLANK)
GROUND
CCE - COIL CONTROL RELAY (EMERGENCY)
CCN - COIL CONTROL RELAY (NORMAL)
COMMON
J5
24V 10V 11V 10V24V 10V 11V 10V
XN2
XN1 -
XN2 -
XE1 -
XE2 -
NORMAL CONTROL TRANSFORMER
NORMAL 3 PHASE SENSING
TRANSFORMER
EMERGENCY CONTROL TRANSFORMER
EMERGENCY 3 PHASE SENSING
TRANSFORMER
SINGLE PHASE EMERGENCY SENSING
3-PHASE NORMAL SENSING
NORMAL CONTROL POWER
EMERGENCY CONTROL POWER
BK/W
BK
BK/W
901
BL 800
BL/W 902
G 804
G/W 803
Y 805
Y/W 806
G 804
G/W 807
BL 900
BL/W 902
G 904
G/W 903
Y 905
Y/W 906
G
904
G/W 907
800
900
EMERGENCY 24V OUTPUT
NORMAL 24V OUTPUT
(18)
(1)
BL/W - BLUE/WHITE STRIPE
Y/W - YELLOW/WHITE STRIPE
TRANSFORMER LEADS
COLOR CODES:
BK
BK/W
BL
G
G/W
Y
-
-
-
-
-
-
BLACK
BLACK/WHITE STRIPE
BLUE
GREEN
GREEN/WHITE STRIPE
YELLOW
CCN
801
CCE
3-PHASE EMERGENCY SENSING
XE1 XE2
BK/W
BK
BK/W
XN1
ATS Electrical Schematic
CTS 3/4 Pole
1600 - 3000 Amp
Sheet 1 of 2
NOTES
ATS SHOWN IN NORMAL
POSITION WITH NO
POWER AVAILABLE.
Page 15

LEGEND
206 306
1 3
7 9
807
GND
804 803 904
907
J5
J8
J6
RELAY/TRANSFORMER
BOX TO POWER PANEL
MX SERIES CONTROLRELAY/TRANSFORMER BOX TO
MX SERIES CONTROL PANEL
209307
20 21 22
1514
30 31 32
16
1 4
9 12
J9
RELAY/TRANSFORMER
BOX TO AUXILIARY
CONTROL PANEL
206 306
1 3
7 9
J10
RELAY/TRANSFORMER
209307
20 21 22
1514 16
30 31 32
1 4
9 12
J7
RELAY/TRANSFORMER
BOX TO POWER PANEL
BOX TO AUXILIARY
CONTROL PANEL
(IF REQUIRED)
904907
XE2
3132
XE2 ON TOP
J9 J10
PANEL TO POWER PANEL
ATS
J5
J5
903
900
800
902
POWER
PANEL
J7
J8
J6
RELAY/
TRANSFORMER
BOX
MX SERIES
CONTROL PANEL
INTERCONNECT PLUG DIAGRAM
RELAY/TRANSFORMER BOX
K-1260
4 2 6
3 1 5
209
801
20 21
800
206
CCN
K-1260
4 2 6
3 1 5
307
901
30 31
900
306
CCE
XE1
J8
J7
XN1
900
902
904
906
905
903
31 30
800
902
804
806
805
803
21 20
24V 10V 11V 24V 10V 11V
J10 J9
804807
XN2
2122
J5 ON BOTTOM
1 9
10 18
800902 801 901
905 906 805 806
1 3
4 6
26 36
25ZZ 25ZA
INTERCONNECT PLUGS
WIRE CONNECTION
OPTIONAL
ATS POWER PANEL LAYOUT
A3-1
A3-2
A4-1
A4-2
AUXILIARY CONTACTS
25ZA25ZZ
T3T2T1TN
E3E2E1EN
N3N2N1NN
CN
20 21 22
14 15 16
30 31 32
209
209A
A4
A3
CE
SN
SE
307
307A
RN
RE
+
-
A4-1
A4-1
A4-2
A4-2
A3-1
A3-1
A3-2
A3-2
+
-
AUTO
DS
INHIBIT
ATS Electrical Schematic
CTS 3/4 Pole
1600 - 3000 Amp
Sheet 2 of 2
Page 16

N3
T3
N2
T2
N1
T1
NN
TN
E3
E2
E1
EN
306
CCECCN
206
22
21
20
32
31
30
20 21 22 323130
E1,2,3,N - EMERGENCY LINE
T1,2,3,N - LOAD
N1,2,3,N - NORMAL LINE
ATS POWER PANEL LAYOUT
ATS POWER CIRCUIT SCHEMATIC
SWITCHED OR SOLID NEUTRAL
AS SPECIFIED FOR
4 WIRE SYSTEMS.
A3-1
A3-2
A4-1
A4-2
AUXILIARY CONTACTS
16
15
14
T3T2T1
TN
E3E2E1
EN
N3N2N1
NN
CN
20 21 22
14 15 16
30 31 32
209
209A
A4
A3
CE
SN
SE
307
307A
RN
RE
+
-
RN
209R
+
-
A4-1
A4-1
A4-2
A4-2
A3-1
A3-1
A3-2
A3-2
+
-
25ZA25ZZ
RE
306R206R
+
-
307R
- EMERGENCY TRANSFER OPERATORS
- NORMAL TRANSFER OPERATORS
CE,CE2
- NORMAL BRIDGE RECTIFIERRN
- EMERGENCY BRIDGE RECTIFIERRE
- DISCONNECT SWITCHDS
AUTO
DS
INHIBIT
CCN CCE
209
307
CN
CN2
209B
CE
CE2
307B
CN2
CE2
CN,CN2
WIRE CONNECTION
TERMINAL BLOCK
INTERCONNECT PLUG
LOCATED ON RELAY/
TRANSFORMER BOX
WIRE ON
WIRE IN
OPTIONAL
LEGEND
209A
DS DS
307A
RELAY/TRANSFORMER BOX SCHEMATIC
GND
907
903
902
801
901
807
804
803
904
905
906
805
806
(BLANK)
(BLANK)
GROUND
CCE - COIL CONTROL RELAY (EMERGENCY)
CCN - COIL CONTROL RELAY (NORMAL)
COMMON
J5
24V 10V 11V 10V
XE1 XE2
24V 10V 11V 10V
XN1 XN2
CCN CCE
XN1 -
XN2 -
XE1 -
XE2 -
NORMAL CONTROL TRANSFORMER
NORMAL 3 PHASE SENSING
TRANSFORMER
EMERGENCY CONTROL TRANSFORMER
EMERGENCY 3 PHASE SENSING
TRANSFORMER
801
3-PHASE EMERGENCY SENSING
SINGLE PHASE EMERGENCY SENSING
3-PHASE NORMAL SENSING
NORMAL CONTROL POWER
EMERGENCY CONTROL POWER
BK/W
BK
BK/W
BK/W
BK
BK/W
901
BL 800
BL/W 902
G 804
G/W 803
Y 805
Y/W 806
G 804
G/W 807
BL 900
BL/W 902
G 904
G/W 903
Y 905
Y/W 906
G
904
G/W 907
TRANSFORMER LEADS
COLOR CODES:
BK
BK/W
BL
G
G/W
Y
-
-
-
-
-
-
BLACK
BLACK/WHITE STRIPE
BLUE
GREEN
GREEN/WHITE STRIPE
YELLOW
800
900
EMERGENCY 24V OUTPUT
NORMAL 24V OUTPUT
(18)
(1)
BL/W
-
BLUE/WHITE STRIPE
Y/W
-
YELLOW/WHITE STRIPE
ATS Electrical Schematic
CTS 3/4 Pole
4000 Amp
Sheet 1 of 2
NOTES
ATS SHOWN IN NORMAL
POSITION WITH NO
POWER AVAILABLE.
Page 17

206 306
1 3
7 9
905 906 805 806
800902 801 901
807
GND
804 803 904
907
26 36
25ZZ 25ZA
1 9
10 18
1 3
4 6
INTERCONNECT PLUGS
J5
J8
J6
RELAY/TRANSFORMER
BOX TO POWER PANEL
MX SERIES CONTROLRELAY/TRANSFORMER BOX TO
MX SERIES CONTROL PANEL
209307
20 21 22
1514
30 31 32
16
1 4
9 12
J9
RELAY/TRANSFORMER
BOX TO AUXILIARY
CONTROL PANEL
206 306
1 3
7 9
J10
RELAY/TRANSFORMER
209307
20 21 22
1514 16
30 31 32
1 4
9 12
J7
RELAY/TRANSFORMER
BOX TO POWER PANEL
BOX TO AUXILIARY
CONTROL PANEL
(IF REQUIRED)
WIRE CONNECTION
OPTIONAL
RELAY/TRANSFORMER BOX
K-1260
4 2 6
3 1 5
209
801
20 21
800
206
C
C
N
K-1260
4 2 6
3 1 5
307
901
30 31
900
306
C
C
E
XE1
J8
J7
XN1
900
902
904
906
905
903
31 30
800
902
804
806
805
803
21 20
24V 10V 11V 24V 10V 11V
J10 J9
804807
XN2
2122
J5 ON BOTTOM
POWER
PANEL
J7
J8
J6
RELAY/
TRANSFORMER
BOX
MX SERIES
CONTROL PANEL
INTERCONNECT PLUG DIAGRAM
904907
XE2
3132
XE2 ON TOP
J9 J10
PANEL TO POWER PANEL
ATS
J5
J5
903
900
800
902
LEGEND
25ZZ
25ZA
36
GND
ATR/DS
(BLANK)
(BLANK)
SE
SN
J6
26
DS
SE
SN
25ZA
DS -
SE -
SN -
DISCONNECT SWITCH
EMERGENCY POSITION
LIMIT SWITCH
NORMAL POSITION
LIMIT SWITCH
LIMIT SWITCH SCHEMATIC
TO MX SERIES
CONTROL PANEL
(6)
(1)
ATS Electrical Schematic
CTS 3/4 Pole
4000 Amp
Sheet 2 of 2
Page 18

N3
T3
N2
T2
N1
T1
NN
TN
E3
E2
E1
EN
306
CCE
CCE
CCN
206
CCN
CA
CN/CE
22
21
20
32
31
30
MAIN TRANSFER OPERATOR
MAIN TRANSFER OPERATOR
20 21 22 323130
E1,2,3,N - EMERGENCY LINE
T1,2,3,N - LOAD
N1,2,3,N - NORMAL LINE
ATS POWER CIRCUIT SCHEMATIC
SWITCHED OR SOLID NEUTRAL
AS SPECIFIED FOR
CAPACITOR
4 WIRE SYSTEMS.
CA-
CN/CE-
307
209
JUMPER
WIRE CONNECTION
WIRE ON
TERMINAL BLOCK
WIRE IN
INTERCONNECT PLUG
OPTIONAL
LOCATED ON RELAY/
TRANSFORMER BOX
ATS SHOWN IN NORMAL
POSITION WITH NO POWER
AVAILABLE.
25ZZ
25ZA
36
GND
DS
SEO
SNO
SE
SN
J6
26
SE-2
25ZA
SE -
SN -
EMERGENCY POSITION
LIMIT SWITCH
NORMAL POSITION
LIMIT SWITCH SCHEMATIC
TO MX SERIES
CONTROL PANEL
(6)
(1)
16
15
14
506
CCNOCCEO
406
CCNOCCEO
308309
SNO-2
SEO-2
SEO-1SN-2
SNO-1
SE-1
SN-1
35B
25B
SEO -
SNO -
EMERGENCY OPEN
POSITION LIMIT SWITCH
NORMAL OPEN
POSITION LIMIT SWITCH
DS
DS - DISCONNECT SWITCH ON MX200
NOTESREFERENCELEGEND
LIMIT SWITCH
GND
907
903
902
801
901
807
804
803
904
905
906
805
806
CCEO - COIL CONTROL
RELAY (OPEN EMERGENCY)
CCNO - COIL CONTROL RELAY
(OPEN NORMAL)
GROUND
CCE - COIL CONTROL
RELAY (EMERGENCY)
CCN - COIL CONTROL
RELAY (NORMAL)
COMMON
J5B
24V 10V 11V 10V
XE1 XE2
24V 10V 11V 10V
XN1 XN2
CCN CCE
XN1 -
XN2 -
XE1 -
XE2 -
NORMAL CONTROL TRANSFORMER
NORMAL 3 PHASE SENSING
TRANSFORMER
EMERGENCY CONTROL TRANSFORMER
EMERGENCY 3 PHASE SENSING
TRANSFORMER
801
3-PHASE EMERGENCY SENSING
SINGLE PHASE EMERGENCY
SENSING
3-PHASE NORMAL SENSING
NORMAL CONTROL POWER
EMERGENCY CONTROL POWER
BK/W
BK
BK/W
BK/W
BK
BK/W
901
BL 800
BL/W 902
G 804
G/W 803
Y 805
Y/W 806
G 804
G/W 807
BL 900
BL/W 902
G 904
G/W 903
Y 905
Y/W 906
G
904
G/W 907
TRANSFORMER LEADS
COLOR CODES:
BK
BK/W
BL
G
G/W
Y
-
-
-
-
-
-
BLACK
BLACK/WHITE STRIPE
BLUE
GREEN
GREEN/WHITE STRIPE
YELLOW
800
900
EMERGENCY 24V OUTPUT
NORMAL 24V OUTPUT
(18)
(1)
BL/W - BLUE/WHITE STRIPE
Y/W - YELLOW/WHITE STRIPE
CCEO CCNO
908
808
908
808
ATS Electrical Schematic
CTSD 3/4 Pole
Sheet 1 of 3
40 - 260 Amp
Page 19

206 306
506
1 3
7 9
905 906 805 806
800
902 801 901
807
GND
804 803 904
907
26 36
25ZZ 25ZA
1 9
10 18
1 3
4 6
INTERCONNECT PLUGS
J5B
J8
J6
RELAY/TRANSFORMER
BOX TO POWER PANEL
MX SERIES CONTROLRELAY/TRANSFORMER BOX TO
MX SERIES CONTROL PANEL
209
309
307 406
20 21 22
1514
30 31 32
16
1 4
9 12
J9
RELAY/TRANSFORMER
BOX TO AUXILIARY
CONTROL PANEL
206 306
1 3
7 9
J10
RELAY/TRANSFORMER
209307
20 21 22
1514 16
30 31 32
1 4
9 12
J7
RELAY/TRANSFORMER
BOX TO POWER PANEL
BOX TO AUXILIARY
CONTROL PANEL
(IF REQUIRED)
WIRE CONNECTION
OPTIONAL
RELAY/TRANSFORMER BOX
4 2 6
3 1 5
209
801
20 21
800
206
C
C
N
4 2 6
3 1 5
307
901
30 31
900
306
C
C
E
XE1
J8
J7
XN1
900
902
904
906
905
903
31 30
800
902
804
806
805
803
21 20
24V 10V 11V 24V 10V 11V
J10 J9
804807
XN2
2122
J5B ON BOTTOM
POWER
PANEL
J7
J8
J6
RELAY/
TRANSFORMER
BOX
MX SERIES
CONTROL PANEL
INTERCONNECT PLUG DIAGRAM
904907
XE2
3132
XE2 ON TOP
J9 J10
PANEL TO POWER PANEL
ATS
J5A
J5B
903
900
5 1 3
6 2 4
309
808
20 21
800
406
C
C
EO
5 1 3
6 2 4
308
908
30 31
900
506
C
C
N
O
25B
35B
808908
308
309308
406
506
PLUG J5A AND TO POWER PANEL
CONTROL PANEL
AUXILIARY
J11
20 21 800
COM234
30 31 900
901A
900
1 4
9 12
J11
AUXILIARY CONTROL
PANEL TO
POWER PANEL
800
801A
800
902
DS
NOTESREFERENCELEGEND
T3T2T1 TN
E3E2E1 EN
N3N2N1 NN
CN/CE
20 21 22
30 31 32
A4-1
A4-1
A4-2
A4-2
206
209
306
CA
A4 SN
SEA3
ATS POWER PANEL LAYOUT
306206
GND
A3-1
A3-2
A4-1
A4-2
A3-1
A3-1
A3-2
A3-2
14 15 16
AUXILIARY CONTACTS
SEO
SNO
SOL
COM234
SOL-2
SOL-1
SE-1SN-1
SEO-1SN-2
SEO-2SE-2
SOL-1SNO-1
SOL-2SNO-2
25ZA
25ZA
25ZA
25ZA
25ZA
26
25B
35B
35B
25B
25ZA
25ZA
25ZA
801A
901A
36
35B
25B
801
901
ATS Electrical Schematic
CTSD 3/4 Pole
Sheet 2 of 3
40 - 260 Amp
Page 20

CUSTOMER CONNECTIONS
E
CONTACT RATING
10 AMP @ 250 VAC
10 AMP @ 30 VDC
11 12 13
E
ENGINE START (P RELAY)
(12" X 18")
905 906 805 806
902 801A 901A GND
807
908
804
808
803 903
900
1 9
10 18
J5A
PLUG ON RELAY/TRANSFORMER BOX
(305mm X 457mm)
A3, A4 20 AMP @ 125, 250 VAC
FROM MX200 CONTROL PANEL TO J5B
INSIDE VIEW OF CABINET DOOR
INTERCONNECT PLUGS
904
800
AND TO POWER PANEL
AUXILIARY CONTROL PANEL
H1
H3
H2 H4
X1
X2
XFMN
H1
H3
H2 H4
X1
X2
XFME
K-1228
3 2 1
8 7 6 5
12 11 10 9
4 14 13
K-1228
3 2 1
8 7 6 5
12 11 10 9
4 14 13
2120
23
COM
3130
33
COM
SLE
SLN
K-1232
K-1232
234
801A 800
23
CONTROL CIRCUIT SCHEMATIC
XFMN XFME
20 21 30 31
COM
234
SLN
SLE
SOL
23
33
XFMN - NORMAL
POWER
TRANSFORMER
XFME - EMERGENCY
POWER
TRANSFORMER
234
901A 900
33
TO POWER PANEL
801A 801
800
SOL-1
SLN
901A 901
900
SOL-2
SLE
WIRE CONNECTION
WIRE IN
INTERCONNECT PLUG
NOTESREFERENCELEGEND
RELAY
P
J2,J4 TERMINALS FOR ADDED
OPTIONAL ACCESSORIES ONLY.
1
2
J1
A
B
PANEL TO P RELAY
FROM MX200 CONTROL
NOTE:
Y260092
6 5 4
3 2 1
B A
9 8 7
12A13
12 11
J4
J2
J1
J6 J5A
P
ENGINE
START
CONTACTS
TO J1 PIN 2
TO J1 PIN 1
MX200
CONTROL PANEL
K-1268
A3, A4
SEE POWER CIRCUIT
SCHEMATIC & LAYOUT
XFME/N PART #
PRIMARY VOLTAGE
600 V, 60 Hz
K-3087
K-3071
K-3071
K-3070
K-3089
480 V, 60 Hz
208 V, 60 Hz
240 V, 60 Hz
380 V, 50 Hz
12A
ATS Electrical Schematic
CTSD 3/4 Pole
Sheet 3 of 3
40 - 260 Amp
Page 21

N2
T2
N1
T1
NN
TN
E2
E1
EN
306
CCE
CCE
CCN
206
CCN
CA
CN/CE
21
20
31
30
MAIN TRANSFER OPERATOR
MAIN TRANSFER OPERATOR
20 21
31
30
E1,2,N - EMERGENCY LINE
T1,2,N - LOAD
N1,2,N - NORMAL LINE
ATS POWER CIRCUIT SCHEMATIC
SWITCHED OR SOLID NEUTRAL
AS SPECIFIED FOR
CAPACITOR
3 WIRE SYSTEMS.
CA-
CN/CE-
307
209
JUMPER
WIRE CONNECTION
WIRE ON
TERMINAL BLOCK
WIRE IN
INTERCONNECT PLUG
OPTIONAL
LOCATED ON RELAY/
TRANSFORMER BOX
ATS SHOWN IN NORMAL
POSITION WITH NO POWER
AVAILABLE.
25ZZ
25ZA
36
GND
DS
SEO
SNO
SE
SN
J6
26
SE-2
25ZA
SE -
SN -
EMERGENCY POSITION
LIMIT SWITCH
NORMAL POSITION
LIMIT SWITCH SCHEMATIC
TO MX SERIES
CONTROL PANEL
(6)
(1)
15
14
506
CCNOCCEO
406
CCNOCCEO
308309
SNO-2
SEO-2
SEO-1SN-2
SNO-1
SE-1
SN-1
35B
25B
SEO -
SNO -
EMERGENCY OPEN
POSITION LIMIT SWITCH
NORMAL OPEN
POSITION LIMIT SWITCH
DS
DS - DISCONNECT SWITCH ON MX200
NOTESREFERENCELEGEND
LIMIT SWITCH
GND
903
902
801
901
804
803
904
905
906
805
806
CCEO - COIL CONTROL RELAY (OPEN EMERGENCY)
CCNO - COIL CONTROL RELAY (OPEN NORMAL)
GROUND
CCE - COIL CONTROL RELAY (EMERGENCY)
CCN - COIL CONTROL RELAY (NORMAL)
COMMON
J5B
24V 10V 11V
XE1
24V 10V 11V
XN1
CCN CCE
XN1 -
XE1 -
NORMAL CONTROL TRANSFORMER
EMERGENCY CONTROL TRANSFORMER
801
SINGLE PHASE EMERGENCY SENSING
SINGLE PHASE NORMAL SENSING
NORMAL CONTROL POWER
EMERGENCY CONTROL POWER
BK/W
BK
BK/W
BK
901
BL 800
BL/W 902
G 804
G/W 803
Y 805
Y/W 806
BL 900
BL/W 902
G 904
G/W 903
Y 905
Y/W 906
TRANSFORMER LEADS
COLOR CODES:
BK
BK/W
BL
G
G/W
Y
-
-
-
-
-
-
BLACK
BLACK/WHITE STRIPE
BLUE
GREEN
GREEN/WHITE STRIPE
YELLOW
800
900
EMERGENCY 24V OUTPUT
NORMAL 24V OUTPUT
(18)
(1)
BL/W - BLUE/WHITE STRIPE
Y/W - YELLOW/WHITE STRIPE
CCEO CCNO
908
808
908
808
(BLANK)
XN2 -
NORMAL 3-PHASE SENSING TRANSFORMER
(NOT USED)
807
10V
G 804
G/W 807
XN2
BK/W
ATS Electrical Schematic
CTSD 2 Pole
Sheet 1 of 3
40 - 260 Amp
Page 22

206 306
506
1 3
7 9
905 906 805 806
800902 801 901 GND
804 803 904 26 36
25ZZ 25ZA
1 9
10 18
1 3
4 6
INTERCONNECT PLUGS
J5B
J8
J6
RELAY/TRANSFORMER
BOX TO POWER PANEL
MX SERIES CONTROLRELAY/TRANSFORMER BOX TO
MX SERIES CONTROL PANEL
209
309
307 406
20 21
1514
30 31
1 4
9 12
J9
RELAY/TRANSFORMER
BOX TO AUXILIARY
CONTROL PANEL
206 306
1 3
7 9
J10
RELAY/TRANSFORMER
209307
20 21
1514
30 31
1 4
9 12
J7
RELAY/TRANSFORMER
BOX TO POWER PANEL
BOX TO AUXILIARY
CONTROL PANEL
(IF REQUIRED)
WIRE CONNECTION
OPTIONAL
RELAY/TRANSFORMER BOX
K-1260
4 2 6
3 1 5
209
801
20 21
800
206
C
C
N
K-1260
4 2 6
3 1 5
307
901
30 31
900
306
C
C
E
XE1
J8
J7
XN1
900
902
904
906
905
903
31 30
800
902
804
806
805
803
21 20
24V 10V 11V 24V 10V 11V
J10 J9
J5B ON BOTTOM
POWER
PANEL
J7
J8
J6
RELAY/
TRANSFORMER
BOX
MX SERIES
CONTROL PANEL
INTERCONNECT PLUG DIAGRAM
J9 J10
PANEL TO POWER PANEL
ATS
J5A
J5B
903
900
K-1260
5 1 3
6 2 4
309
808
20 21
800
406
C
C
EO
K-1260
5 1 3
6 2 4
308
908
30 31
900
506
C
C
N
O
25B
35B
808908
308
309308
406
506
804807
XN2
2122
WIRE #22 REMAINS WIRED IN
RELAY/ TRANSFORMER BOX.
WIRES #22, #32 ARE NOT CONNECTED
ON ATS POWER PANEL.
807
PLUG J5A AND TO POWER PANEL
CONTROL PANEL
AUXILIARY
J11
20 21 800
COM234
30 31 900
901A
900
1 4
9 12
J11
AUXILIARY CONTROL
PANEL TO
POWER PANEL
800
801A
800
902
DS
LEGEND
T2T1 TN
E2E1 EN
N2N1 NN
CN/CE
20 21
30 31
A4-1
A4-1
A4-2
A4-2
206
209
306
CA
A4 SN
SEA3
ATS POWER PANEL LAYOUT
306206
GND
A3-1
A3-2
A4-1
A4-2
A3-1
A3-1
A3-2
A3-2
14 15
AUXILIARY CONTACTS
SEO
SNO
SOL
COM234
SOL-2
SOL-1
SE-1SN-1
SEO-1SN-2
SEO-2SE-2
SOL-1SNO-1
SOL-2SNO-2
25ZA
25ZA
25ZA
25ZA
25ZA
26
25B
35B
35B
25B
25ZA
25ZA
25ZA
801A
901A
36
35B
25B
801
901
ATS Electrical Schematic
CTSD 2 Pole
Sheet 2 of 3
40 -260 Amp
Page 23

CUSTOMER CONNECTIONS
E
CONTACT RATING
10 AMP @ 250 VAC
10 AMP @ 30 VDC
11 12 13
E
ENGINE START (P RELAY)
(12" X 18")
905 906 805 806
902 801A 901A GND
807
908
804
808
803 903
900
1 9
10 18
J5A
PLUG ON RELAY/TRANSFORMER BOX
(305mm X 457mm)
A3, A4 20 AMP @ 125, 250 VAC
FROM MX200 CONTROL PANEL TO J5B
INSIDE VIEW OF CABINET DOOR
INTERCONNECT PLUGS
904
800
AND TO POWER PANEL
AUXILIARY CONTROL PANEL
H1
H3
H2 H4
X1
X2
XFMN
H1
H3
H2 H4
X1
X2
XFME
3 2 1
8 7 6 5
12 11 10 9
4 14 13
3 2 1
8 7 6 5
12 11 10 9
4 14 13
2120
23
COM
3130
33
COM
SLE
SLN
234
801A 800
23
CONTROL CIRCUIT SCHEMATIC
XFMN XFME
20 21 30 31
COM
234
SLN
SLE
SOL
23
33
XFMN - NORMAL
POWER
TRANSFORMER
XFME - EMERGENCY
POWER
TRANSFORMER
234
901A 900
33
TO POWER PANEL
801A 801
800
SOL-1
SLN
901A 901
900
SOL-2
SLE
WIRE CONNECTION
WIRE IN
INTERCONNECT PLUG
LEGEND
RELAY
P
J2,J4 TERMINALS FOR ADDED
OPTIONAL ACCESSORIES ONLY.
1
2
J1
A
B
PANEL TO P RELAY
FROM MX200 CONTROL
NOTE:
6 5 4
3 2 1
B A
9 8 7
12A13
12 11
J4
J2
J1
J6 J5A
P
ENGINE
START
CONTACTS
TO J1 PIN 2
TO J1 PIN 1
MX200
CONTROL PANEL
A3, A4
SEE POWER CIRCUIT
SCHEMATIC & LAYOUT
12A
ATS Electrical Schematic
CTSD 2 Pole
Sheet 3 of 3
40 - 260 Amp
Page 24

LIMIT SWITCH SCHEMATIC
ATS POWER CIRCUIT SCHEMATIC
LIMIT SWITCH
LIMIT SWITCH
LIMIT SWITCH
AVAILABLE.
POSITION WITH NO POWER
ATS SHOWN IN NORMAL
DISCONNECT SWITCH ON MX200DS -
LIMIT SWITCH
EMERGENCY OPEN POSITIONSEO -
NORMAL OPEN POSITIONSNO -
35B
25B
SEO
SNO
- CN/O CUTOUT SWITCHESSCN/SCNO
- CE/O CUTOUT SWITCHESSCE/SCEO
- BRIDGE RECTIFIER, CN/ORTN
- BRIDGE RECTIFIER, CE/ORTE
- NORMAL TRANSFER OPERATORCN/0
307
JUMPER
JUMPER
307A
506
SCNOSCN
14
-+
-+
306SCESCEO
309
501R
500R
RTE
406
CE/O
CCEO
CCEO
CCE
CCE
308209
217
400R
401R
RTN
30 31 32222120
206
CN/O
CCN
CCN
CCNO
CCNO
15
16
(1)
(6)
CONTROL PANEL
TO MX SERIES
NORMAL POSITION
EMERGENCY POSITION
SN -
SE -
25ZA
SN
SE
DS
26
J6
SN
SE
SNO
SEO
ATR/DS
GND
36
25ZA
25ZZ
TRANSFORMER BOX
LOCATED ON RELAY/
OPTIONAL
INTERCONNECT PLUG
WIRE IN
TERMINAL BLOCK
WIRE ON
WIRE CONNECTION
CE/O
4 WIRE SYSTEMS.
AS SPECIFIED FOR
SWITCHED OR SOLID NEUTRAL
N1,2,3,N - NORMAL LINE
T1,2,3,N - LOAD
E1,2,3,N - EMERGENCY LINE
- EMERGENCY TRANSFER OPERATOR
30
31
32
20
21
22
EN
E1
E2
E3
TN
NN
T1
N1
T2
N2
T3
N3
GND
907
903
902
801
901
807
804
803
904
905
906
805
806
CCEO - COIL CONTROL RELAY
(OPEN EMERGENCY)
CCNO - COIL CONTROL RELAY
(OPEN NORMAL)
GROUND
CCE - COIL CONTROL RELAY (EMERGENCY)
CCN - COIL CONTROL RELAY (NORMAL)
COMMON
J5
24V 10V 11V 10V
XE1 XE2
24V 10V 11V 10V
XN1 XN2
CCN CCE
XN1 -
XN2 -
XE1 -
XE2 -
NORMAL CONTROL TRANSFORMER
NORMAL 3 PHASE SENSING
TRANSFORMER
EMERGENCY CONTROL TRANSFORMER
EMERGENCY 3 PHASE SENSING
TRANSFORMER
801
3-PHASE EMERGENCY SENSING
SINGLE PHASE EMERGENCY SENSING
3-PHASE NORMAL SENSING
NORMAL CONTROL POWER
EMERGENCY CONTROL POWER
BK/W
BK
BK/W
BK/W
BK
BK/W
901
BL 800
BL/W 902
G 804
G/W 803
Y 805
Y/W 806
G 804
G/W 807
BL 900
BL/W 902
G 904
G/W 903
Y 905
Y/W 906
G
904
G/W 907
TRANSFORMER LEADS
COLOR CODES:
BK
BK/W
BL
G
G/W
Y
-
-
-
-
-
-
BLACK
BLACK/WHITE STRIPE
BLUE
GREEN
GREEN/WHITE STRIPE
YELLOW
800
900
EMERGENCY 24V OUTPUT
NORMAL 24V OUTPUT
(18)
(1)
BL/W - BLUE/WHITE STRIPE
Y/W - YELLOW/WHITE STRIPE
CCEO CCNO
908
808
908
808
LEGEND REFERENCE NOTES
ATS Electrical Schematic
CTSD 3/4 Pole
Sheet 1 of 2
400 Amp
Page 25

Page 26
NOTESREFERENCELEGEND
INTERCONNECT PLUGS
J5
J8
J6
J9 J10
J7
RELAY/TRANSFORMER BOX
INTERCONNECT PLUG DIAGRAM
4 2 6
3 1 5
209
801
20
21
800
206
4 2 6
3 1 5
307
901
30
31
900
306
900
902
904
906
905
903
31 30
800
902
804
806
805
803
21 20
24V 10V 11V 24V 10V 11V
804807
2122
904907
3132
5 1 3
6 2 4
309
808
20
21
800
406
5 1 3
6 2 4
308
908
30
31
900
506
ATS Electrical Schematic
CTSD 3/4 Pole
Sheet 2 of 2
400 Amp
206 306
506
1 3
7 9
905 906 805 806
800902 801 901
807
GND
804 803 904
907
26 36
25ZZ 25ZA
1 9
10 18
1 3
4 6
RELAY/TRANSFORMER
BOX TO POWER PANEL
MX SERIES CONTROLRELAY/TRANSFORMER BOX TO
MX SERIES CONTROL PANEL
209
309
307 406
20 21 22
1514
30 31 32
16
1 4
9 12
RELAY/TRANSFORMER
BOX TO AUXILIARY
CONTROL PANEL
206 306
1 3
7 9
RELAY/TRANSFORMER
209307
20 21 22
1514 16
30 31 32
1 4
9 12
RELAY/TRANSFORMER
BOX TO POWER PANEL
BOX TO AUXILIARY
CONTROL PANEL
(IF REQUIRED)
WIRE CONNECTION
OPTIONAL
C
C
N
C
C
E
XE1
J8
J7
XN1
J10 J9
XN2
J5 ON BOTTOM
POWER
PANEL
DS
J8
J6
RELAY/
TRANSFORMER
BOX
MX SERIES
CONTROL PANEL
XE2
XE2 ON TOP
J9 J10
PANEL TO POWER PANEL
ATS
J5
J5
903
900
C
C
E
O
C
C
N
O
25B
35B
808908
308
309308
406
506
800
902
J7
+
-
+
-
A4-2
A4-2
A4-1
A4-1
SE
SEO
A3-1
A3-2
217
209
400R
401R
RTN
SCNO
SCN
CN/O
SNO
SN
A4
A4
A3-2
A3-2
A3-1
A3-1
309
307A
501R 500R
RTE
SCEO
SCE
323130
161514
222120
CE/O
NNN1 N2 N3
ENE1 E2 E3
TNT1 T2 T3
A4-2
A4-1
A3-2
A3-1
AUXILIARY CONTACTS
ATS POWER PANEL LAYOUT

N2
T2
N1
T1
NN
TN
E2
E1
EN
21
20
31
30
- EMERGENCY TRANSFER OPERATOR
E1,2,N - EMERGENCY LINE
T1,2,N - LOAD
N1,2,N - NORMAL LINE
ATS POWER CIRCUIT SCHEMATIC
SWITCHED OR SOLID NEUTRAL
AS SPECIFIED FOR
3 WIRE SYSTEMS.
CE/O
WIRE CONNECTION
WIRE ON
TERMINAL BLOCK
WIRE IN
INTERCONNECT PLUG
OPTIONAL
LOCATED ON RELAY/
TRANSFORMER BOX
25ZZ
25ZA
36
GND
ATR/DS
SEO
SNO
SE
SN
J6
26
DS
SE
SN
25ZA
SE -
SN -
EMERGENCY POSITION
NORMAL POSITION
LIMIT SWITCH SCHEMATIC
TO MX SERIES
CONTROL PANEL
(6)
(1)
15
CCNO
CCNO
CCN
CCN
CN/O
206
20 21
31
RTN
401R
400R
217
209 308
CCE
CCE
CCEO
CCEO
CE/O
406
RTE
500R
501R
309
SCEO SCE 306
+ -
+ -
14
SCN SCNO
506
307A
JUMPER
JUMPER
307
CN/0 - NORMAL TRANSFER OPERATOR
RTE - BRIDGE RECTIFIER, CE/O
RTN - BRIDGE RECTIFIER, CN/O
SCE/SCEO - CE/O CUTOUT SWITCHES
SCN/SCNO - CN/O CUTOUT SWITCHES
SNO
SEO
25B
35B
SNO - NORMAL OPEN POSITION
SEO - EMERGENCY OPEN POSITION
LIMIT SWITCH
DS - DISCONNECT SWITCH ON MX200
ATS SHOWN IN NORMAL
POSITION WITH NO POWER
AVAILABLE.
NOTESREFERENCELEGEND
LIMIT SWITCH
LIMIT SWITCH
LIMIT SWITCH
GND
903
902
801
901
804
803
904
905
906
805
806
CCEO - COIL CONTROL
RELAY (OPEN EMERGENCY)
CCNO - COIL CONTROL
RELAY (OPEN NORMAL)
GROUND
CCE - COIL CONTROL
RELAY (EMERGENCY)
CCN - COIL CONTROL
RELAY (NORMAL)
COMMON
J5
24V 10V 11V
XE1
30
CCE
XN1 -
XE1 -
NORMAL CONTROL TRANSFORMER
EMERGENCY CONTROL TRANSFORMER
SINGLE PHASE EMERGENCY SENSING
SINGLE PHASE NORMAL SENSING
NORMAL CONTROL POWER
EMERGENCY CONTROL POWER
BK/W
BK
901
BL
900
BL/W
902
G 904
G/W
903
Y 905
Y/W
906
TRANSFORMER LEADS
COLOR CODES:
BK
BK/W
BL
G
G/W
Y
-
-
-
-
-
-
BLACK
BLACK/WHITE STRIPE
BLUE
GREEN
GREEN/WHITE STRIPE
YELLOW
800
900
EMERGENCY 24V OUTPUT
NORMAL 24V OUTPUT
(18)
(1)
BL/W - BLUE/WHITE STRIPE
Y/W - YELLOW/WHITE STRIPE
CCNO
908
908
808
(BLANK)
XN2 - NORMAL 3-PHASE SENSING
TRANSFORMER
(NOT USED)
807
24V 10V 11V
XN1
CCN
801
BK/W
BK
BL 800
BL/W 902
G 804
G/W 803
Y 805
Y/W 806
CCEO
808
10V
G 804
G/W 807
XN2
22
BK/W
ATS Electrical Schematic
CTSD 2 Pole
Sheet 1 of 2
400 Amp
Page 27

206 306
506
1 3
7 9
905 906 805 806
800902 801 901 GND
804 803 904 26 36
25ZZ 25ZA
1 9
10 18
1 3
4 6
INTERCONNECT PLUGS
J5
J8
J6
RELAY/TRANSFORMER
BOX TO POWER PANEL
MX SERIES CONTROLRELAY/TRANSFORMER BOX TO
MX SERIES CONTROL PANEL
209
309
307 406
20 21
1514
30 31
1 4
9 12
J9
RELAY/TRANSFORMER
BOX TO AUXILIARY
CONTROL PANEL
206 306
1 3
7 9
J10
RELAY/TRANSFORMER
209307
20 21
1514
30 31
1 4
9 12
J7
RELAY/TRANSFORMER
BOX TO POWER PANEL
BOX TO AUXILIARY
CONTROL PANEL
(IF REQUIRED)
WIRE CONNECTION
OPTIONAL
RELAY/TRANSFORMER BOX
4 2 6
3 1 5
209
801
20 21
800
206
C
C
N
4 2 6
3 1 5
307
901
30 31
900
306
C
C
E
XE1
J8
J7
XN1
900
902
904
906
905
903
31 30
800
902
804
806
805
803
21 20
24V 10V 11V 24V 10V 11V
J10 J9
J5 ON BOTTOM
POWER
PANEL
J7
J8
J6
RELAY/
TRANSFORMER
BOX
MX SERIES
CONTROL PANEL
INTERCONNECT PLUG DIAGRAM
J9 J10
PANEL TO POWER PANEL
ATS
J5
J5
903
900
5 1 3
6 2 4
309
808
20 21
800
406
C
C
E
O
5 1 3
6 2 4
308
908
30 31
900
506
C
C
N
O
25B
35B
808908
308
309308
406
506
804807
XN2
2122
WIRE #22 REMAINS WIRED IN
RELAY/ TRANSFORMER BOX.
WIRES #22, #32 ARE NOT CONNECTED
ON ATS POWER PANEL.
807
800
902
DS
NOTESLEGEND
ATS POWER PANEL LAYOUT
A3-1
A3-2
A4-1
A4-2
AUXILIARY CONTACTS
T2
T1
TN
E2
E1
EN
N2
N1
NN
CE/O
20
21
14
15
30
31
SCE
SCEO
RTE
500R501R
307A
309
A3-1
A3-1
A3-2
A3-2
A4
A4
SN
SNO
CN/O
SCN
SCNO
RTN
401R 400R
209
217
A3
A3
SEO
SE
A4-1
A4-1
A4-2
A4-2
-
+
-
+
ATS Electrical Schematic
CTSD 2 Pole
Sheet 2 of 2
400 Amp
Page 28

NOTESREFERENCELEGEND
TO MX SERIES
CONTROL PANEL
(6)
(1)
SNO
SEO
SN - NORMAL POSITION
SE - EMERGENCY POSITION
25B
35B
25ZZ
25ZA
36
GND
ATR/DS
SEO
SNO
SE
SN
J6
26
DS
SE
SN
25ZA
DS -
SEO -
SNO -
DISCONNECT SWITCH
EMERGENCY OPEN POSITION
LIMIT SWITCH
NORMAL OPEN POSITION
LIMIT SWITCH SCHEMATIC
ATS SHOWN IN NORMAL
POSITION WITH NO
POWER AVAILABLE.
N3
T3
N2
T2
N1
T1
NN
TN
E3
E2
E1
EN
306
CCE
CCNO
CCN
206
CCEO
22
21
20
32
31
30
- CLOSE INTO EMERGENCY,
20 21 22
32
3130
E1,2,3,N - EMERGENCY LINE
T1,2,3,N - LOAD
N1,2,3,N - NORMAL LINE
ATS POWER CIRCUIT SCHEMATIC
SWITCHED OR SOLID
NEUTRAL
AS SPECIFIED FOR
TRANSFER OPERATOR
4 WIRE SYSTEMS.
CE
506406
- CLOSE INTO NORMAL,
TRANSFER OPERATOR
CN
- OPEN FROM EMERGENCY,
TRANSFER OPERATOR
CEO
- OPEN FROM NORMAL,
TRANSFER OPERATOR
CNO
- DISCONNECT SWITCHDS
- CE BRIDGE RECTIFIERRE
- CN BRIDGE RECTIFIERRN
- CEO BRIDGE RECTIFIERREO
- CNO BRIDGE RECTIFIERRNO
CN
RN
+
REO
+
-
CEO
CE
CNO
RE
+
RNO
+
206R 208R 306R 307R
307
209
308R406R 209R 506R
-
-
CCE
CCNO
308
309
CCN
CCEO
201
502
WIRE CONNECTION
WIRE ON
TERMINAL BLOCK
WIRE IN
INTERCONNECT PLUG
OPTIONAL
LOCATED ON RELAY/
TRANSFORMER BOX
LIMIT SWITCH
LIMIT SWITCH
LIMIT SWITCH
16
15
14
-
DS
DS
GND
907
903
902
801
901
807
804
803
904
905
906
805
806
CCEO - COIL CONTROL
RELAY (OPEN EMERGENCY)
CCNO - COIL CONTROL
RELAY (OPEN NORMAL)
GROUND
CCE - COIL CONTROL
RELAY (EMERGENCY)
CCN - COIL CONTROL
RELAY (NORMAL)
COMMON
J5
24V 10V 11V 10V24V 10V 11V 10V
XN1 XN2
XN1 -
XN2 -
XE1 -
XE2 -
NORMAL CONTROL TRANSFORMER
NORMAL 3 PHASE SENSING
TRANSFORMER
EMERGENCY CONTROL
TRANSFORMER
EMERGENCY 3 PHASE SENSING
TRANSFORMER
SINGLE PHASE EMERGENCY
SENSING
3-PHASE NORMAL SENSING
NORMAL CONTROL POWER
EMERGENCY CONTROL POWER
BK/W
BK
BK/W
901
BL 800
BL/W 902
G 804
G/W 803
Y 805
Y/W 806
G 804
G/W 807
BL
900
BL/W
902
G
904
G/W
903
Y
905
Y/W
906
G
904
G/W
907
800
900
EMERGENCY 24V OUTPUT
NORMAL 24V OUTPUT
(18)
(1)
BL/W - BLUE/WHITE STRIPE
Y/W - YELLOW/WHITE STRIPE
CCEO CCNO
908
808
908
808
TRANSFORMER LEADS
COLOR CODES:
BK
BK/W
BL
G
G/W
Y
-
-
-
-
-
-
BLACK
BLACK/WHITE STRIPE
BLUE
GREEN
GREEN/WHITE STRIPE
YELLOW
CCN
801
CCE
BK/W
BK
BK/W
XE1 XE2
3-PHASE EMERGENCY SENSING
ATS Electrical Schematic
CTSD 3/4 Pole
Sheet 1 of 2
600 - 3000 Amp
Page 29

NOTESREFERENCELEGEND
206 306
506
1 3
7 9
807
GND
804 803 904
907
J5
J8
J6
RELAY/TRANSFORMER
BOX TO POWER PANEL
MX SERIES CONTROLRELAY/TRANSFORMER BOX TO
MX SERIES CONTROL PANEL
209
309
307 406
20 21 22
1514
30 31 32
16
1 4
9 12
J9
RELAY/TRANSFORMER
BOX TO AUXILIARY
CONTROL PANEL
206 306
1 3
7 9
J10
RELAY/TRANSFORMER
209307
20 21 22
1514 16
30 31 32
1 4
9 12
J7
RELAY/TRANSFORMER
BOX TO POWER PANEL
BOX TO AUXILIARY
CONTROL PANEL
(IF REQUIRED)
904907
XE2
3132
XE2 ON TOP
J9 J10
PANEL TO POWER PANEL
ATS
J5
J5
903
900
5 1 3
6 2 4
309
808
20 21
800
406
C
C
EO
5 1 3
6 2 4
308
908
30 31
900
506
C
C
N
O
25B
35B
808908
308
309308
406
506
800
902
POWER
PANEL
J7
J8
J6
RELAY/
TRANSFORMER
BOX
MX SERIES
CONTROL PANEL
INTERCONNECT PLUG DIAGRAM
1 9
10 18
800902 801 901
905 906 805
RELAY/TRANSFORMER BOX
5 1 3
6 2 4
209
801
20 21
800
206
CCN
5 1 3
6 2 4
307
900
30 31
901
306
CCE
XE1
J8
J7
XN1
900
902
904
906
905
903
31 30
800
902
804
806
805
803
21 20
24V 10V 11V 24V 10V 11V
J10 J9
804807
XN2
2122
J5 ON BOTTOM
26 36
25ZZ 25ZA
806
1 3
4 6
INTERCONNECT PLUGS
WIRE CONNECTION
OPTIONAL
ATS POWER PANEL LAYOUT
A3-1
A3-2
A4-1
A4-2
AUXILIARY CONTACTS
25ZA25ZZ
T3T2T1TN
E3E2E1EN
N3N2N1NN
CN
20 21 22
14 15 16
30 31 32
209
502
A4
A3
SNO
SEO
307
201
RN
RNO
+
-
CNO
CE
CEO
SN
SE
REO
RE
+
-
+
-
+
-
AUTO
DS
INHIBIT
A4-1
A4-1
A4-2
A4-2
A3-1
A3-1
A3-2
A3-2
ATS Electrical Schematic
CTSD 3/4 Pole
Sheet 2 of 2
600 - 3000 Amp
Page 30

NOTESREFERENCELEGEND
N2
T2
N1
T1
NN
TN
E2
E1
EN
21
20
31
30
- CLOSE INTO EMERGENCY,
E1,2,N - EMERGENCY LINE
T1,2,N - LOAD
N1,2,N - NORMAL LINE
ATS POWER CIRCUIT SCHEMATIC
SWITCHED OR SOLID NEUTRAL
AS SPECIFIED FOR
TRANSFER OPERATOR
3 WIRE SYSTEMS.
CE
WIRE CONNECTION
WIRE ON
TERMINAL BLOCK
WIRE IN
INTERCONNECT PLUG
OPTIONAL
LOCATED ON RELAY/
TRANSFORMER BOX
25ZZ
25ZA
36
GND
ATR/DS
SEO
SNO
SE
SN
J6
26
DS
SE
SN
25ZA
DS -
SEO -
SNO -
DISCONNECT SWITCH
EMERGENCY OPEN POSITION
LIMIT SWITCH
NORMAL OPEN POSITION
LIMIT SWITCH SCHEMATIC
TO MX SERIES
CONTROL PANEL
(6)
(1)
- CLOSE INTO NORMAL,
TRANSFER OPERATOR
CN
- OPEN FROM EMERGENCY,
TRANSFER OPERATOR
CEO
- OPEN FROM NORMAL,
TRANSFER OPERATOR
CNO
- DISCONNECT SWITCHDS
- CE BRIDGE RECTIFIERRE
- CN BRIDGE RECTIFIERRN
- CEO BRIDGE RECTIFIERREO
- CNO BRIDGE RECTIFIERRNO
SNO
SEO
SN - NORMAL POSITION
SE - EMERGENCY POSITION
35B
25B
ATS SHOWN IN NORMAL
POSITION WITH NO
POWER AVAILABLE.
306
CCE
CCNO
CCN
206
CCEO
20 21
3130
506406
CN
RN
+
REO
+
-
CEO
CE
CNO
RE
+
RNO
+
206R 208R 306R 307R
DS
DS
307
209
308R406R 209R 506R
-
-
-
CCE
CCNO
308
309
CCN
CCEO
201
502
15
14
LIMIT SWITCH
LIMIT SWITCH
LIMIT SWITCH
GND
903
902
801
901
804
803
904
905
906
805
806
CCEO - COIL CONTROL
RELAY (OPEN EMERGENCY)
CCNO - COIL CONTROL
RELAY (OPEN NORMAL)
GROUND
CCE - COIL CONTROL
RELAY (EMERGENCY)
CCN - COIL CONTROL
RELAY (NORMAL)
COMMON
J5
24V 10V 11V
XE1
24V 10V 11V
XN1
CCN CCE
XN1 -
XE1 -
NORMAL CONTROL TRANSFORMER
EMERGENCY CONTROL TRANSFORMER
801
SINGLE PHASE EMERGENCY
SENSING
SINGLE PHASE NORMAL SENSING
NORMAL CONTROL POWER
EMERGENCY CONTROL POWER
BK/W
BK
BK/W
BK
901
BL 800
BL/W 902
G 804
G/W 803
Y 805
Y/W 806
BL 900
BL/W 902
G 904
G/W 903
Y 905
Y/W 906
TRANSFORMER LEADS
COLOR CODES:
BK
BK/W
BL
G
G/W
Y
-
-
-
-
-
-
BLACK
BLACK/WHITE STRIPE
BLUE
GREEN
GREEN/WHITE STRIPE
YELLOW
800
900
EMERGENCY 24V OUTPUT
NORMAL 24V OUTPUT
(18)
(1)
BL/W - BLUE/WHITE STRIPE
Y/W - YELLOW/WHITE STRIPE
CCEO CCNO
908
808
908
808
(BLANK)
XN2 - NORMAL 3-PHASE SENSING TRANSFORMER
(NOT USED)
807
10V
G 804
G/W 807
XN2
BK/W
ATS Electrical Schematic
CTSD 2 Pole
Sheet 1 of 2
600 - 3000 Amp
Page 31

NOTESREFERENCELEGEND
206 306
506
1 3
7 9
905 906 805 806
800902 801 901 GND
804 803 904 26 36
25ZZ 25ZA
1 9
10 18
1 3
4 6
INTERCONNECT PLUGS
J5
J8
J6
RELAY/TRANSFORMER
BOX TO POWER PANEL
MX SERIES CONTROLRELAY/TRANSFORMER BOX TO
MX SERIES CONTROL PANEL
209
309
307 406
20 21
1514
30 31
1 4
9 12
J9
RELAY/TRANSFORMER
BOX TO AUXILIARY
CONTROL PANEL
206 306
1 3
7 9
J10
RELAY/TRANSFORMER
209307
20 21
1514 16
30 31
1 4
9 12
J7
RELAY/TRANSFORMER
BOX TO POWER PANEL
BOX TO AUXILIARY
CONTROL PANEL
(IF REQUIRED)
WIRE CONNECTION
OPTIONAL
RELAY/TRANSFORMER BOX
5 1 3
6 2 4
209
801
20 21
800
206
C
C
N
5 1 3
6 2 4
307
900
30 31
901
306
C
C
E
XE1
J8
J7
XN1
900
902
904
906
905
903
31 30
800
902
804
806
805
803
21 20
24V 10V 11V 24V 10V 11V
J10 J9
J5 ON BOTTOM
POWER
PANEL
J7
J8
J6
RELAY/
TRANSFORMER
BOX
MX SERIES
CONTROL PANEL
INTERCONNECT PLUG DIAGRAM
J9 J10
PANEL TO POWER PANEL
ATS
J5
J5
903
900
5 1 3
6 2 4
309
808
20 21
800
406
C
C
EO
5 1 3
6 2 4
308
908
30 31
900
506
C
C
N
O
25B
35B
808908
308
309308
406
506
804807
XN2
2122
WIRE #22 REMAINS WIRED
IN RELAY/ TRANSFORMER
BOX. WIRES #22, #32
ARE NOT CONNECTED
807
800
902
ON ATS POWER PANEL.
ATS POWER PANEL LAYOUT
A3-1
A3-2
A4-1
A4-2
AUXILIARY CONTACTS
T2T1
TN
E2E1
EN
N2N1
NN
CN
20 21
14 15
30 31
A4
A3
SNO
SEO
RN
RNO
+
-
CNO
CE
CEO
SN
SE
REO
RE
+
-
+
-
A4-1
A4-1
A4-2
A4-2
A3-1
A3-1
A3-2
A3-2
+
-
209
502
307
201
25ZA25ZZ
AUTO
DS
INHIBIT
ATS Electrical Schematic
CTSD 2 Pole
Sheet 2 of 2
600 - 3000 Amp
Page 32

WIRE CONNECTION
WIRE ON
TERMINAL BLOCK
WIRE IN
INTERCONNECT PLUG
OPTIONAL
LOCATED ON RELAY/
TRANSFORMER BOX
25ZZ
25ZA
36
GND
ATR/DS
SEO
SNO
SE
SN
J6
26
DS
SE
SN
25ZA
DS -
SEO -
SNO -
DISCONNECT SWITCH
EMERGENCY OPEN POSITION
LIMIT SWITCH
NORMAL OPEN POSITION
LIMIT SWITCH SCHEMATIC
TO MX SERIES
CONTROL PANEL
(6)
(1)
SNO
SEO
SN - NORMAL POSITION
SE - EMERGENCY POSITION
25B
35B
ATS SHOWN IN NORMAL
POSITION WITH NO POWER
AVAILABLE.
N3
T3
N2
T2
N1
T1
NN
TN
E3
E2
E1
EN
306
CCE
CCNO
CCN
206
CCEO
22
21
20
32
31
30
- CLOSE INTO EMERGENCY,
20 21 22
323130
E1,2,3,N - EMERGENCY LINE
T1,2,3,N - LOAD
N1,2,3,N - NORMAL LINE
ATS POWER CIRCUIT SCHEMATIC
SWITCHED OR SOLID NEUTRAL
AS SPECIFIED FOR
TRANSFER OPERATORS
4 WIRE SYSTEMS.
CE,CE2
506406
- CLOSE INTO NORMAL,
TRANSFER OPERATORS
CN,CN2
- OPEN FROM EMERGENCY,
TRANSFER OPERATORS
CEO,CEO2
- OPEN FROM NORMAL,
TRANSFER OPERATORS
- DISCONNECT SWITCHDS
- CE BRIDGE RECTIFIERRE
- CN BRIDGE RECTIFIERRN
- CEO BRIDGE RECTIFIERREO
- CNO BRIDGE RECTIFIERRNO
CN2
RN
+
REO
+
-
CEO
CE2
CNO
RE
+
RNO
+
206R 208R 306R 307R
307
209
308R406R 209R 506R
-
--
CCE
CCNO
308
309
CCN
CCEO
201
502
CN
CE
307A
208A
CEO
2
209A 308A
CNO
2
CNO,CNO2
NOTESREFERENCELEGEND
LIMIT SWITCH
LIMIT SWITCH
LIMIT SWITCH
16
15
14
DS
DS
GND
907
903
902
801
901
807
804
803
904
905
906
805
806
CCEO - COIL CONTROL
RELAY (OPEN EMERGENCY)
CCNO - COIL CONTROL
RELAY (OPEN NORMAL)
GROUND
CCE - COIL CONTROL RELAY (EMERGENCY)
CCN - COIL CONTROL RELAY (NORMAL)
COMMON
J5
24V 10V 11V 10V
XE1 XE2
24V 10V 11V 10V
XN1 XN2
20 21 22
CCN CCE
XN1 -
XN2 -
XE1 -
XE2 -
NORMAL CONTROL TRANSFORMER
NORMAL 3 PHASE SENSING
TRANSFORMER
EMERGENCY CONTROL TRANSFORMER
EMERGENCY 3 PHASE SENSING
TRANSFORMER
801
3-PHASE EMERGENCY SENSING
SINGLE PHASE EMERGENCY SENSING
3-PHASE NORMAL SENSING
NORMAL CONTROL POWER
EMERGENCY CONTROL POWER
BK/W
BK
BK/W
BK/W
BK
BK/W
901
BL 800
BL/W 902
G 804
G/W 803
Y 805
Y/W 806
G 804
G/W 807
BL 900
BL/W 902
G 904
G/W 903
Y 905
Y/W 906
G
904
G/W 907
TRANSFORMER LEADS
COLOR CODES:
BK
BK/W
BL
G
G/W
Y
-
-
-
-
-
-
BLACK
BLACK/WHITE STRIPE
BLUE
GREEN
GREEN/WHITE STRIPE
YELLOW
800
900
EMERGENCY 24V OUTPUT
NORMAL 24V OUTPUT
(18)
(1)
BL/W - BLUE/WHITE STRIPE
Y/W - YELLOW/WHITE STRIPE
CCEO CCNO
908
808
908
808
ATS Electrical Schematic
CTSD 3/4 Pole
Sheet 1 of 2
4000 Amp
Page 33

206 306
506
1 3
7 9
905 906 805 806
800902 801 901
807
GND
804 803 904
907
26 36
25ZZ 25ZA
1 9
10 18
1 3
4 6
INTERCONNECT PLUGS
J5
J8
J6
RELAY/TRANSFORMER
BOX TO POWER PANEL
MX SERIES CONTROLRELAY/TRANSFORMER BOX TO
MX SERIES CONTROL PANEL
209
309
307 406
20 21 22
1514
30 31 32
16
1 4
9 12
J9
RELAY/TRANSFORMER
BOX TO AUXILIARY
CONTROL PANEL
206 306
1 3
7 9
J10
RELAY/TRANSFORMER
209307
20 21 22
1514 16
30 31 32
1 4
9 12
J7
RELAY/TRANSFORMER
BOX TO POWER PANEL
BOX TO AUXILIARY
CONTROL PANEL
(IF REQUIRED)
WIRE CONNECTION
OPTIONAL
RELAY/TRANSFORMER BOX
5 1 3
6 2 4
209
801
20 21
800
206
C
C
N
5 1 3
6 2 4
307
900
30 31
901
306
C
C
E
XE1
J8
J7
XN1
900
902
904
906
905
903
31 30
800
902
804
806
805
803
21 20
24V 10V 11V 24V 10V 11V
J10 J9
804807
XN2
2122
J5 ON BOTTOM
POWER
PANEL
J7
J8
J6
RELAY/
TRANSFORMER
BOX
MX SERIES
CONTROL PANEL
INTERCONNECT PLUG DIAGRAM
904907
XE2
3132
XE2 ON TOP
J9 J10
PANEL TO POWER PANEL
ATS
J5
J5
903
900
5 1 3
6 2 4
309
808
20 21
800
406
C
C
EO
5 1 3
6 2 4
308
908
30 31
900
506
C
C
N
O
25B
35B
808908
308
309308
406
506
800
902
NOTESREFERENCELEGEND
ATS POWER PANEL LAYOUT
T3T2T1
TN
E3E2E1
EN
N3N2N1
NN
CN
20 21 22
14 15 16
30 31 32
209
502
A4
A3
SNO
SEO
307
201
RN
RNO
+
-
CNO
CE
CEO
SN
SE
REO
RE
+
-
+
-
A4-1
A4-1
A4-2
A4-2
A3-1
A3-1
A3-2
A3-2
+
-
25ZA25ZZ
AUTO
DS
INHIBIT
CN2
CNO2
CE2
CEO2
A3-1
A3-2
A4-1
A4-2
AUXILIARY CONTACTS
ATS Electrical Schematic
CTSD 3/4 Pole
Sheet 2 of 2
4000 Amp
Page 34

W3
T3
NOTES/INSTRUCTIONS
RELAY OUTPUT MODULE
OPTIONAL ACCESSORIES
F
A5
A34N
A2
A1E
A1
ATS Electrical Schematic
CTS(D) Option
Sheet 1 of 1
A1,A1E,AN,F,T3,W3
LEGEND REFERENCE NOTES
Elevator Pre-Signal - Emergency (See Note)-
Elevator Pre-Signal - Normal (See Note)-
Fan Contact,-
Auxiliary Contact, (See Note)-
Auxiliary Contact,-
Auxiliary Contact,-
Auxiliary Contact,-
Auxiliary Contact,-
ENABLE T3 & DISABLE T3 BYPASS OPTION.
ENABLE T3/W3 & T3/W3 BYPASS OPTION.
PROGRAMMING NOTES IN FIELD PROGRAMMING MENU:
Note:
When T3-W3 is used in conjunction with A6-Disable T3/W3 bypass option in field program menu.
OPTION 1 INPUT (FROM MX200
CONTROL PANEL SEE TABLE BELOW)
OUTPUT
R2
OUTPUT
R1
OUTPUT
R2
OUTPUT CONTACTS
OUTPUT CONTACTS
OUTPUT
R1
16
15
14
13
12
11
10
9
7
6
8
5
R2
R1
OPTION 2 INPUT (FROM MX200
R2
CONTACT RATING: 10A @ 277VAC OR 30VDC
TO J4 PIN 3
CONTROL PANEL SEE TABLE BELOW)
5
6
7
8
9
10
11
12
13
14
15
16
1
2
3
4
R1
RW3 J2 PIN 10W3
RT3 J2 PIN 6T3
F CONTACT USES RAE RELAY CONTACT.
RAE
RA34N
RELAY
RI
RAI
RAE
RAI
J4 PIN 5F
Operates when generator is running.
J4 PIN 4A34N
CODE AS REQUIRED.
PLACE IDENTIFICATION LABEL ON RELAY OUTPUT MODULE AND FILL IN OPTION
TOP TO BOTTOM IN OPTION CODE ORDER. (EXAMPLE: A1, AN, F).
MOUNT RELAY OUTPUT MODULE ON DIN RAIL ON MX200 CONTROL PANEL FROM
3.
2.
1.
CODE
OPTION
J2 PIN 6A5
J4 PIN 6A2
J4 PIN 5A1E
J4 PIN 6A1
PANEL OUTPUT
MX200 CONTROL
to Normal, recloses after retransfer.
opens 0-60 seconds prior to transfer
closed in Neutral Position.
Operates on Normal Line Failure.
Operates on Emergency Line Failure.
Operates on Normal Line Failure.
Page 35

15 A @ 240 VAC, 10 A @ 480 VAC, 7 A @ 30 VDC
FOR 1 - 300 SECONDS TIME DELAY:
5 A @ 120 VAC, 10 A @ 28 VDC
FOR 1 AND 3 SECOND TIME DELAY:
CONTACT RATING:
DRAWING SHOWN WITH ATS IN
NORMAL POSITION AND NO POWER
AVAILABLE.
A1TD......Time delay on loss of Normal Source:
CONTACTS
OUTPUT
CONTACTS
405C
405B
405A
29CC29BB
A1TD
L2
L1
6
5
4
3
2
1
405C
45
12
29CC
A1TD
A
6
3
405B
B
29BB
789
405A
.
When the Normal line fails, the RAI relay and A1TD timer de-energize.
405C
405B
405A
29CC
29BB
A1TD
789
AB
123
456
405C
405B
405A
A1TD
405C
405A
A1TD
3. Add RAI relay module to MX200 din rail.
Normal Source failure.
Output Relay Module...............RAI
OUTPUT
A1TD
29AA
RAI
(R2)
10
9
8
29BB
(R1)
TO J4 PIN 3
TO J4 PIN 6
4
3
2
1
7
6
5
16
15
14
13
12
11
4. Wire from RAI relay to auxiliary control panel terminal block as shown.
2. Add J9 plug using additional sockets and pins.
After the set time delay contacts close to signal
.....208 VAC Systems
.....575 VAC Systems
.....480 VAC Systems
.....277 VAC Systems
.....230 VAC Systems
Transformer 10VA. 120 VAC secondary Voltage
XFR.....
TB..........Terminal Block......12 PT......
405B
XFR
20
21
29CC
29AA
29AA
RAI RELAY
TO
PLUG
J9
TO
ATS NORMAL VOLTAGE
XFR
J9
J9
21
20
29BB
29CC
RAI
A1TD
J9..........Plug - R/T Box.....
...Polarization Key
...Socket Female .093" (2)
...Socket Receptacle 12 Pt.
...Socket Male .093" (2)
...Pin Housing 12 Pt. Panel Mount
1. Mount and wire "A1TD" timer, "XFR" transformer, and terminal block on auxiliary control panel.
TB
21
20
1514
16
CONNECT PLUG
WIRE IN INTER-
BLOCK
WIRE ON TERMINAL
POINT
WIRE CONNECTION
22
32
31
30
21
20
CONTROL PANEL
BOX TO AUXILIARY
RELAY/TRANSFORMER
BOX TO POWER PANEL
RELAY/TRANSFORMER
29BB
29AA
21
20
LOCKING TAB
LOCKING TAB
MALE PLUG
9 12
41
MALE PLUG
9 12
41
INTERCONNECT PLUGS
OR
OR
ON MX200 CONTROL PANEL
MOUNT ON AUXILIARY CONTROL PANEL
J9
J7
SCHEMATIC
CONNECTION DIAGRAM
INSTRUCTIONS
OPERATION
LEGEND
NOTES LEGEND
1 to 300 seconds (adjustable)
3 seconds (fixed)1 second (fixed)
ATS Electrical Schematic
CTS(D) Option
Sheet 1 of 1
A1TD
Page 36

400 A. ATS
DELAYED ONLY
N.O.
C
N.C.
A3-2
N.O.
C
N.C.
A3-1
400 A.
N.O.
C
N.C.
A4-2
N.O.
C
N.C.
A4-1
N.C.
A3-2
C
N.O. N.O.
N.C.
A3-1
C
more than two installed, add additional terminal blocks and wire as required.
On Units requiring more than two A3 and A4 contacts which are capable of having
400 A. DELAY ATS
600-4000 A. ATS
40-260 A. ATS
A4-2
A4-1
A3-2
A3-1
N.C.
C
N.O.
N.C.
C
N.O.
N.C.
C
N.O.
N.C.
C
N.O.
600-4000 A. ATS
40-260 A. ATS
400 A. ATS ONLY
N.C.
N.O.
C
A4-1
N.C.
N.O.
C
A4-2
Normal position
S.P.D.T. contacts indicating
N.C.
N.O.
C
A4-1
N.C.
N.O.
C
A3-1
N.C.
N.O.
C
A4-2
N.C.
N.C.
C
N.O.
N.C.
C
N.O.
N.C.
C
N.O.
N.C.
N.O.
C
.......
.......
.......
.......
A4-1,2
Emergency position
S.P.D.T. contacts indicating
A3-1,2
ATS in Normal
Auxiliary contacts,
A4-1,2
ATS in Emergency
Auxiliary contacts,
A3-1,2
A3-2
C
N.O.
A4-2
A4-1
A3-2
A3-1
NOTE:
CONNECTIONSSCHEMATIC
OPERATION:
LEGEND:
ATS Electrical Schematic
CTS(D) Option
Sheet 1 of 1
A3,A3DT,A4,A4DT
LEGEND REFERENCE NOTES
Page 37

BYPASS
SWITCH
TRANSFER
SWITCH
(BP)
(ATS)
N.O.
C
ABE-1
ABE-2
ABN-1
ABN-2
N.O.
C
N.O.
C
N.O.
C
ABE-1
ABE-2
ABN-2
ABN-1
LEGEND:
OPERATION:
NOTES:
ABE-1,2
Auxiliary contacts, bypass in Emergency
ABN-1,2
Auxiliary contacts,
bypass in Normal
ABE-1,2
Auxiliary contacts will close
when the bypass
is in the Emergency position.
ABN-1,2
Auxiliary contacts will close
when the bypass
is in the Normal position.
1.
ABE, ABN LOCATION FOR 600-3000 AMPS UNITS
ABE, ABN LOCATION FOR 400 AMPS UNITS
TYPICAL BYPASS
FOR ATS FRAME
.......
.......
.......
.......
C
N.O.
C
N.O.
C
N.O.
C
N.O.
For 100-400 AMP units
(lever assembly & side
cover).
For 600-1200 AMP units, use Lever switch Actuator
For 1600-3000 AMP units, use Lever switch Actuator part.
3.
2.
SCHEMATIC CONNECTIONS
ATS Electrical Schematic
CTS(D) Option
Sheet 1 of 1
ABE,ABN
Page 38

ENABLE T3/W3 & DISABLE T3/W3 BYPASS OPTIONS.
PROGRAMMING NOTES IN FIELD PROGRAMMING MENU:
A6
A6
JUMPER
OUTPUT
OUTPUT
A6-2
A6-1
16
15
14
13
12
11
10
9
7
6
8
5
JUMPERS
R2
R1
TO J2 PIN 10 (FROM MX200
TO J2 PIN 6 (FROM MX200
A6-1 & A6-2
JUMPER
CONTACT RATING: 10A @ 277VAC OR 30VDC
TO J4 PIN 3
CONTROL PANEL OUTPUT)
CONTROL PANEL OUTPUT)
5
6
7
8
9
10
11
12
13
14
15
16
1
2
3
4
OUTPUT CONTACTS
MODULES MUST BE USED.
4. FOR MORE THEN TWO A6 CONTACTS, ADDITIONAL RELAY OUTPUT
2. ADD WIRE JUMPER BETWEEN RELAYS AS SHOWN.
LEGEND REFERENCE NOTES
CODE AS REQUIRED.
PLACE IDENTIFICATION LABEL ON RELAY OUTPUT MODULE AND FILL IN OPTION
MOUNT RELAY OUTPUT MODULE ON DIN RAIL ON MX200 CONTROL PANEL.
3.
1.
in either direction, recloses after transfer.
opens 0-60 seconds prior to transfer
ATS Electrical Schematic
CTS(D) Option
Sheet 1 of 1
A6
Auxiliary Contact, Motor disconnect-
NOTES/INSTRUCTIONS
RELAY OUTPUT MODULE
OPTIONAL ACCESSORIES
A6
Page 39

ENABLES T3/W3 & DISABLES T3/W3 BYPASS OPTIONS.
PROGRAMMING NOTES: IN FIELD PROGRAMMING MENU:
10
9
8
D
A62-3
A62-2
A62-1
MX200
TO
J9 PLUG
TO
FB
EEB
F
D
DB
E
415E
415F
415C
415D
415A
415B
D
C
A
R2
R1
K-1265
TO J4 PIN 3
TO J2 PIN 10
TO J2 PIN 6
4
3
2
1
7
6
5
16
15
14
13
12
11
2187
3456
2187
3456
2187
3456
A
R1
F
T62-1
T62-2
T62-2
T62-1
T62-3
415F
415E
A62-3
T62-2
415D
415C
A62-2
T62-1
415B
415A
A62-1
2. Add J9 plug to R/T Box as shown.
Motor Disconnect Timer(s) (Base)
T62-1,2,3.............................
Relay Output Module
5. For additional A62 Contacts, add additional timers as required to Auxiliary Control Panel.
OPTIONAL
ATS LOAD VOLTAGE
XFR
J9
J9
E
15
14
C B
R2
T62-3
J9..........Plug - R/T Box.....
...Socket Female .093" (2)
...Socket Receptacle 12 Pt.
TB..........................................Terminal Block 12 PT
XFR........................................Transformer 25 VA for 208, 240, 480 VAC systems
R1,R2...................................
prior to transfer in either direction, reclose in timed sequence after transfer.
4. Place identification labels on output module and fill in option code as required.
3. Mount and wire output module on din rail on MX200 Control Panel.
1. Mount and wire timer(s), "XFR" transformer, and terminal block on auxiliary control panel.
TB
B
A
1514
X2
X1
H4H2
H3
H1
15
14
CONNECT PLUG
WIRE IN INTER-
BLOCK
WIRE CONNECTION
WIRE ON TERMINAL
POINT
WIRE CONNECTION
MOUNT ON AUXILIARY CONTROL PANEL
CONTROL PANEL
BOX TO AUXILIARY
RELAY/TRANSFORMER
415F
415E
415D
415C
415B
415A
D
A
15
14
LOCKING TAB
Auxiliary Contact(s) for Motor Disconnect open 0-60 seconds
LEGEND REFERENCE NOTES
MALE PLUG
9
12
4
1
ON MX200 CONTROL PANEL
SCHEMATIC
CONNECTION DIAGRAM
INSTRUCTIONS
OPERATION
LEGEND
XFR
J9
ATS Electrical Schematic
CTS(D) Option
Sheet 1 of 1
A62
Page 40

POWER AVAILABLE.
AUTO POSITION AND NO
S1 SELECTOR SWITCH IN
DRAWING SHOWN WITH
START
OFF
AUTO
L7
(E)
(D)
(C)
(A)(B)
(E)
(D)
(C)
(B) (A)
engine.
(1) N.C. Contact Block
CABINET FRONT
Contact Block
shown inside view
Nameplate shown
from front
(1) Five Contact Block Mounting Flange
NON-AUTO
ENGINE START
12A
NON-AUTO
ENGINE START
24VDC
CUSTOMER SUPPLIED
L7 INPUT
442C
442B
442A
L7
from front
Nameplate shown
shown inside view
Contact Block
(Not Keyed)
(2) N.O. Contact Blocks
E12A
OFF
START
AUTO
CABINET FRONT
BYPASS SWITCH
TERMINAL BLOCK ON
PB
12B
JUMPER
CONNECTIONS
START
ENGINE
E
E13
E12B
E11
E12A
E13
E12
E11
ON MX200 DIN RAIL
E12B
E11
ON MX200 DIN RAIL
CONNECTIONS
START
ENGINE
E
12B
OFF
START
AUTO
P RELAY
11
11
12A
12
13
13
11
Nameplate, V-1842
(1) N.O.-N.C. Contact Block
Operator, (Keyed)
S1........Three position Selector Switch.
E12B
E12A
E13
E11
12B
12A
13
11
24VDC.
CUSTOMER SUPPLIED
L7 INPUT
442C
442B
442A
INPUT
24VDC
442B
442A
442B
442A
TB
CONNECTIONS
START
ENGINE
E
INPUT
24VDC
442B
442A
442B
442A
L7
(Customer supplied 24 VDC)
"NON-AUTO"
"ENGINE START"
Light will illuminate when S1 switch is not in AUTO position.
run until the switch is moved from the test position.
Position closes the circuit to the engine causing it to start and
engine. Then engine can only be started manually in this position.
Position disconnects the transfer switch start contact from the
Position provides normal operation of the transfer switch and the
from the transfer switch panel, as described below.
S1 Selector Switch provides complete start-stop control of the engine
Nameplate
E..........Engine Start connection.
Lens, Amber
Bulb
Socket
L7........Light, "Engine Start Non-Auto"
3. Add jumper between terminals E12 and E12A and add plug
PB on bypass units.
2. Add jumper between terminals 12 and 12A on ATS units.
1. Mount S1 selector switch and L7 light on cabinet front and
mount terminal block on MX200 din rail.
TB
......Socket Female (Qty. 3)
......Pin Male (Qty. 3)
......Socket Receptacle, 9 PT.
......Pin Housing, 9 PT.
PB......Plug, Engine Start
TB........(2).....Terminal Blocks
E13
E12A
E11
MALE PLUG
PB
LOCKING TAB
7 9
31
CONNECTIONS
START
ENGINE
E
S1
S1
NOTES:
OPERATION:
LEGEND:
CONNECTIONS
BYPASS SCHEMATIC
CONNECTIONS
ATS SCHEMATIC
LEGEND REFERENCE NOTES
10 AMPS @ 28VDC, 240VAC
CONTACT RATING:
10 AMPS @ 28VDC, 240VAC
CONTACT RATING:
INTERCONNECT PLUG
WIRE IN
TERMINAL BLOCK
WIRE ON MAIN
WIRE CONNECTION
O
0
X
0
O
X
(POS. 3)
(POS. 4)
(D)
N.O.
N.O.
(E)
(C)
(B)
(A)
(POS. 1)
(POS. 2)
X
X 0
N.C.
S1 OPERATION CHART
X
- CLOSED
0
O
X
X
XO
N.O.
N.C.
START
AUTO
OFF
POSITION
CONTACT
POSITION
SWITCH
O
- OPEN
ATS Electrical Schematic
CTS(D) Option
Sheet 1 of 1
L7
Page Page 41

NOTESREFERENCELEGEND
J7 J9
CABINET FRONT
INSTRUCTIONS
OPERATION
LEGEND
SCHEMATIC
CONNECTION DIAGRAM
J11
1 4
129
MALE PLUG MALE PLUGMALE PLUG 11 44
99 1212
LOCKING TAB
14
15
70
71
72
76
RELAY/TRANSFORMER
BOX TO POWER PANEL
RELAY/TRANSFORMER
20
21
30
31
32
22
MOUNT ON AUXILIARY CONTROL PANEL
16
14 15
76
72
14
15
TB
ON ATS
POWER PANEL
DS SWITCH
70 76
71 72
1. Mount and wire "XFR" transformer and terminal block on auxiliary control panel.
2. Add Disconnect Switch (N.O.) contact to power panel.
3. Add "LDS" pilot light and "FU" fuse and fuseholder to cabinet door.
4. Add wires to J7 and J11 plugs using additional sockets and pins.
If the DS Switch is turned to the "Inhibit" position, while there is power present,
the normally open (N.O.) contact of the DS closes completing the circuit to the LDS.
When the DS is placed in the "Auto" position the light is extinguished.
FU...........................................Fuse, 3 Amp, 250 V;
Fuseholder
TB...........................................Terminal Block 12 PT
J7..........Plug - R/T Box.....
...Pin Male .093" (2)
...Socket Female .093" (2)
...Socket Receptacle 12 Pt.
...Socket Female .093" (2)
J9..........Plug - R/T Box.....
LDS......"DS Switch in Inhibit" pilot light
Clear lens
Base
Red LED
Nameplate
LDS
70
72
71
14
15
76
J11 J7 J7 J11
J9
J9
XFR
ATS LOAD VOLTAGE
FU
FU
5. When used with CTAP option, retain DS Switch on power panel, add contact block as show above,
and use "XFR" transformer and "FU" fuse and fuseholder from CTAP option in place of those shown above.
DS
Transformer 10VA.
...230 VAC Systems
...277 VAC Systems
...480 VAC Systems
...575 VAC Systems
XFR...
Disconnect Switch... N.O. Block
DS.........................................
...208 VAC Systems
72
DS
76
XFR
14 15
7071
TO
J9 PLUG
TO
J11 PLUG
IN "INHIBIT"
LDS
...Socket Receptacle 12 Pt.
J11........Plug - R/T Box.....
...Socket Female .093" (2)
RELAY/TRANSFORMER
BOX TO AUXILIARY
CONTROL PANEL
72
76
WIRE CONNECTION
WIRE ON
TERMINAL BLOCK
WIRE IN INTER-
CONNECT PLUG
ON ATS POWER
PANEL
LOCKING TABLOCKING TAB
CONTROL PANEL
BOX TO AUXILIARY
ON RELAY/TRANSFORMER BOX
ATS Electrical Schematic
CTS(D) Option
Sheet 1 of 1
LDS
Page 42

ON MX200 CONTROL PANEL
CONNECTION DIAGRAM
SCHEMATIC
INSTRUCTIONS
RELAY/TRANSFORMER BOX
TO MX200 CONTROLLER
AND CABINET FRONT
900
902
OPERATION
1. Mount and wire pilot light on cabinet front.
2. Add J10 plug to R/T Box as shown.
3. Mount and wire output module on din rail on MX200 Control Panel.
4. Place identification label on output module and fill in option code as required.
Output Relay ModuleRAI, RAE..............................
...Pin Housing 9 Pt. Panel Mount
...Socket Male .093" (3)
...Socket Receptacle 9 Pt.
...Socket Female .093" (3)
...Polarization Key
J10........Plug - R/T Box.....
900 800
R1
RAE
RAE
J10 J10
90224VAC from R/T Box
800
11
12
13
14
15
16
5
6
7
(R1)
(R2)
1
2
3
4
TO J4 PIN 4
TO J4 PIN 5
TO J4 PIN 3
RN
RAE
R1
800
R1
R2
900
8
9
10
CABINET FRONT
NEUTRAL POSITION
LN
902 R2
RN
R2
LN
"Neutral Position" Pilot Light
Base,
Bulb
Lens
Nameplate
LN........................................
LEGEND
When ATS is in Neutral Position, "RN" relay closes to illuminate "LN" Pilot light.
J10
1 3
97
LOCKING TAB
MALE PLUG
NOTESREFERENCELEGEND
ATS Electrical Schematic
CTS(D) Option
Sheet 1 of 1
LN
Page 43

and on neutral pad.
one another.
wire thermostat and humidistat contacts in parallel with
3. If this option is used in conjunction with a thermostat,
2. Mount Transformer and Relay on auxiliary control panel.
575/120 V, 10 VA
277/120 V, 10 VA
... Socket Female .093" (Qty. 2)
... Socket Receptacle 12 Pt.
J9 Plug-R/T Box.....
J9
TO AUXILIARY CONTROL PANEL
1514
MALE PLUG
RELAY/TRANSFORMER BOX
9 12
41
TO J9 PLUG
TO J9 PLUG
TO J9 PLUG
480 V
TO J9 PLUG
120 V
ENCLOSURE
HD
SYSTEM ONLY)
HTR2 (480 VAC
HTR1
and lugs at bottom of ATS
interference with cables
Locate heaters to avoid
Note:
LEGEND REFERENCE NOTES
1.
( ) Use for Fig. A or Fig. B option only.
2
1
L
H
64
53
HD
15B
R
14
15
430C
430D
R
R
HTR1
turns "OFF".
point, heater is turned "ON". Below set point, heater
When humidity in cabinet exceeds humidistat set
208/120 V, 10 VA
.....
Relay, DPDT:
240/120 V, 10 VA
480/120 V, 10 VA
Transformer
Strip heater, 150W., 240 V,
Strip heater, 125W., 120V,
Humidistat,
Control voltage 120 V (for fig. B option only)
Load voltage from ATS
R............
XT...........
HTR2 .....
HTR1 .....
HD............
430B
430A,
T1, T2.....
2
1
HD
XT
64
53
HD
2
1
XT
64
53
64
53
Customer provides 120VAC control voltage
2
1
XT
B
430
A
430
R
120V
15B
208V OR 240V
430D
430C
R
HTR1
L
H
HD
R
14A
15A
15
14
14
15
L
H
15B
R
14A
15A
15
14
14
15
430C
430D
R
R
HTR2
L
H
480 V
430E
15B
R
14A
15A
14
15
14
15
430C
430D
R
R
HTR2 HTR2
CABINET MOUNTING
FIGURE B (480 VAC SYSTEMS/120 VAC CONTROL VOLTAGE)
FIGURE A (120 VAC SYSTEMS)
HUMIDISTAT
FIGURE D (480 VAC SYSTEMS)
FIGURE C (208 OR 240 VAC SYSTEMS)
NOTES:
LEGEND:
OPERATION:
SCHEMATIC
ATS Electrical Schematic
CTS(D) Option
Sheet 1 of 1
HH
Page 44

HTR2HTR2
R
R
430D
430C
15
14
15
14
15A
14A
R
15B
430E
480 V
H
L
HTR2
R
R
430D
430C
15
14
14
15
15A
14A
R
15B
H
L
15
14
14
15
15A
14A
R
TH
H
L
HTR1
R
430C
430D
208V OR 240V
15B
120V
R
430
A
430
B
SCHEMATIC
FIG. B (480 VAC SYSTEMS/120 VAC CONTROL VOLTAGE)
FIG.D(480 VAC SYSTEMS)
XT
1
2
Customer provides 120VAC control voltage
3 5
4 6
FIG.C (208 OR 240 VAC SYSTEMS)
3 5
4 6
XT
1
2
TH
3 5
4 6
XT
TH
1
2
OPERATION:
LEGEND:LEGEND:
NOTES:
T1, T2.....
430A,
430B
TH............
HTR1 .....
HTR2 .....
XT...........
R............
Load voltage from ATS
Control voltage 120 V (for fig. B option only)
Thermostat,
Strip heater, 125W., 120V,
Strip heater, 150W., 240 V,
Transformer
480/120 V, 10 VA
240/120 V, 10 VA
Relay, DPDT:
.....
208/120 V, 10 VA
When temperature in cabinet drops below thermostat set
point, heater is turned "ON". Above set point, heater
turns "OFF".
Thermostat factory set at 50 F unless otherwise
specified.
1.
THERMOSTAT
FIG. A (120 VAC SYSTEMS)
HTR1
R
R
430D
430C
15
14
R
15B
TH
3 5
4 6
H
L
1
2
( ) Use for Fig. A or Fig. B option only.
2.
NOTESREFERENCELEGEND
Note:
Locate heaters to avoid
interference with cables
and lugs at bottom of ATS
HTR1 HTR2 (480 VAC
SYSTEM ONLY)
TH
ENCLOSURE
CABINET MOUNTING
120 V
TO J9 PLUG
480 V
TO J9 PLUG
TO J9 PLUG
TO J9 PLUG
1 4
129
RELAY/TRANSFORMER BOX
MALE PLUG
14 15
TO AUXILIARY CONTROL PANEL
J9
J9 Plug-R/T Box.....
... Socket Receptacle 12 Pt.
... Socket Female .093" (Qty. 2)
277/120 V, 10 VA
575/120 V, 10 VA
3. Mount Transformer and Relay on auxiliary control panel.
4. If this option is used in conjunction with a humidistat,
wire thermostat and humidistat contacts in parallel with
one another.
and on neutral pad.
ATS Electrical Schematic
CTS(D) Option
Sheet 1 of 1
HT
Page 45

1 4
85
TSL
TSNL
GND
J3
MX100 CONTROL PANEL
TO CLOCK ON DIN RAIL
J9
1 4
129
MALE PLUG
800
902
RELAY/TRANSFORMER BOX
TO CLOCK
LEGEND
Before changing the time setting, turn Disconnect Switch (DS) to "INHIBIT" position;
after desired selection has been made, return DS to "AUTO" position
C-MODE: The "C" plant exercisor starts the engine (No Load Test) by closing the TSNL circuit "C2".
1. Total GENERATOR running time = "C" ON time + "U" timer ON time (if U is used).
2. Mount Clock and Transformer to Din Rail on MX100 Control Panel.
J3 Plug-MX100.....
...Socket Receptacle 8 pt. Mini
...Socket Female Mini (Qty. 3)
OPERATION
NOTES
CAUTION
!
C/D.....
J9 Plug-R/T Box.....
... Socket Receptacle 12 Pt.
... Socket Female .093" (Qty. 2)
D-MODE: The "D" plant execisor simulates normal line failure, starts generator, and transfers load
to emergency at the selected time intervals.
CONNECTION DIAGRAM
Exercise clock, 365 day program.
See sheets 2 & 3 for programming instructions.
M
NO NC NO NC
800
902
J3 PIN 4
J3 PIN 8
J3 PIN 3
9
2 3 4 5 6 7 8
TWO CHANNEL C/D CLOCK
365 DAY
1
NO
21 3 4
M
5
6 7 8
NC
NO NC
800
902
J3 PIN 8
J3 PIN 3
J3 PIN 4
OPERATING INSTRUCTIONS - SEE SHEETS 2 & 3. OPERATING INSTRUCTIONS - SEE SHEETS 4 THRU 14.
........ Clock 24V, 60 Hz
ATS Electrical Schematic
CTS(D) Option
Sheet 1 of 3
C/D 365
Page 46

KEYPAD DESCRIPTION
block "00" and priority "0".
Weekly program steps are automatically assigned to
to store
(for channel 1) twice to 0 (OFF)
to omit Sunday
to omit Saturday
to 00 (once)
to 6 PM
to store
(for channel 1) to 1 (ON)
to omit Sunday
to omit Saturday
to 00 (once)
to 7 AM (press 9 times)
Press "S"
Press "I/O"
Press "Su"
Press "Sa"
Press "m+"
Press "h+"
Press "N"
Press "I/O"
Press "Su"
Press "Sa"
Press "m+"
Press "h+"
thru Friday]
[Example: Channel 1 on at 7 AM and off at 6 PM, Monday
be first written out on the enclosed program worksheets.
Check DST. We recommend that all programs
NOTE: The actual time of day must be set prior to programming.
PROGRAMMING 7-DAY SCHEDULES
to display the time of day
to store
to 27
to 10 (Ocober)
to set the ending date
to 7
to 4 (April)
the display shows zeros
displayed
the dates 03:31 to 09:29 are
Press
Press "S"
Press "Day"
Press "Mounth"
Press
Press "Day"
Press "Month"
Press "CL"
Press "S/W"
[Example: For 1991, April until October 27]
To program different dates for DST:
to display the time of day
to store
to cancel - (zeros will appear)
(dates will appear)
Press
Press "S"
Press "CL"
Press "S/W"
To cancel pre-programmed DST:
a different DST as follows:
Sunday in September every year. You can program
the last Sunday in March and to end on the last
The digi 322 is pre-programmed for DST to begin on
DAYLIGHT SAVINGS TIME (DST) FUNCTIONS
Saving Time is in effect, if appropriate.
on the right and the +1h indicates that Daylight
blink. Channel setting and override status will be indicated
as will the day of the week; the time colon will
Release the . The current date and time will be displayed,
to 15
to 8 (AM)
to 10
to 7 (July)
to 91
Press "m+"
Press "h+"
Press "Day"
Press "Month"
Press "Year"
While holding :
Press "Reset" to clear the time and all programs.
[Example: 8:15 AM, July 10, 1991]
SETTING THE TIME
will blink in the LCD.
attempted with the "N" or "S" button, the missing components
If a program step is not complete and storage is
shown in the display.
pressed. If all storage positions are used up, four 8's will be
A storage position is used each time the button "N" or "S" is
switching times or channels.
can be freely assigned to different dates or periods,
The digi 322 can store up to 322 programs. These 322 programs
PROGRAM STORAGE CAPACITY
program by using the "Prior." key.
A higher priority can be manually assigned to any holiday
receive priority "2".
Holiday programs for one day only automatically
day automatically receive priority "1".
Holiday programs with a duration of more than one
priority - "0" -to standard 7-day programs.
The microprosessor automatically assigns the lowest
PRIORIY
"look back" and assume the correct ON or OFF switch position.
Once the digi 322 is programmed,it will automatically
executed.
priority. Only the highest priority program(s) will be
which of the stored programs for that day have the highest
At beginning of each day the microprocessor determines
EXECUTION OF PROGRAMS
thus closing the block.
within a block is entered by pressing "S",
The last program or portion of a program
stored by pressing "N".
(01, 02.....99). All programs within a block are
days - are assigned an ascending block number
Programs with dates - individual days or period of
receive the block number 00.
All programs withour a date (7-day prograns) automatically
or date block entered from 00 to 99.
The time switch assigns a block number to each program
date need only be entered once.
Likewise, when programming ON and OFF times the
holidays or periods need not be repeated.
i.e. switching times that are repeated for different
The purpose of the blocks is to simplify the programming,
BLOCK FORMATION
Switching Time
Symbol
Momentary Contact
IMP
88
8
Beginning Date
AUTOMATIC
Savings Symbol
Ending Date
RU
Temporary and Fixed
Indicators (OFF)
Manual Override
One Time Symbol
1X
88 88
(Only ON Commands)
Channel Selection 1....4
Duration (Seconds)
Priority
Weekdays
Switching Time
Block
-------
88 88
88
+1h
88 88
88 88
(All 4 Off)
in Automatic Mode
Channel Indicator
Automatic Mode Symbol
Date
Weekdays
Time of Day
Year
88
-------
88:88
88:88
Other displays
4. Example:
Momentary Contact
3. Example:
Daylight savings time
2. Example:
Actual date and time of day
1. Example:
to display various data and information.
The LCD incorporates a number of different elements
LCD DISPLAY ELEMENTS
Recessed buttons - use a long pen point
holiday period
- Used to set the end of a multiday
- Sets the momentary contact (IMP)
- Recalls actual time (Time of Day)
- Manual override for each channel
channel
- Sets ON(1), OFF(0) command for each
- Minute reverse
- Minute advance
- Hour reverse
- Hour advance
- Used to set the month
- Used to set the day of the month
block
- Used to store the final step in a program
program block
- Used to enter an intermediate step in a
- Used to enter a one time schedule
- Used to review the program
- To cancel an individual program step
- Sets year when setting actual time
- Sets priorities
- Switch for daylight savings time functions
- Clears all programs and actual time
- Day selector
I/O
m-
m+
h-
h+
Month
Day
S
N
1X
R
CL
Year
Prior.
S/W
Reset
Mo-Su
DIGI 322-45/2 Y-24
ATS Electrical Schematic
CTS(D) Option
Sheet 2 of 3
C/D 365
Page 47

PROGRAMMING INDIVIDUAL HOLIDAYS
[Example: July 4th - fixed date holiday; Labor Day
(September 2, 1991) - 1-time schedule; Channel 1 off at
12:01 AM]
NOTE: Fixed day holidays will stay in the program until
the year 2079 when the internal clock stops. As one
time holiday commands are executed the month and
day go to zero (visible if you review the program).
The month and day for the next year can be substituted for
the zeros. For example: If you have a holiday program
for Thanksgiving 1991 it is executed on November 28.
If you review the program on November 29th you will
see 00.00 not 11.28; you can enter 11.26, and
press the "N" key to program Thanksgiving for 1992.
Press "Month"
Press "Day"
Press "N"
Press "Month"
Press "Day"
Press "1X"
Press "N"
Press "h+"
Press "m+"
Press "I/O"
Press "S"
to 07 (July)
to 04
to store
to 09 (September)
to 02
1-time schedule only
to store
to 12 AM
to 01
(for channel 1) twice to 0 (OFF)
to store this and close the block
Individual Holiday programs are automatically
assigned priority 2.
NOTE: Ignore the days of the week indicator.
PROGRAMMING MULTIDAY HOLIDAY PERIODS
[Example: Channel 1 off (we will use an OFF command at
12:01 AM) each day from June 22, 1991 until September 3,
The daily program will resume
September 4. As this "School Summer Vacation" will
be different in 1992 this becomes a 1X (one time)
schedule.
Press "Month"
Press "Day"
Press
Press "Month"
Press "Day"
Press "1X"
Press "N"
Press "h+"
Press "m+"
Press I/O"
Press "S"
to 06 (June)
to 22
to set the end date
to 09 (September)
to 03
to set one time
to store
to 12 AM
to 01
(for channel 1) twice to 0 (OFF)
to store this and close the block
Multiday holiday program are automatically assigned
priority 1. These periods can be programmed with a 7-day
schedule that is different than the standard 7-day
schedule. Simply follow the above procedure and add
the respective Monday thru Sunday keys for the
desired days of the week before selecting the hours.
If no ON or OFF times are programmed for some or all
days of the week during a multiday holiday period, the
standard 7-day schedule will be executed.
REPEAT CHANNEL SELECTION
The control of loads is not restricted to a single channel.
All loads can be turned on or off at the same time.
For example, load 1 can be turned OFF simultaneous
to load 2 being turned ON.
SPECIAL PROGRAM FUNCTIONS
MOMENTARY CONTACT PROGRAM
Short duration programs in 1-second intervals up to
59 seconds can be programmed for loads such as bells.
[Example: A noon whistle (channel 2) for six seconds
Monday thru Friday]
Press "h+"
Press "m+"
Press "I/O"
Press "Pulse"
Press "Sa, Su"
Press "S"
to 12 PM - noon
once to 00
(channel 2) once to 1
to 6 (seconds)
to eliminate Saturday & Sunday
to store
NOTE: This can only be used for ON commands.
PRIORITIES
Pressing the "Prior." key after entering the date for a
holiday program permits the assignment of a higher
priority (the highest is 9). This allows that standard
holiday programs with priority 1 or 2 are overridden with
special programs.
MANUAL OVERRIDE
The digi 322 provides temporary and fixed overrides.
Each channel has an elongated button below the .
Pressing this button will change the status of a channel,
i.e. ON to OFF or OFF to ON. The small in the
display will change to indicating an override condition.
This is a temporary override which will in turn be
overridden by the next program change.
For example, if lights are programmed to turn off at 4 PM
and they are turned on manually at 2 PM, they will turn off
at 4 PM.
Pushing the button again will give a FIX 1 (ON) and
pushing it another time will give a FIX 0 (OFF).
These are permanent ON or OFF commands which will
not be overridden by the program. Pushing the elongated
button one more time will return to automatic
operation.
PROGRAM REVIEW
The program can be reviewed by pushing the "R" key
successively. Block 00 is reviewed first and each
weekly ON/OFF command will be displayed on
successive screens. A blank screen indicates the end of
block 00. Block 01 is reviewed next. The first screens
show the holidays followed by a blank screen.
The ON/OFF commands for those days are next followed
by another blank screen which indicates the end of
block 01. Block 02 and any additional blocks are
reviewed in the same manner. Press the to return
to the TOD display anytime.
CANCELLING PROGRAMS
Use the "R" key to find the program step to be cancelled.
Pressing the "CL" key will cancel that step and
it is deleted from memory. To delete holidays from the
program you must clear both the date and the
time/on/off positions. The reset key will cancel all
program steps and also the current time of day, date etc.
EDITING PROGRAMS
Use the "R" key to find the program step to be corrected.
Make the changes as in normal programming
and then use the "N" key to store the change.
BATTERY-POWERED RESERVE
In case of power failure, the built-in nickel-cadmium
battery maintains the time of day, program storage
and the LCD display of 150 hours (6+ days).
During this time, all programmed switching events
will be carried out but the relays will not operate.
The battery reserve operates to its full capacity only
if the digi 322 has been connected to electrical power
for at least 140 hours.
1991 inclusive].
NOTES:
When power is restored after a power failure,
the digi 322 "looks back" and assumes the correct
ON or OFF switch position.
1.
After entering a time of day and pressing
the display may still show the hour that was entered.
For example: if 2:00 PM had been enterned, the
display may show "PM 02:--" after pressing
N or
S
,
N or
S
.
To enter the next time of day program, it is
necessary to change the hour with the h+ or h-
key
even if the next time of day program is to be the
same hour as previously entered. If the hour is not
changed, the Digi322 will not accept the next program.
For example: After entering a 2:00 PM program, if the
next time of day program is to be 2:30 PM, press the
h+ key to 3 PM, and then
2.
the h-key back to
and then press the m+ key to :30.
2 PM,
ATS Electrical Schematic
CTS(D) Option
Sheet 3 of 3
C/D 365
Page 48

21
21
20
20
CONTROL PANEL
BOX TO AUXILIARY
RELAY/TRANSFORMER
Model: SSC; Base
(B)
(B)
SSC
103 103 B
102
MOUNT ON AUXILIARY CONTROL PANEL
back to Normal immediately.
exercise period and cause the ATS to re-transfer
Depressing PB-2 will cancel and reset the
for the set time of the "SSC" timer.
"SSC" timer, causing the engine to start and the ATS to transfer to Emergency
exercise mode is available. Pressing the start button (PB-1) will energize the
& 4 for programming procedures), and when the indicating light "L" is on, the
With Normal power present, the "C" timer will be energized (see sheets 2, 3
immediately.
period, the ATS will re-transfer back to Normal
Should Emergency power fail during the exercise
III. Loss of Emergency Power
II. Manual Reset
I. Manual Start
Contact Block (N.C.)
Nameplate
Contact Block (N.O.),
Blk pushbuutton,
PB-2........Reset Pushbutton & PB to Normal
Nameplate
Contact Black (N.0);
Blk pushbutton,
PB-1........Start Exercise Pushbutton
Nameplate
Bulb
Amber lens
Base
L..............."Exercise mode available" pilot light.
116 total
S9..........Input module 120 VAC.
XFR........
TB..........Terminal Block 12 PT
on
Mount
SSC........Solid State Exerciser. Timer On-delay 2-60 minutes.
Din Rail (3-1/2" long).
increments.
memory locations, 1 minute minimum program
C............Z3000-1A Clock, Programmable over a 365 day period with
A
L
C
S9
SSC
SSC
103
PB-1
PB-2
101
C
ATS LOAD VOLTAGE
XFR
J9
J9
102
21
20
B
J9..........Plug - R/T Box.....
...Socket Female .093" (2)
...Socket Receptacle 12 Pt.
Transformer 25 VA for 208, 240, 480 VAC systems
MODULE
AND MX200 INPUT
TO CABINET FRONT
PLUG
TO J9
103
102
101
B
21
20
INPUT
S9
B
103
J9
(J4 PIN 9)
(J2 PIN 3)
102101
PB-2
YNGND.
MANUAL RESET
P.B. TO NORMAL
PB-1
103102
EXERCISE
START
MODE AVAIL.
EXERCISE
CABINET FRONT
101 B
L
XFR
B
A
A
101
BA
120VAC.
TO GND.
J4 PIN 12
7
(J2 PIN 3)
6
5
4
3
2
1
MALE PLUG
LOCKING TAB
9 12
41
H3
H1
H2
H4
4
2
3
1
4
23
1
240
480
120
X1X2
X2
X1
H4H2
H3
H1
2187
3456
C
OFF
P
T
A
D
6
741 3
5
2
HOUR
ON MX200 CONTROL PANEL
SCHEMATIC
CONNECTION DIAGRAM
OPERATION
LEGEND
0
1
RES
110V/45-60Hz
S/W
P
Prog
?
Auto
M
NL
DAT
C1
9
8
7
65
Enter
43210
(C1)3
2
1
LEGEND REFERENCE NOTES
6. Place identification label on input module and fill in designation as required.
5. Mount and wire input module on din rail on MX200 control panel.
4. Wire pilot devices to "TB" terminal block and MX200 processor as shown.
3. Add wire to J7 and J9 plugs using additional sockets and pins.
2. Add "L" pilot light, "PB-1" & "PB-2" pushbuttons to cabinet door.
1. Mount and wire "C" clock, "SSC" timer, "XFR" transformer and terminal
block on auxiliary control panel.
DISCONNECT PLUG
WIRE IN
TERMINAL BLOCK
WIRE ON MAIN
WIRE CONNECTION
INSTRUCTIONS
ATS Electrical Schematic
CTS(D) Option
Sheet 1 of 4
D4SC
Page 49

PRESS 8 , 2,5 ,0,4 , 9,1 , ENTER
LEGEND REFERENCE NOTES
PRESS " "....(CONTINUOUSLY) TO
PRESS " "....(CONTINUOUSLY) TO
PRESS " "....(CONTINUOUSLY) TO
:
KEY - IN
SEQUENCE
MINUTES
HOUR
YEARMONTH
DATE
T
A
D
T
A
D
1. DATE ENTRY/CHANGE
PRESS 1,4 , 0,0 , ENTER.
EXAMPLE: CURRENT TIME IS 14:00 (2:00PM)
A. AFTER DATE HAD BEEN SET AS EXPLAINED IN SECTION B-1 ABOVE AND POINTER " " IS OVER " ", ENTER TIME.
TIME OF DAY IS EXPRESSED IN MILITARY TIME: 12:00AM (MIDNIGHT) = 0:00, 7:00AM = 7:00, 2:00PM = 14:00
2. SET TIME OF DAY:
NOTE: 8 KEY IS ONLY NECESSARY WHEN DATE IS CHANGED.
B. EXAMPLE: DD/MM/YY IS 25-04-91
A. PRESS " " UNTIL POINTER " " IS OVER " ", THEN ENTER DATE, MONTH AND YEAR & PRESS ENTER
, 0 , 53 , 0
81
PRECEDENCE
1
0
ENTER
54
32
,,,
,
, 4
32
1
1
(FIGURE 1 SHOWS BATTERY SWITCH LOCATION)TO ERASE ANY RESIDUAL PROGRAMMING, THEN BACK TO "1"
MINUTES
HOUR
MONTH
DATE
MINUTES
HOURMONTHDATEOFF
COMMANDS; PRESS ENTER TO RESUME
DISPLAY SHOWS WHEN ENTERING IDENTICAL SWITCHING
"
Err"
OVERRIDE INSTRUCTION).
CONTINUOUS OVERRIDE COMMAND. (SEE CONTINUOUS
PRIORITY PROGRAMMING CAN ONLY BE OVERRIDDEN BY A
NOTES:
0 , 6 , 0 , 0 , ENTER
0 , 0 , ENTER, 1 , 9 , 0 , 8 ,
0 , 0 , 2 , 0 , 8 , 1 , 8 ,
18:00 (6:00 PM) THROUGH 8-19-91 UNTIL 6:00 AM
8-2-91EXAMPLE: DURING PLANT VACATION C1 SWITCHES OFF
DISPLAY "P"
OVER STANDARD PROGRAMS.
PRIORITY PROGRAMS CAN BE EITHER "OFF" (O) OR "ON" (1) & TAKE
MONTH
DATE
OFF
MONTH
DATE
T
A
D
T
A
D
MINUTES
HOUR
MINUTES
HOUR
ON
2 , 2 , 0 , 0 , ENTER
0 , 8 , 0 , 8 , 0 , 6 ,
0 , 6 , 3 , 0 , ENTER
:
KEY - IN
SEQUENCE
DISPLAY "Prog"
5-30-91 & OFF 22:00 (10:00 PM) 6-8-91
EXAMPLE: C1 ON 6:30 AM
FRITHURSWEDTUES
MONOFF
FRI
THURSWEDTUESMONON
HOUR
MINUTES
MINUTES
HOUR
1 , 8 , 0 , 0 , ENTER
0 , 0 , ENTER
ENTER
0 , 8
5 ,
:
KEY - IN SEQUENCE
AT 8:00 AM & OFF AT 18:00 (6:00 PM)
EXAMPLE: SWITCH C1 ON MON-FRI
DISPLAY "Prog"
AFTER CONNECTION TO POWER SUPPLY THE BATTERY SWITCH MUST BE BRIEFLY SET TO "RES"
B. DATE ENTRY/CHANGE, SET TIME OF DAY
A. STARTING UP:
WITH PRIORITY PROGRAM
E. PROGRAMMING BY DATE
D. PROGRAMMING BY DATE
C. PROGRAMMING,DAILY/WEEKLY
GENERAL OPERATING INSTRUCTIONS
ATS Electrical Schematic
CTS(D) Option
Sheet 2 of 4
D4SC
Page 50

LEGEND REFERENCE NOTES
WHILE IN , "?", "Prog", AND "P" MODES, INDIVIDUAL ENTRY ERRORS CAN BE CORRECTED
PRESS " " CONTINUOUSLY TO "AUTO".
1. PRESS " " TO "S/W".
OR "1" , "0" FOR OFF.
""
CONTINUOUSLY UNTIL THE DOT DISAPPEARS.
DOT IN THE DISPLAY. TO CANCEL, AGAIN PRESS AND HOLD "9" THEN "1".
THE CONTINUOUS OVERRIDE "ON" OR "OFF" ( ON/ OFF) STATE IS PRECEDED BY A BLACK
PRESS AND HOLD "9" THEN "1" FOR ON OR OFF CONTINUOUS OVERRIDE.
TO CONTINUOUSLY OVERRIDE AUTOMATIC PROGRAMMING, INCLUDING PRIORITY PROGRAMS
AND RESUMES PREVIOUS PROGRAMMING.
THE NEXT COUNTERACTING PROGRAM CANCELS THE MANUAL OVERRIDE
PROGRAM AUTOMATICALLY CHANGES BY PRESSING "1" , "1" FOR ON
THE CHANNEL STATE (ON OR OFF) CAN BE MANUALLY CHANGED BEFORE OR AFTER THE
PRESS " " CONTINUOUSLY TO "AUTO".
2. PRESS "C1" TO CLEAR PREVIOUS SETTING AND RESUME PRE-SET.
5. PRESS "ENTER" TO LOCK CHANGEOVER TIMES INTO MEMORY.
4. PRESS "2" , "7" , "0" , "9" (9/27 - 1 HOUR).
3. PRESS "3" , "0" , "0" , "3" (3/30 + 1 HOUR).
2. PRESS "C1" (CLEARS DISPLAY).
1. PRESS " " TO "S/W".
(WINTER CHANGEOVER) TO 9/27.
EXAMPLE:CHANGE SUMMER TIME ADVANCE TO 3/30 & BACK TO STANDARD TIME
THE PRE-SET DATES ARE MARCH 25-TH & SEPTEMBER 9-TH. TO CHANGE THE PRE-SET DATES:
IT APPEARS AS FOLLOWS:
A PRE-SET PROGRAM FOR SUMMER/WINTER CHANGEOVER IS PROGRAMMED INTO THE TIMER.
INDICATING THAT ALL PROGRAMS WERE ERASED.
THE HOUR DISPLAY WILL NOW SHOW 116 AVAILABLE PROGRAM ENTRIESSIMULTANEOUSLY.
PRESS "C1" AND "0"PRESS THE " " BUTTON TO POSITION A SOLID ARROW OVER "?".
BY PRESSING "C1" THEN RE-ENTERING INFORMATION.
PRESS " " CONTINUOUSLY TO RETURN TO AUTO.
THE DISPLAY WILL SHOW "END" AFTER ALL PROGRAMS ARE DISPLAYED.
3. PRESS "ENTER" CONTINUOUSLY TO REVIEW ALL PROGRAM ENTRIES.
2. TO RECALL STARTING FROM JANUARY ENTER "0" , "1".
1. PRESS DAT 8.
TO RECALL DATE PROGRAMS PRESS THE " " BUTTON TO POSITION A SOLID ARROW OVER "?"
PRESS " " CONTINUOUSLY TO RETURN TO "AUTO".
WITH SAME "ON",OR "OFF" TIME WILL SHOW FLASHING ARROWS.
1. PRESS "1" TO START RECALL ON MONDAY. OTHER PROGRAM DAYS
THE DISPLAY WILL SHOW "END" AFTER ALL PROGRAMS ARE DISPLAYED.
2. PRESS "ENTER" CONTINUOUSLY TO REVIEW ALL OTHER DAILY PROGRAMS.
SOLID ARROW OVER "?" THE HOUR DISPLAY WILL SHOW REMAINING PROGRAM SPOTS AVAILABLE.
TO RECALL DAILY PROGRAMS PRESS THE " " BUTTON TO POSITION A
M. CONTINUOUS OVERRIDE
L. TEMPORARY OVERRIDE
K. TO RESUME PRE-SET S/W CHANGEOVER:
J. SUMMER/WINTER CHANGEOVER
I. CLEAR ALL PROGRAMS
H. CHANGE OR CLEAR ENTRIES
G. DATE PROGRAM RECALL/REVIEW
F. DAILY PROGRAM RECALL/REVIEW
ATS Electrical Schematic
CTS(D) Option
Sheet 3 of 4
D4SC
Page 51

LEGEND REFERENCE NOTES
NO LOAD TEST:
NO LOAD TEST;
NOTES:
EXAMPLE 2 (WEEKLY PROGRAM)
EXAMPLE 1 (365 DAY PROGRAM)
PROGRAMMING EXAMPLES:
(UNTIL " " DISAPPEARS).
d. TO CANCEL PERMANENT "OFF" OVERRIDE, PRESS AND HOLD "9" THEN PRESS "1"
PRESS AND HOLD "9" THEN PRESS "1" TWICE (UNTIL DISPLAY SHOWS " OFF").
c. TO MANUALLY/PERMANENTLY SWITCH "OFF" THE "NO LOAD TEST" (SHUT DOWN ENGINE),
(UNTIL " " DISAPPEARS).
b. TO CANCEL PERMANENT "ON" OVERRIDE, PRESS AND HOLD "9" THEN PRESS "1" TWICE
PRESS AND HOLD "9" THEN PRESS "1" (UNTIL DISPLAY SHOWS " ON").
2- a. TO MANUALLY/PERMANENTLY SWITCH "ON" THE "NO LOAD TEST" (START ENGINE),
PRESS "1" THEN "0".
b. TO MANUALLY/TEMPORARILY SWITCH "OFF" THE "NO LOAD TEST" (SHUT DOWN ENGINE),
AND RESUMES PREVIOUS PROGRAMMING.
PRESS "1" TWICE. THE NEXT COUNTER-ACTING PROGRAM CANCELS THE MANUAL OVERRIDE
1- a. TO MANUALLY/TEMPORARILY SWITCH "ON" THE "NO LOAD TEST" (START ENGINE),
POINTER " " IS OVER "prog", THEN:
1) TO ENTER THE PROGRAMMING MODE PRESS " " UNTIL
OFF
HOUR
MINUTES
HOUR
MINUTES
ON
4) TURN ATS DISCONNECT SWITCH (DS) TO THE "ON" POSITION.
INSTRUCTIONS" (Section F)
3) TO REVIEW PROGRAM, REFER TO "GENERAL OPERATING
2) PRESS " " CONTINUOUSLY TO RETURN TO AUTO.
2 - TO SELECT TIME (8:15PM), PRESS "1,7,1,5","ENTER"
1 - TO SELECT DAY (Friday), PRESS "5" "ENTER"
B - TO PROGRAM "OFF" COMMAND, PRESS "O", then:
2 - TO SELECT TIME (8:00PM), PRESS "1,7, 0,0 ","ENTER"
1 - TO SELECT DAY (Friday), PRESS "5" "ENTER"
A - TO PROGRAM "ON" COMMAND, PRESS "1", THEN:
POINTER " " IS OVER "prog", THEN:
and "OFF" AT 8:15PM EVERY FRIDAY.
ENGINE SWITCHES "ON" (Channel C1) AT 8:00PM
OFF
MONTH
DATE
HOUR
MINUTES
ON
T
A
D
T
A
D
4) TURN DISCONNECT SWITCH (DS) TO THE "ON" POSITION.
INSTRUCTIONS" (Section G).
3) TO REVIEW PROGRAM, REFER TO "GENERAL OPERATING
2) PRESS " " CONTINUOUSLY TO RETURN TO AUTO.
CORRECT DATES AND MONTHS.
REPEAT STEPS (A) and (B) ABOVE, BUT FOR THE
FOR THE REST OF THE DATES (2-25-91,3-25-91,etc...),
C - TO PROGRAM THE REST OF "ON" and "OFF" COMMANDS
0, 8,28, 01,06 30, ENTER
KEY IN SEQUENCE:
B - TO PROGRAM "OFF" COMMAND FOR 1-28-91 AT 6:30AM,
1, 8, 28,01,06, 00, ENTER
KEY IN SEQUENCE:
A - TO PROGRAM "ON" COMMAND FOR 1-28-91 AT 6:00AM,
1) TO ENTER THE PROGRAMMING MODE PRESS " " UNTIL
11-4-91, 12-2-91, 12-30-91)
6-17-91, 7-15-91, 8-12-91, 9-9-91, 10-7-91
(1-28-91, 2-25-91, 3-25-91, 4-22-91, 5-20-91,
AND "OFF" AT 6:30AM EVERY 28th DAY
ENGINE SWITCHES "ON" (Channel C1) AT 6:00AM,
REFER TO GENERAL OPERATING INSTRUCTIONS SECTION (B).
3. TO SET TIME AND DAY:
--TO RESET, REFER TO GENERAL OPERATING INSTRUCTIONS SECTION (A).
2. FOR INITIAL START UP ONLY: A RESET OPERATION (TOTAL CLEARANCE OF TIME, DAY AND ALL PROGRAMS) IS REQUIRED.
1. CAUTION: BEFORE STARTING TO PROGRAM THE CLOCK, TURN ATS DISCONNECT SWITCH (DS) TO THE "OFF" POSITION.
MONTH
DATE
HOUR
MINUTES
!
ATS Electrical Schematic
CTS(D) Option
Sheet 4 of 4
D4SC
Page 52

NOTES:
OPERATION:
CONNECTIONSSCHEMATIC
LEGEND:
K
XFR
XFR
K
14 & 15 to 14T & 15T respectively.
wire transformer primary to bypass switch Load bus. Re-number wires
3. On Bypass-Isolation transfer switches, eliminate J9 plug and
2. Mount frequency meter on cabinet door.
1. Mount transformer and terminal block on auxiliary control panel.
"K" will continually monitor the load frequency.
voltage to 120 V for the frequency meter.
Transformer XFR is used to step down terminal
The "K" frequency meter operates on 120 VAC.
TO AUXILIARY CONTROL PANEL
...Socket Female .093" (Qty. 2)
...Socket Receptacle 12 Pt.
J9 Plug-R/T Box....
TB..........Terminal Block
(5 VA) for 208, 240 VAC systems
(5 VA) for 480VAC systems
XFR........Transformer
15A
15
14A
14
14
MALE PLUG
15
J9
RELAY/TRANSFORMER BOX
9 12
41
(ON CABINET DOOR)
14A 15A
14A
15A
14
15
PLUG
J9
TO
15A
14A
15
14
GASKET
K...........Frequency Meter
LEGEND REFERENCE NOTES
ATS Electrical Schematic
CTS(D) Option
Sheet 1 of 1
K
Page 53

NOTESREFERENCELEGEND
LEGEND:
N1............. RUNNING TIME METER
GASKET
SCHEMATIC CONNECTIONS
30
31
N1
30A
31A
TO
J9
PLUG
XFRE
XFRE
31
30
31A
30A
31A30A
(ON CABINET DOOR)
1 4
129
RELAY/TRANSFORMER BOX
J9
31
MALE PLUG
30
30
30A
31
31A
XFRE.........TRANSFORMER (EMERGENCY SOURCE)
(5 VA) for 480VAC systems
(5 VA) for 208, 240 VAC systems
TB............ Terminal Block
Socket Receptacle 12 Pt.
Socket Female .093" (Qty. 2)
OPERATION:
NOTES:
N1
TO AUXILIARY CONTROL PANEL
The "N1" Running Time Meter operates on 120VAC.
Transformer XFRE is used to step down terminal
voltage to 120 V for the Running Time Meter.
"N1" will record generator running time.
1. Mount transformer and terminal block on auxiliary control panel.
2. Mount Running Time Meter on cabinet door.
3. On Bypass-Isolation transfer switches, eliminate J9 plug and
wire transformer primary to bypass switch Emergency bus. Re-number wires
30 & 31 to 30T & 31T respectively.
J9.............R/T BOX PLUG
ATS Electrical Schematic
CTS(D) Option
Sheet 1 of 1
N1
Page 54

(see note 2)
Standard safety precautions should be
followed while performing any installation
or service on the device (for example,
shorting the CT, secondaries, etc.).
the end of the part number. A weep hole
When mounting Voltmeter in on enclosure
will be added to voltmeter.
other than a NEMA 1, add "W" to
(see note 2)
added to ammeter standard bill of materials.
the end of the part number. A weep hole and mounting gasket will be
TB1......... 2-Point Shorting Terminal Block
3. (**)
2. Mount TB1 on or adjacent to power panel.
TB1
TO
LOAD
ATS
FROM
FROM
ATS
(see table for part#)
LOAD
TO
& 15 to 14T & 15T respectively.
Load Bus of bypass switch. Renumber wires 14
2. On Bypass-Isolation transfer switches, wire to
1. ( ) Not supplied on NEMA 1 Enclosures.
1. ( ) Not supplied on NEMA 1 Enclosures.
AM
Gasket
Gasket
Current Transformer (SEE TABLE FOR PART#)
CT1.........
Ammeter (AM) indicates load Amperes.
CT1
AM........... Ammeter (SEE TABLE FOR PART#)
Voltmeter (VM) indicates phase load voltage.
VM............Voltmeter
T2
T1
T2
T1
15
14
VM
NOTES:
NOTES:
SINGLE PHASE AMMETER
M1
SINGLE PHASE VOLTMETER
M3
!
DANGER: - HAZARDOUS CONDITIONS.
CT SECONDARY CIRCUITS ARE CAPABLE OF
GENERATING LETHAL VOLTAGES AND
CURRENTS WHEN OPEN CIRCUITED WITH
THEIR PRIMARY CIRCUIT ENERGIZED.
PT is only required for 575V & 600V systems (not shown).
X1
X2
OPERATION
LEGEND
OPERATION
LEGEND
ATS Electrical Schematic
CTS(D) Option
Sheet 1 of 1
M1, M3
Page 55

T1
T2
T3
see note 2
PT is only required for 575V & 600V systems (not shown).
FROM ATS
AM
1
X1C
X2C
CT3
CT2
X1B
X2B
X1A
X2A
T1
T3
T2
CT1
AMS
12
2
3
11
OFF
108
97
OFF
1
3
2
X
X
X
O
O
7,8
O
X
O
O
O
X
O
9,10 11,12
6
4
5
3
2
1
O
5,6
X
O
O
X
1,2
O
X
X
X
O
X
X
3,4
TB1..........
AMS.........
CT1,2,3....
AM........... AMMETER.................................................
6 POINT SHORTING TERMINAL BLOCK....
CURRENT TRANSFORMERS......................
AMMETER SWITCH....................................
TB1
X - INDICATES CLOSED DOUBLE MAKE CONTACT
O - INDICATES OPEN DOUBLE BREAK CONTACT
SWITCH POSITION
TO LOAD
!
THEIR PRIMARY CIRCUIT ENERGIZED.
CURRENTS WHEN OPEN CIRCUITED WITH
GENERATING LETHAL VOLTAGES AND
CT SECONDARY CIRCUITS ARE CAPABLE OF
DANGER: - HAZARDOUS CONDITIONS.
OPERATION
LEGEND
CONNECTION
OPERATION
CONNECTION
LEGEND
AMMETER SWITCH (AMS) ACTION TABLE
VOLTMETER SWITCH (VMS) ACTION TABLE
NOTES:
NOTE:
M2 3 PHASE AMMETER
M4 3 PHASE VOLTMETER
Not supplied on NEMA 1 enclosure.
(see note 3)
of the phase being selected by the
other than a NEMA 1, add "W" to the
will be added to voltmeter.
When mounting Voltmeter in on enclosure
end of the part number. A weep hole
VMS..........
LOAD
TO
PANEL
POWER
FROM
shorting the CT, secondaries, etc.).
or service on the device (for example,
followed while performing any installation
Standard safety precautions should be
3.
2.
1. ( )
Mount TB1 on or adjacent to power panel.
Not supplied on NEMA 1 Enclosures.
Ammeter (AM) reads zero at "OFF" position.
ammeter switch (AMS) (Phase 1, 2, or 3).
Ammeter (AM) indicates the load current
added to ammeter standard bill of materials.
the end of the part number. Aweep hole and mounting gasket will be
Gasket & Spacer
Gasket
14,15,16 to 14T,15T,16T respectively.
Load bus of bypass switch. Renumber wires
On Bypass-Isolation transfer switches, wire to
O-INDICATES OPEN DOUBLE BREAK CONTACT
X-INDICATES CLOSED DOUBLE MAKE CONTACT
(1, 2), (2, 3), or (1, 3).
which the Voltmeter switch manually selects lines
VM Voltmeter indicates phase voltage of that load
VM Voltmeter reads zero at off position.
Gasket & Spacer
Voltmeter Switch
Gasket
Voltmeter (see table for part#)
VM............
7
8
6
5
4
3
2
1
L3,L1
L2,L3
L1,L2
OFF
X X
X
O
O
X
X
O
OOO
O
O
OX
O
POSITION
SWITCH
7,85,63,41,2
16
15
14
VM
L3,L1
L2,L3
L1,L2
OFF
VMS
ATS Electrical Schematic
CTS(D) Option
Sheet 1 of 1
M2,M4
Page 56

LEGEND REFERENCE NOTES
INSTRUCTIONS
OPTO INPUT MODULES
OPTIONAL ACCESSORIES
YNR
YER
S9
Q7
Q2
Remote Transfer to Normal Circuit.-
Remote Transfer to Emergency Circuit.-
Remote Test Switch Circuit.-
Remote Inhibit Transfer to Normal Circuit.-
Remote Peak Shave or Area Protection Circuit-
PROGRAMMING NOTES: IN FIELD PROGRAMMING MENU:
ENABLE YN BYPASS OPTION.
ENABLE YE BYPASS OPTION.
+
-
+
-
INPUT 2
4
3
INPUT 1
2
1
INPUT 2
2
1
INPUT 1
4
3
OR 120VAC.
CODE AS REQUIRED.
PLACE IDENTIFICATION LABEL ON OPTO INPUT MODULE AND FILL IN OPTION4.
TOP TO BOTTOM IN OPTION CODE ORDER. (EXAMPLE: Q2, S9, YER).
MOUNT OPTO INPUT MODULES ON DIN RAIL ON MX200 CONTROL PANEL FROM
OBSERVE POLARITY MARKS ON K-1266 OPTO INPUT MODULE.
OPTO INPUT MODULES ARE AVAILABLE IN 24V (AC OR DC) OR 12VDC
3.
2.
1.
24V (AC OR DC) OR 12VDC INPUT (OPTIONAL)
120VAC INPUT (STANDARD)OPTO INPUT MODULES:
CODE
OPTION
J4 PIN 9YNR
J4 PIN 10YER
J4 PIN 12S9
J2 PIN 13Q7
J4 PIN 12Q2
PANEL INPUT
MX200 CONTROL
JUMPER
INPUT - SEE TABLE BELOW)
(TO MX200 CONTROL PANEL
OPTION 2 OUTPUT
TO GND (J2 PIN 3)
INPUT - SEE TABLE BELOW)
(TO MX200 CONTROL PANEL
OPTION 1 OUTPUT
INPUT - SEE TABLE BELOW)
(TO MX200 CONTROL PANEL
OPTION 2 OUTPUT
TO GND (J2 PIN 3)
INPUT - SEE TABLE BELOW)
(TO MX200 CONTROL PANEL
OPTION 1 OUTPUT
+
-(COM)
+
-(COM)
INPUT
OPTION 1
INPUT
OPTION 2
INPUT
OPTION 2
INPUT
OPTION 1
10
9
8
5
6
7
4
3
2
1
7
6
5
4
3
2
1
to Normal.
Energize YNR input to bypass the time delay and retransfer
to Emergency.
Energize YER input to bypass the time delay and transfer
Energize S9 input to simulate a load test operation.
Energize Q7 input to prevent transfer to Normal.
switch will retransfer back to Normal.
Should Emergency fail during this operation, the transfer
the Generator to start and transfer the load to Emergency.
Energize Q2 input to simulate a normal line failure causing
ATS Electrical Schematic
CTS(D) Option
Sheet 1 of 1
Q2,Q7,YER,YNR
Page 57

Q3 - Remote Inhibit Transfer to Emergency Circuit
OPERATION
INSTRUCTIONS
1. Add tag marked "TO ENABLE Q3 OPTION ENGAGE Q3 JUMPER".
CONNECTION DIAGRAM SCHEMATIC
Voltage applied to Q3 input will allow transfer to Emergency,
conversely, no input on Q3 will result in no transfer to
Emergency.
To enable Q3 option engage Q3 jumper.
Q3 Relay......
Base
3 2 1
8 7 6 5
12 11 10 9
4 14 13
24VAC; 24VDC; 120VAC;
Q3
TO J2 PIN 14
TO J2 PIN 3
14
13
Q3
INPUT
Q3
Q3
INPUT
2. Mount Q3 Relay on Din Rail on MX2OO Control Panel.
ADD TAG PER
INSTRUCTIONS BELOW
ATS Electrical Schematic
CTS(D) Option
Sheet 1 of 1
Q3
Page 58

ON MX200 CONTROL PANEL
J10
J9
CONNECTION DIAGRAM
SCHEMATIC
INSTRUCTIONS
OPERATION
LEGEND
7 9
31
MALE PLUG
9
12
4
1
1. For CTSL and CTS2L, 40-400 AMPS move DS switch to power panel per sheet 2 of 2.
INTERCONNECT PLUGS
31
406
902
SCHEMATIC
CUSTOMER CONNECTIONS
MX200 INPUTS
To enable Q3 option, engage Q3 jumper.
LOCATED ON AUXILIARY
CONTROL PANEL
***
**
*
TO ENABLE Q3 OPTION,
LOCATED ON R/T BOX
ENGAGE Q3 JUMPER
LEGEND
Voltage applied to Q3 input will allow transfer to Emergency, conversely, no input on Q3 will result in no transfer to Emergency.
PS-1838
PS-4587
TO J2 PIN 14
INPUT
R15
TO J2 PIN 3
TO J2 PIN 15
R15
13144
9101112
5678
12
3
INPUT
Q3
TO J2 PIN 3
Q3
13144
9101112
5678
12
3
Base
Load Shed Relay 24VAC; 24VDC;120VACR15..................
Base K-1228
Emergency Transfer Relay, 24VAC; 24VDC; 120VACQ3....................
Q3
R15
J2 PIN 14
J2 PIN 15
J2 PIN 3
10
9
8
24 VDC, 24 VAC, OR 120 VAC
CUSTOMER SUPPLIED INPUT VOLTAGES
LOAD SHED RELAY
TO EMERGENCY RELAY
INHIBIT TRANSFER
R15Q3
453A
902
LSR
TO J4 PIN 3
TO J2 PIN 4
4
3
2
1
(R2)
(R1)
7
6
5
16
15
14
13
12
11
PLUG
J9
TO
MODULE
OUTPUT
TO
PLUG
J10
TO LSR
CE2
31
453A 206
20990030
426
315
209
309
900206
CONTROL PANEL
BOX TO AUXILIARY
TB
MOUNT ON AUXILIARY CONTROL PANEL
31
30
CONTROL PANEL
BOX TO AUXILIARY
RELAY/TRANSFORMER
RELAY/TRANSFORMER
30
902
453A
900
209
206
LOCKING TAB
CE2..................Coil Control Relay
LSR..................Output Relay Module
De-energizing Q3 input prevents transfer to Emergency.
Should the Emergency source become overloaded, a signal can be given to switch to Normal position.
5. Place identification labels on relays and output module and fill in option code as required.
4. Mount and wire relays and output module on din rail on MX200 Control panel.
3. Add J9 & J10 plugs to R/T Box as shown.
2. Mount and wire CE2 relay and terminal block on auxiliary control panel.
902 900
J9 J10
24 VAC FROM R/T BOX
453A
LSR
CE2
J10........Plug - R/T Box.....
Polarization Key
Socket Female .093" (5)
Socket Receptacle 9 Pt.
Socket Male .093" (5)
Pin Housing 9 Pt. Panel Mount
J9..........Plug - R/T Box.....
Socket Female .093" (3)
Socket Receptacle 12 Pt.
CE2
CE2
CIRCUIT
SOLENOID
ATS
306
N1,2,3,N - NORMAL SOURCE T1,2,3,N - LOAD
E1,2,3,N - EMERGENCY SOURCE
30
31
32
20
21
22
EN
E1
E2
E3
TN
NN
T1
N1
T2
N2
T3
N3
307
206
30 31 32
222120
209
CCN
CCN
CCE
CCE
TB....................Terminal Block 12 Point
CONNECT PLUG
WIRE IN INTER-
BLOCK
WIRE CONNECTION
WIRE ON TERMINAL
POINT
WIRE CONNECTION
ATS Electrical Schematic
CTS(D) Option
Sheet 1 of 2
R15
Page 59

SNSEA4A4A3
16
NNN3
22
T3 TN
21
14
N2
T2
15
N1
A4-1
A4-2
A4-2
A4-1
T1
A3-1
A3-1
A3-2
A3-2
20
A3
3231
ENE3E2
-
307R
+
208R
SCE
307A
BR
CNE
E1
SCN
208
30
LOCATED ON AUXILIARY
CONTROL PANEL
***
**
*
TO ENABLE Q3 OPTION,
LOCATED ON R/T BOX
ENGAGE Q3 JUMPER
LEGEND
CONNECT PLUG
WIRE IN INTER-
BLOCK
WIRE CONNECTION
WIRE ON TERMINAL
POINT
WIRE CONNECTION
ATS POWER
LIMIT SWITCH
SCHEMATIC
CIRCUIT SCHEMATIC
ATS POWER
CIRCUIT SCHEMATIC
ATS POWER
ATS POWER PANEL LAYOUT
ATS POWER PANEL LAYOUT
CTSL 40
ATS POWER PANEL LAYOUT
PANEL LAYOUT
ATS Electrical Schematic
CTS(D) Option
Sheet 2 of 2
R15
J8J8
J8J8
DS
SCESCN
+
-
208
307A
208R 307R
BR
CNE
209 307
206 306
J6 PLUG
DS
(1)
(6)
25ZA
SN
SE
26
SN
SE
(BLANK)
(BLANK)
DS
GND
36
25ZA
25ZZ
J8
J8
DS
306
307
CA
208
J8
J8
206
209
CN/CE
SCN SCE
SN
SE A3
A4
TN
1615
T2
14
T3
NN
22
N2
21
N3
209
DS
INHIBIT
25ZA
32
EN
31
E2 E3
25ZZ
208
AUTO
T1
20
N1
CNE
+
BR
307A
208R
307R
-
208
30
E1
25ZZ 25ZA
209208
INHIBIT
DS
AUTO
A4SN
A3SE
SCE
SCN
+
-
307A
208
208R
307R
BR
CNE
323130
161514
222120
NNN1 N2 N3
ENE1 E2 E3
TNT1 T2 T3
DS
AUTO INHIBIT
208
25ZZ
209
25ZA
NN
16
N3
22
T3 TN
21
N2
15
T2
14
N1
CN/CE
T1
20
A4-1
A4-1
A4-2
CA
206 306
32
ENE3
31
SN
SE
209
INHIBIT
30
E2E1
25ZA
A4
A3-1
A3-1
A3-1
A3-1
A3
208
AUTO
206
209
GND
306
25ZZ
DS
A4-2
Page 60

SCHEMATIC
1. For CTSDL 40-400 AMPS move DS switch to power panel per sheet 2 of 2
Plug - R/T Box
Plug - R/T Box
Socket Male .093" (3)
Socket Female .093" (3)
Polarization Key
Socket Receptacle 9 Point
Pin Housing 9 Point Panel Mount
Socket Receptacle 12 Point
Socket Female .093" (3)
24VAC; 24VDC;
120VAC; Base,
120VAC; Base
24VAC; 24VDC;
LSR, RAI-2....
CE2................
TB..................
Q3..................
R15D..............
Coil Control Relay.................
Load Shed Relay..................
Emergency Transfer Relay....
Terminal Block 12 Point......
Output Relay Module............
LEGEND
J10....
J9......
INTERCONNECT PLUGS
SCHEMATIC
CUSTOMER CONNECTIONS
MX200 INPUTS
TO J9
PLUG
TO LSR OUTPUT
MODULE
TO J10
PLUG
4. Mount and wire relays and output modules on din rail on MX200 Control Panel.
3. Add wire number 900 to J10 plug as shown, if necessary.
2. Mount and wire CE2 relay and terminal block on auxiliary control panel.
retranfer to Normal position.
Should the Emergency source become overloaded, a signal can be given to switch to the open position. If Normal source is present, switch will
INSTRUCTIONS
OPERATION
FOUR (4) WIRE SYSTEMS.
NEUTRAL SPECIFIED FOR
SWITCHED OR SOLID
J9
ON MX200 CONTROL PANEL
RELAY/TRANSFORMER
BOX TO AUXILIARY
CONTROL PANELCONTROL PANEL
BOX TO AUXILIARY
RELAY/TRANSFORMER
J10J9
CONNECTION DIAGRAM
TB
MOUNT ON AUXILIARY CONTROL PANEL
9
3
7
1
LOCKING TAB
MALE PLUG 4
1
9
12
902
30 31
900
406
309
309
900
406
PS-1755
453A
902
30
31
453E
TO J2 PIN 3
R15D INPUT
TO J2 PIN 3
Q3 INPUT
453D
3 2 1
8
12
7 6
R15D
5
K-1228
11 10 9
144 13
TO J2 PIN 3
Q3
K-1228
4 14 13
9101112
8 7 6 5
123
TO J2 PIN 14
453A
902
453E
453D
J4 PIN 9
J2 PIN 15
TO J4 PIN 3
TO J2 PIN 4
TO J4 PIN 6
453E
453D
RAI-2
RAI-2
R15D
J4 PIN 9
Q3
R15D
J2 PIN 14
J2 PIN 15
J2 PIN 3
453A
R15DQ3
902 900
J10
24 VAC FROM R/T BOX
24 VDC, 24 VAC, OR 120 VAC
CUSTOMER SUPPLIED INPUT VOLTAGES
LOAD SHED RELAY
TO EMERGENCY RELAY
INHIBIT TRANSFER
LSR
CE2
CE2
31
453A 406
30990030
426
315
CE2
CE2
CIRCUIT
SOLENOID
ATS
306
N1,2,3,NN - NORMAL SOURCE
T1,2,3,N - LOAD
E1,2,3,EN - EMERGENCY SOURCE
30
31
32
20
21
22
EN
E1
E2
E3
TN
NN
T1
N1
T2
N2
T3
N3
307
406
30 31 32222120
309
CCEO
CCEO
CCE
CCE
LSR
1
2
3
4
RAI-2
(R1)
(R2)
5
7
6
11
10
9
8
13
12
15
16
14
ATS Electrical Schematic
CTS(D) Option
Sheet 1 of 2
R15D
Page 61

LIMIT SWITCH SCHEMATIC
LIMIT SWITCH SCHEMATIC
CIRCUIT SCHEMATIC
ATS POWER
ATS POWER
CIRCUIT SCHEMATIC
ATS POWER
ATS POWER PANEL LAYOUT
PANEL LAYOUT
201
LEGEND
WIRE ON
WIRE IN
INTERCONNECT PLUG
TERMINAL BLOCK
WIRE CONNECTION
LOCATED ON RELAY/
TRANSFORMER BOX
OPTIONAL
J8
J8
J8
DS
J8
J8
DS
502
J8
506
308
406
309
25ZA25ZZ
SOL-2
SOL-1
COM234
SOL
SEO
SNO
J8
J8
DS
306
307
CA
208
J8
J8
206
209
CN/CE
DS
AUTO INHIBIT
201
309
209
502
NN
16
N3
22
T3 TN
21
N2
15
T2
14
N1
CN/CE
T1
20
A4-1
A4-1
A4-2
CA
206 306
32
ENE3
31
SN
SE
209
INHIBIT
30
E2E1
25ZA
A4
A3-2
A3-2
A3-1
A3-1
A3
208
AUTO
206
209
GND
306
25ZZ
DS
A4-2
DS
25B
35B
SN-1
SE-1
SNO-1
SN-2 SEO-1
SEO-2
SNO-2
(1)
(6)
TO MX SERIES
25ZA
SE-2
26
J6 PLUG
SN
SE
SNO
SEO
DS
GND
36
25ZA
25ZZ
(6)
SE
ATR/DS
SNO
SEO
GND
25ZA
25ZZ
26
36
25B
35B
TO MX SERIES
J6 PLUG
(1) SN
SEO
SNO
DS
25ZA
SE
SN
506
306
308
SCE
307
-
217
+
400R
RTN
-
307A
+
501R
RTE
206
209
406
SCEO
CN/O
SCN
309
CE/O
500R
SCNO
401R
A4
A4 SN
SNO
SCNO
SCN
A3
A3
SEO
SE
CN/O
-
217
+
RTN
201
400R401R
16
NNN3
22
T3 TN
21
14
N2
T2
15
N1
A4-2
A4-1
A4-1
A4-2
T1
A3-2
A3-2
A3-1
A3-1
20
3231
ENE3E2
-
500R
+
501R
SCE
307A
RTE
CE/O
E1
SCEO
502
30
ATS Electrical Schematic
CTS(D) Option
Sheet 2 of 2
R15D
Page 62

INSTRUCTIONS
OPERATION
LEGEND
ATS Electrical Schematic
CTS(D) Option
Sheet 1 of 2
R26
LSR............Rider 26 Relay 120 VAC ; Base.
"RE", "SR" Relays, "TD", "T26" Timers and
LEGEND REFERENCE NOTES
Nameplate
,
,
,
,
engine. Automatic controls will reset when "Rider 26" contact re-opens.
to dead emergency lines. Operator must silence buzzer and manually isolate and manually restart
start contact and sound buzzer. After 20 seconds, the "TD" contact closes to transfer the switch
will close to open the engine
"T26" timing cycle (5 min.), then 20 second presignal contact "TD"
transfer to Emergency as if normal power failure occurred. Should transfer not occur prior to
5. Place identification labels on input and output modules and fill in option code as required.
3. Mount and wire "BZ" buzzer "LL" "L26" "SL" pilot lights and "PB" pushbutton on cabinet front.
2. Add J9 and J10 plugs to R/T Box as shown.
"TB1" "TB2" Terminals on auxiliary control panel.
1. Mount and wire "XFR" Transformer, "CN2", "LSR",
White lens
Bulb
Nameplate
Base
L26............"Rider 26" pilot light
Red lens
Bulb
Base
LL.............."Generator Lockout" pilot light
RE..............Engine Lockout Relay 120 VAC. ; Base.
T26............Rider 26 Timer, On-delay, set to 5 min.; , Base
Base
TD...............Presignal Timer, On-delay, Set to 20 sec.
BZ...............Buzzer Alarm K-1126; Bracket
SR...............Silence Relay; Relay 120 VAC. Base
Bulb
Amber lens
Base
SL.............."Alarm Silenced" pilot light
J10.............Plug - R/T Box.....
Polarization Key
Socket Female .093" (2)
Socket Receptacle 9 PT.
Socket Male .093" (2)
Pin Housing 9 PT. Panel Mount
J9...............Plug - R/T Box.....
Socket Female .093" (2)
Socket Receptacle 12 PT.
4. Mount and wire input and output modules on din rail on MX200 control panel.
Nameplate
Nameplate
Contact Black (N.0);
Pushbutton,
PB..............Silence Pushbutton
XFR............
Transformer 25 VA for, 480 VAC systems
TB2...............Terminal Block 6 PT,
TB1...............Terminal Block 13 PT,
Input Module.............120 VAC
CN2...............Coil Control Relay
RA3,RAE........Output Relay Module
When "Rider 26" contact closes, "S9" input energizes to allow the switch to start generator and
Page 63

ON MX200 CONTROL PANEL
11
12
13
14
15
16
5
6
7
(R1)
(R2)
1
2
3
4
3
4
1
2
TO J4 PIN 8
TO J4 PIN 3
J4 PIN 12
TO GND (J2 PIN 3)
RA3
INPUT
C26
INPUT
10L
10B
CONNECTION DIAGRAM
SCHEMATIC
J10
RELAY/TRANSFORMER
BOX TO AUXILIARY
CONTROL PANEL
WIRE CONNECTION
POINT
WIRE ON TERMINAL
WIRE CONNECTION
BLOCK
WIRE IN INTER-
CONNECT PLUG
MOUNT ON AUXILIARY CONTROL PANEL
306
8
9
10
1 4
129
LOCKING TAB
MALE PLUG
20
10B
20
21
J9 J9
XFR
ATS NORMAL VOLTAGE
CN2
L26
10A
S9
T26
TD
RE
LL
BZ
SR
SL
C26
10H
10J
10L
10F
RA3
SR
RAE
SR
PB
1OKTD
LSR RA3
T26
RE
10G
ALARM
CONTACT
TIMED
TRIP
CONTACT
RIDER 26
CONTACT
10C
10E
CUSTOMER SUPPLIED
CONTACTS
CCE
CCE
CCN
CCN
20 21 22
323130
307209
306206
CN2
CN2
J10
J9
ATS
SOLENOID
CIRCUIT
J10
J9
RE
P
11A
11
12
ENGINE START
E
CABINET FRONT
GENERATOR
LOCKOUT
H1
H3
H2 H4
X1
X2
X2 X1
120
480
240
1
3 2
4
1
3
2
4
H4
H2
H1
H3
5 1 3
6 2 4
6 5 4
3 2 1
B A
9 8 7
6 5 4
3 2 1
B A
9 8 7
6 5 4 3
7 8 1 2
6 5 4 3
7 8 1 2
10G 10B
RIDER 26
LL
L26
SL
ALARM SILENCED
BZ
PB
SILENCE
10C 10B
10H
10B10J
10B
10J
10G
307
RELAY/TRANSFORMER
BOX TO AUXILIARY
CONTROL PANEL
21
10K
10C10G 10B
10F 10B
10C
10G
TD
T26
RE
SR
10B 10G
11A
11
10C
10G
10J 10B
10G
10H
10J
20 21
10A 10B
XFR
10A
10B
10C
10E
10F
10G
10H
10J
10K
306
307
TO J10 PLUG.
TO MX200
CONTROLLER
AND
CABINET FRONT
TB1
TB2
21
20
11
11A
12
TO J9 PLUG.
E
ENGINE
START
5
6
7
J2 PIN 15
10D
10E
10C
10F
S9
10C
10B
6 5 4
3 2 1
B A
9 8 7
P
TO J1 PIN 1
TO J1 PIN 2
11
12
10D
CN2
10E 30620
21
10B
307
120 VAC.
1 3
97
LOCKING TAB
MALE PLUG
NOTESREFERENCELEGEND
LSR
J9
6 5 4
3 2 1
B A
9 8 7
LSR
10D
10L
10C
10B
10D
10L
RAE
TO J4 PIN 5
10K
10L
ATS Electrical Schematic
CTS(D) Option
Sheet 2 of 2
R26
Page 64

LSR............Rider 26 Relay 120 VAC ; Base
"RE", "SR" Relays, "TD", "T26" Timers and
LEGEND REFERENCE NOTES
Nameplate
,
,
Automatic controls will reset when "Rider 26" contact re-opens.
to open position. Operator must silence buzzer and manually isolate and manually restart engine.
start contact and sound buzzer. After 20 seconds, the "TD" contact closes to transfer the switch
"T26" timing cycle (5 min.), then 20 second presignal contact "TD" will close to open the engine
transfer to Emergency as if normal power failure occurred. Should transfer not occur prior to
5. Place identification labels on input and output modules and fill in option code as required.
3. Mount and wire "BZ" buzzer "LL", "L26", "SL" pilot lights and "PB" pushbutton on cabinet front.
2. Add J9 and J10 plugs to R/T Box as shown.
"TB1" "TB2" Terminals on auxiliary control panel.
1. Mount and wire "XFR" Transformer, "CN2", "LSR",
White lens
Bulb
Nameplate
Base
L26.............."Rider 26" pilot light
Red lens
Bulb
Base
LL.............."Generator Lockout" pilot light
RE..............Engine Lockout Relay 120 VAC. ; Base.
T26............Rider 26 Timer, On-delay, set to 5 min.; Base
; Base
TD...............Presignal Timer, On-delay, Set to 20 sec.
BZ...............Buzzer Alarm K-1126; Bracket
SR...............Silence Relay; Relay 120 VAC. Base
Bulb
Amber lens
Base
SL.............."Alarm Silenced" pilot light
J10.............Plug - R/T Box.....
Polarization Key
Socket Female .093" (2)
Socket Receptacle 9 PT.
Socket Male .093" (2)
Pin Housing 9 PT. Panel Mount
J9...............Plug - R/T Box.....
Socket Female .093" (2)
Socket Receptacle 12 PT.
4. Mount and wire input and output modules on din rail on MX200 control panel.
Nameplate
Nameplate
Contact Black (N.0)
Pushbutton
PB..............Silence Pushbutton
XFR............
Transformer 25 VA K-3051 for 208, 240, 480 VAC systems
TB2...............Terminal Block 6 PT
TB1...............Terminal Block 13 PT
Input Module.............120 VAC
CN2...............Coil Control Relay
RA3,RN..........Output Relay Module
RAE...............Output Relay Module
When "Rider 26" contact closes, "S9" input energizes to allow the switch to start generator and
INSTRUCTIONS
OPERATION
LEGEND
ATS Electrical Schematic
CTS(D) Option
Sheet 1 of 2
R26D
Page 65

ATS Electrical Schematic
CTS(D) Option
Sheet 2 of 2
R26D
J9 J10
SCHEMATIC
CONNECTION DIAGRAM
ON MX200 CONTROL PANEL
10B
10C
10L
10D
LSR
789
AB
123
456
10D
10L
LSR
LEGEND REFERENCE NOTES
10F
10Y
10Z
10E
TO J4 PIN 4
RN
10E
10F
RN
RN
MALE PLUG
LOCKING TAB
7 9
31
120 VAC.
308
10B
21
20 50610Z
CN2
10D
12
11
TO J1 PIN 2
TO J1 PIN 1
P
789
AB
123
456
10B
10C
S9
10F
10C
10E
10D
10L
J2 PIN 15
7
6
5
START
ENGINE
E
TO J9 PLUG.
12
11A
11
20
21
TB2
TB1
CABINET FRONT
AND
CONTROLLER
TO MX200
TO J10 PLUG.
506
308
10K
10J
10H
10G
10Z
10Y
10C
10B
10A
XFR
10B10A
2120
10J
10H
10G
10B10J
10G
10C
11
11A
10G10B
SR
RE
T26
TD
10G
10C
10B10F
10B10G 10C
10K
21
CONTROL PANEL
BOX TO AUXILIARY
RELAY/TRANSFORMER
506
10G
10J
10B
10J
10B
10H
10B
10C
SILENCE
PB
BZ
ALARM SILENCED
RIDER 26
10B
10G
2187
3456
2187
3456
789
AB
123
456
789
AB
123
456
426
315
H3
H1
H2
H4
4
2
3
1
4
23
1
240
480
120
X1X2
X2
X1
H4H2
H3
H1
LOCKOUT
GENERATOR
CABINET FRONT
E
ENGINE START
12
11
11A
P
RE
J9
J10
CIRCUIT
SOLENOID
ATS
J9
J10
CN2
CN2
206 506
209 308
30 31 32
222120
CCN
CCN
CCNO
CCNO
CONTACTS
CUSTOMER SUPPLIED
10Z
10C
CONTACT
26
RIDER
CONTACT
TRIP
TIMED
CONTACT
ALARM
10G
RE
T26
RA3LSR
TD
1OK
PB
SR
RAE
SR
RA3
10Y
10L
10J
10H
C26
SL
SR
BZ
LL
RE
TD
T26
S9
10A
L26
CN2
ATS NORMAL VOLTAGE
XFR
J9
J9
21
20
10B
20
MALE PLUG
LOCKING TAB
9 12
41
10
9
8
10
9
8
10K
RAE
TO J4 PIN 3
TO J4 PIN 5
4
3
2
1
(R2)
(R1)
7
6
5
16
15
14
13
12
11
308
MOUNT ON AUXILIARY CONTROL PANEL
CONNECT PLUG
WIRE IN INTER-
BLOCK
WIRE CONNECTION
WIRE ON TERMINAL
POINT
WIRE CONNECTION
CONTROL PANEL
BOX TO AUXILIARY
RELAY/TRANSFORMER
10B
10L
INPUT
C26
INPUT
RA3
TO GND (J2 PIN 3)
J4 PIN 12
TO J4 PIN 3
TO J4 PIN 8
2
1
4
3
4
3
2
1
(R2)
(R1)
7
6
5
16
15
14
13
12
11
Page 66
SL
L26
LL

CONNECTION TO MX200 CONTROL PANEL:
TS MOUNTED ON DOOR OF ENCLOSURE
TSLGND
(J2 PIN 3)
(J4 PIN 12)
6A..... Maintained Test Switch
2 Pos. Operator
N.O. Contact Block
Nameplate
When activated in the TEST position, TS will simulate a normal line failure.
The TS will automatically transfer the load to the emergency position.
When the test switch is returned to the AUTOMATIC position, the transfer switch
will restore the load to the normal line position.
Should Emergency fail while the ATS
is in the Emergency position, the ATS will transfer back to Normal.
LEGEND:
OPERATION:
TS
AUTO TEST
6B..... Momentary Key Operated Test Switch
2 Pos. Operator
N.O. Contact Block
Nameplate
6C..... Maintained Key Operated Test Switch
2 Pos. Operator
N.O. Contact Block
Nameplate
NOTESREFERENCELEGEND
ATS Electrical Schematic
CTS(D) Option
Sheet 1 of 1
6A,6B,6C
Page 67

CONTACT RATING: 10 AMPS @ 28VDC, 240VAC
CONTACT RATING: 10 AMPS @ 28VDC, 240VAC
DRAWING SHOWN WITH S1
SELECTOR SWITCH IN AUTO
POSITION AND NO POWER
AVAILABLE.
INTERCONNECT PLUG
WIRE IN
TERMINAL BLOCK
WIRE ON MAIN
WIRE CONNECTION
(C)
(B) (A)
(C)
(B) (A)
engine.
(C)
(B)
(A)
P9B11VN (POS. 1)
P9B01VN (POS. 2)
X
X 0
N.C.
S1 OPERATION CHART
X
- CLOSED
0
O
X
X
XO
N.O.
N.C.
START
AUTO
OFF
POSITION
CONTACT
POSITION
SWITCH
O
- OPEN
12A
from front
Nameplate shown
shown inside view
Contact Block
from front
Nameplate shown
shown inside view
Contact Block
(1)N.O.-N.C. Contact Block,
E12A
OFF
START
AUTO
CABINET FRONT
CABINET FRONT
BYPASS SWITCH
TERMINAL BLOCK ON
PB
12B
JUMPER
CONNECTIONS
START
ENGINE
E
E13
E12B
E11
E12A
E13
E12
E11
2. Mount S1 Selector Switch on Cabinet Front.
ON MX200 DIN RAIL
TB
CONNECTIONS
START
ENGINE
E
E12B
E11
ON MX200 DIN RAIL
CONNECTIONS
START
ENGINE
E
12B
OFF
START
AUTO
P RELAY
11
11
12A
12
13
13
11
run until the switch is moved from the start position.
Position closes the circuit to the engine causing it to start and
engine. Then engine can only be started manually in this position.
Position disconnects the transfer switch start contact from the
Position provides normal operation of the transfer switch and the
from the transfer switch panel, as described below.
S1 Selector Switch provides complete start-stop control of the engine
Nameplate,
(1)N.C. Contact Blocks,
Operator
S1........Three position Selector Switch.
4. Add jumper between terminals E12 and E12A and add plug PB on bypass units.
3. Add jumper between terminals 12 and 12A on ATS units.
1. Mount terminal block on MX200 din rail.
E13
TB
CONNECTIONS
START
ENGINE
E
.....Socket Female (Qty. 3)
......Pin Male (Qty. 3)
.....Socket Receptacle, 9 PT.
......Pin Housing, 9 PT
PB......Plug, Engine Start
ADDITIONAL FOR BYPASS SWITCHES:
TB.......Terminal Block
E..........Engine Start Contact
E13
E12A
E11
MALE PLUG
PB
LOCKING TAB
7 9
31
E12B
E11
13
12B
11
LEGEND REFERENCE NOTES
S1
S1
ATS SCHEMATIC
BYPASS SCHEMATIC
OPERATION:
LEGEND:
NOTES:
START
OFF
AUTO
ATS Electrical Schematic
CTS(D) Option
Sheet 1 of 1
S1,S1K
Page 68

NOTESREFERENCELEGEND
ATS SCHEMATIC
CONNECTIONS
13
11
12
12A
E
ENGINE
START
CONNECTIONS
JUMPER
13
11A
12
ENGINE START CONTACTS - P RELAY
BYPASS SCHEMATIC CONNECTIONS
E12
E11
E12B
E
ENGINE
START
CONNECTIONS
11
1 3
97
LOCKING TAB
PB
MALE PLUG
E11
E12 E13
E13
E12A
E12
JUMPER
LEGEND:
S2............Switch, Engine Disconnect
Bracket
TB..........Terminal Block
ADDITIONAL FOR BYPASS SWITCHES:
OPERATION:
The Engine Disconnect Switch (S2) interrupts
the engine start circuit when in the "OFF" position.
NOTES:
11A
E12 E12B
11A
12
13
E
ENGINE
START
CONNECTIONS
E13
S2
ON
OFF
E11
PB
E13
E12
E11
S2
ON
OFF
E13
E12B
E11
E
ENGINE
START
CONNECTIONS
Label
E........Engine Start Connections
S2
S2
TB
TB
PB......Plug, Engine Start
Pin Housing, 9 PT.
Socket Receptacle, 9 PT.
Pin Male (Qty. 3)
Socket Female (Qty. 3)
1. Mount S2 selector switch and terminal block on auxiliary control panel.
2. Add jumper between terminals 12 and 12A on ATS units.
3. Add jumper between terminals E12 and E12A and add plug PB on bypass units.
On Bypass-
Isolation switch.
ATS Electrical Schematic
CTS(D) Option
Sheet 1 of 1
S2
Page 69

CONNECTION TO MX200 CONTROL PANEL:
MOUNTED ON DOOR OF ENCLOSURE
S5GND
(J2 PIN 3)
(J4 PIN 14)
In "AUTO", retransfer to Normal is Automatic after
T timer times out. T time delay is bypassed if
Emergency fails.
In "MANUAL", retransfer to Normal is upon
depression of YN or if Emergency fails.
LEGEND:
OPERATION:
S5
AUTO MANUAL
S5..... Auto/Manual Retransfer Selector Switch
Operator (Not Keyed)
Nameplate
Contact Block (N.O.)
YN..... Pushbutton, Normal
Pushbutton
YNGND
(J2 PIN 3)
(J4 PIN 9)
PUSHBUTTON TO
NORMAL
Contact Block (N.O.)
Nameplate
Operator (Keyed)
PROGRAMMING NOTES IN FIELD PROGRAMMING MENU:
ENABLE (S5) a/m byp OPTION.
NOTESREFERENCELEGEND
ATS Electrical Schematic
CTS(D) Option
Sheet 1 of 1
S5,S5K
Page 70

CONNECTION TO MX200 CONTROL PANEL:
S12.......... AUT0/MANUAL Selector Switch
Switch (two position) - Maintained (Not Keyed)
P9B10VN, N.O. Contact Block
Nameplate
When S12 is in the AUTO position, the Automatic Transfer Switch
functions automatically as specified with switch drawing.
When S12 Switch is in the MANUAL position, the Automatic Transfer
Switch will transfer either direction by depression of Normal or
Once transferred in MANUAL, the switch maintains position selected,
Emergency Pushbutton.
LEGEND:
OPERATION:
YN, YE..... Pushbutton to Normal & Emergency
Respectively
YN = Pushbutton
N.O. Contact Block
MOUNTED ON DOOR OF ENCLOSURE
GND
(J2 PIN 3)
(J4 PIN 13)
S12
AUTO MANUAL
YEGND
(J2 PIN 3)
(J4 PIN 10)
PUSHBUTTON TO
EMERGENCY
YNGND
(J2 PIN 3)
(J4 PIN 9)
PUSHBUTTON TO
NORMAL
Nameplate
YE = Pushbutton
N.O. Contact Block
V-1144, Nameplate
even if the selected power fails.
Switch - Maintained (Keyed)
PROGRAMMING NOTES IN FIELD PROGRAMMING MENU:
ENABLE (S12) AUTO/MANUAL OPTION.
NOTESREFERENCELEGEND
ATS Electrical Schematic
CTS(D) Option
Sheet 1 of 1
S12,S12K
Page 71

TEST
AUTO
YN
X
0
0
O
X
X
0
CLOSED
OPEN
(A)
(B)
O
N.O. CONTACT (LEFT)
N.O. CONTACT (RIGHT)
TSL
YN
GND.
AUTO
(A)
(B)
TEST
YN NORM.
(J2 PIN 3)
(J4 PIN 12)
MOUNTED ON DOOR OF ENCLOSURE
S14......Test Switch, three position, key operated (spring return to center).
Holding the Selector Switch in "TEST" will transfer the ATS to Emergency.
Releasing the switch (to "AUTO" position) will return the ATS to Normal
through the "T" timer function.
Holding the Selector Switch in "YN" Normal position will bypass the "T"
timer and immediately transfer the ATS back to Normal. Releasing the
Selector Switch allows the Selector Switch to return to "AUTO" position.
(J4 PIN 9)
OPERATION
LEGEND
CONNECTION TO MX200 CONTROL PANEL
PROGRAMMING NOTES IN FIELD PROGRAMMING MENU:
ENABLE YN BYPASS OPTION.
NOTESREFERENCELEGEND
ATS Electrical Schematic
CTS(D) Options
Sheet 1 of 1
S14K
Page 72

J6
NETWORK CARD ALLOWS COMMUNICATION OF ATS POSITION,
AVAILABLE SOURCE, TIMERS RUNNING, ETC. TO A REMOTE ANNUNCIATOR
PANEL, PC OR PLC VIA ONE PAIR OF TWISTED WIRES.
1. DISCONNECT ALL POWER TO MX200
PC BOARD BEFORE PLUGGING IN
NETWORK CARD.
2. GROUND YOURSELF AND FOLLOW ESD
PRECAUTIONS WHEN HANDLING NETWORK
CARD AS WELL AS MX200 PC BOARD.
MX200 MOTHERBOARD
3X SPACER
1
3. NETWORK CABLE TO BE BELDEN 8471, 16AWG
(UNSHIELDED TWO CONDUCTOR TWISTED PAIR,
NOT INCLUDED).
CONNECTIONS (NOTE 3)
NETWORK TERMINAL
PROGRAMMING NOTES IN FIELD PROGRAMMING MENU
SET PROGRAM NETWORK TO ON & ENABLE
NETWORK TERMINAL
CONNECTIONS (NOTE 3 & 4)
1
NETWORK CONNECTIONS.
4. OBSERVE PROPER POLARITY WHEN MAKING
YE AND YN BYPASS OPTIONS.
ON LAST UNIT IN CHAIN.
5. TERMINATION JUMPER(J6) TO BE CONNECTED
A
B
(NOTE 5)
TERMINATION
JUMPER
6. CONFIGURATION JUMPER MUST BE INSTALLED TO
CHANGE MODBUS ADDRESS AND MODE. REMOVE TO
PLACE UNIT IN RUN MODE.
CONFIGURATION
JUMPER
(NOTE 6)
BOTTOM VIEW
HEADER
PROGRAMMING
ADDRESS/STATUS
INDICATOR
COMPONENT LAYOUT
INSTRUCTIONS
OPERATION
NOTES
AT S Electrical Schematic
MX200 NETWORK COMMUNICATIONS
ZNET200
Page 73

CONTACT RATING: 10A @ 277 VAC OR 30 VDC
VAC.
ENABLE YN BYPASS OPTION.
PROGRAMMING NOTES IN FIELD PROGRAMMING MENU:
Energizing YNR input will bypass the "T" timer (the retransfer to Normal time delay) to retransfer the ATS to Normal.
When the transfer switch is in the Normal position, the RA4 relay contact will close to signal a remote pilot light.
Energizing S9 input will simulate a Normal power failure programming the transfer switch for a Test operation.
RA4RA3
(9)
(6)
(8)
(5)
OUTPUT CONTACTS TO REMOTE PILOT LIGHTS
NORMAL POSITIONEMERGENCY POSITION
10
9
8
4
2
3
1
12-24 VDC, 12-24 VAC, OR 120 VAC
CUSTOMER SUPPLIED INPUT VOLTAGES
BYPASS "T" TIME DELAYREMOTE TEST
YNRS9
.
12-24
OR
12-24 VDC.
(120 VAC)
OR
TO GND (J2 PIN 3)
J4 PIN 12
J4 PIN 9
(C0M)
(COM)
-
+
-
+
INPUT
S9
INPUT
YNR
OUTPUT CONTACT
NORMAL POSITION
OUTPUT CONTACT
EMERGENCY POSITION
RA4
RA3
J4 PIN 9
TO GND (J2 PIN 3)
JUMPER
J4 PIN 12
TO J4 PIN 3
TO J4 PIN 7
TO J4 PIN 8
2
1
4
3
5
6
7
10
9
8
4
3
2
1
(R2)
(R1)
7
6
5
7
6
5
16
15
14
13
12
11
120 VAC
Input Module.....12-24 VDC/VAC
RA3, RA4..........Output Relay Module
When the transfer switch is in the Emergency position, the RA3 relay contact will close to signal a remote pilot light.
3. Observe polarity marks on 12-24VDC input module if used.
2. Place identification labels on input and output modules and fill in option code as required.
1. Mount and wire input and output modules on din rail on MX200 Control panel.
CONNECT PLUG
WIRE IN INTER-
BLOCK
WIRE CONNECTION
WIRE ON TERMINAL
POINT
WIRE CONNECTION
LEGEND
CONNECTION DIAGRAM
SCHEMATIC
LEGEND
OPERATION
INSTRUCTIONS
ON MX200 CONTROL PANEL
ATS Electrical Schematic
CTS(D) Option
Sheet 1 of 1
VA1
Page 74

LEGEND
OPERATION
INSTRUCTIONS
CONNECTION DIAGRAM
SCHEMATIC
1 4
129
LOCKING TAB
MALE PLUG
1 4
12
9
LOCKING TAB
MALE PLUG
11
12
12A
13
20
21
29A
29B
J7
J9
RELAY/TRANSFORMER
BOX TO POWER PANEL
RELAY/TRANSFORMER
BOX TO AUXILIARY
CONTROL PANEL
20
21
30
31 32
22
MOUNT ON AUXILIARY CONTROL PANEL
WIRE CONNECTION
POINT
WIRE ON TERMINAL
WIRE CONNECTION
BLOCK
WIRE IN INTER-
CONNECT PLUG
16
14 15
20
21
TB
1. Mount and wire "P2" timer, "XFR" transformer (as required), and terminal
J9..........Plug - R/T Box.....
P2
P
29C
29B
20
21
J9 J9
XFR
ATS NORMAL VOLTAGE
MX200
CONTROL PANEL
29C
E
ENGINE
START
CONNECTIONS
TO
J9
PLUG
TO
P RELAY
6
5
4
3
2
1
B
A
9
8
7
1
2
3 4
5
6
L1
L2
29A
P
TO J1 PIN 2
TO J1 PIN 1
29A
29B
TO
AUXILIARY
CONTROL
PANEL
P2
12
11
13
12A
29B
29C
29A
29C
21 20
XFR
RELAY
P2
CONTACT
E
RATING
10 AMP, 240 VAC
15 AMP, 30 VDC
11
12
12A
13
E
ENGINE START CONNECTIONS (P2 RELAY)
P2..........Time relay to Engine start.....1/6 to 300 seconds
TB..........Terminal Block......12 PT
XFR.....
Transformer 10VA.
When the Normal line fails, the P relay and the P2 timer de-energize.
After the set time delay on the P2 timer, the P2 timer N.O. contact closes to start the Engine.
When Normal line restores and the transfer switch is in the Normal position,
the P relay and P2 timer energize and the Engine start contact (E) opens to shut down the Engine.
2. Add J9 plug using additional sockets and pins.
3. Set P Time delay on MX200 controller to minimum setting.
4. Set P2 Time delay to desired time delay to Engine start setting.
5. Wire from P relay to auxiliary control panel terminal block as shown.
NOTES
LEGEND
Located 0n Bypass Switch Terminal Block if accessory is used on Bypass/Isolation Switch.
*
P2 ACCESSORY SHOWN WITH
ATS IN NORMAL POSITION
AND NO POWER AVAILABLE.
CUSTOMER CONNECTIONS
*
INTERCONNECT PLUGS
ON MX200
*
block on auxiliary control panel.
FOR ALL OTHER VOLTAGESFOR 120V
P
29B
P2
J9 FROM R/T BOX
20
29A 29C
21
ATS Electrical Schematic
CTS(D) Option
Sheet 1 of 1
P2
Page 75

.
INSTRUCTIONS
OPERATION
LEGEND
SCHEMATIC
XFR
RA
J9
J11
CONNECTION DIAGRAM
ATS Electrical Schematic
CTS(D) Option
Sheet 1 of 1
CTAP
1
MALE PLUG
9
4
12
PANEL
BLOCK
POINT
ON ATS POWER
CONNECT PLUG
WIRE IN INTER-
WIRE CONNECTION
WIRE ON TERMINAL
WIRE CONNECTION
C
NC
NO
73
J11
A3R
J11
C
72
NC
NO
ON ATS
POWER PANEL
Z(B)TSD
73
J11
A3R
**
J11
C
72
400Amps ONLY
400Amps ONLY
Z(B)TSD
NO
NC
J11
J11
2. Add "A3R" emergency auxiliary contact to power panel.
5. Delete Disconnect Switch (DS) on all units except bypass units.
4. Add wires to J9 plug using additional housing and sockets
6. Add J11 plug between Power Panel and Auxiliary Control Panel.
1. Mount and wire "RA" relay, "XFR" transformer, and terminal block on auxiliary control panel.
3. Add "SL" pilot light, "BZ" buzzer, "PB" silence pushbutton, and "FU" fuse and fuseholder to cabinet door.
If Normal voltage fails and if emergency voltage is present,
the transfer switch will transfer to the emergency position
closing the A3R Auxiliary Contact.
Alarm buzzer (BZ) is now energized to indicate ATS is in Emergency.
To silence alarm buzzer press "PB". This will energize relay "RA"
and silence alarm (SL) light. When the transfer switch restores to Normal,
the CTAP is de-energized.
PB..........Silence Pushbutton
SL.........."Alarm Silenced" pilot light
Pushbutton
N.O. Contact Block
Nameplate
Base
Amber lens
Bulb
Nameplate
...Socket Receptacle 12 Pt.
...Socket Female .093" (2)
...Pin Housing 9 Pt.
...Pin Male .093" (2)
...Socket Receptacle 9 Pt.
...Socket Female .093" (2)
...Polarization Key
...Polarization Key
RA..........Silence Relay; Relay 120 VAC Base
BZ..........Buzzer Alarm , Bracket
XFR........Transformer 25 VA for 208, 240, 480 VAC systems
A3R........Auxiliary contact, ATS in Emergency
FU..........Fuse, 3 Amp, 250 V;
Fuseholder
TB..........Terminal Block 12 PT
J9..........Plug - R/T Box.....
J11..........Plug - Power Panel.....
70
J9
15
XFR
BZ
RA
74
75
SL
RA
RA
PB
73
14
J9
71
J11
FU
72
J11
A3R
ATS LOAD VOLTAGE
H4
15
X1
70
H3
14
H1
X2
71
4
1
A
7
70
5
6
75
74
2
8
3
9
B
75
TB
15
70
71
72
14
MOUNT ON AUXILIARY CONTROL PANEL
15
14
3
9
73
1
72
73
7
74
75
TO AUXILIARY
CONTROL PANEL
LOCKING TAB
MALE PLUG
POWER PANEL
73
LOCKING TAB
RELAY/TRANSFORMER
BOX TO AUXILIARY
CONTROL PANEL
H2
TO J9
PLUG
TO J11
73
NC
A3R
C
ON ATS
72
NO
POWER PANEL
{
PLUG
BZ
SL
70
70
CABINET FRONT
ALARM SILENCED
PB
FU
75
71
SILENCE
75
74
73
72
{
LEGEND
Page 76

Cabinet Locations
MX200 Controller Layout
Power Panel
40 to 200 Amps
40 to 260 Amps
225 to 400 Amps
400 Amps
600 to 1200 Amps
1600 to 3000 Amps
4000 Amps
Relay/Transformer Box
Standard
Delayed
Component Locations
NOTE: You must have the "hand tool" to select these.
Page 81
Page 77
Page 80
Page 79
Page 78
Page 87
Page 86
Page 85
Page 84
Page 83
Page 82
Page 88
Page 90
Page 89
Cabinet Door Locations
MX200 Display

R/T Box
MX200
Microprocessor
Controller
Power Panel
COMPONENT LOCATIONS
Page 78

Battery
Strip and
Access
Code
Label
Engine
Start
Relay
R/T
Box
I/O
Interface
Cabinet Door Locations
Page 79

To R/T Box
To Power Panel
DIN Rail
Typical
Output
Module
Typical
Input
Module
Engine Start
Connections
Clock Program
Backup Battery
Remove protective
strip to enable
clock functions
MX Controller Layout
Page 80

1
23
4
MX200
SYSTEM OPERATIONAL
01:50:20 PM
FRIDAY
JAN 29 99
N
E
POSITION
N
E
SOURCE
Emergengy Source LED (Red)
indicates Emergency Source
is acceptable for use
Normal Source LED (Green)
indicates Normal Source is
acceptable for use
LCD (Liquid Crystal Display
TEST Menu
ALT SET CNFG TEST
Equal to #1 or * or the word
on the LCD above the key.
The word above the key
changes depending on which
screen is being displayed.
Equal to #2 or or the word
on the LCD above the key
The word above the key
changes depending on which
screen is being displayed
Equal to #3 or V or the word
on the LCD above the key.
The word above the key
changes depending on which
screen is being displayed.
Equal to #4 or or the word
on the LCD above the key.
The word above the key
changes depending on which
screen is being displayed.
Current Time and
Date displayed on
units with C/D
exerciser option
Emergency Position
LED (Red) indicates
Power Panel (ATS)
is closed to the
Emergency Source
ALT Menu
SET Menu
CNFG Menu
Keypad
R
MX200 DISPLAY
Normal Position LED (Green)
Indicates Power Panel (ATS)
is Closed to the Normal Source
Page 81

Power Panel — 40 to 200 Amps Solenoid Type
TA G DESCRIPTION
VO LTAGE
CN/CE Solenoid
Solenoid Plunger and Link
SCN/SCE Coil Cutout Switch
A3/A4 Auxiliary Contacts
120
208
220
240
277
380/416
440/480
575/600
ALL
120-480V
SCN/SCE
Coil Cutout Switch
600V
BR
Rectifier
ALL
Page 82

STATIONARY
CONTACT
MOVABLE
CONTACT
E1
T1
N1
E2
T2
N2
E3
T3
N3
EN
TN
NN
ARC
GRID
A4SN
CN/CE
A3SE
DS
CA
CA
Delayed Transition - 40 to 260 Amps
Tag Description
Cable Connection Lug
N 1,2,3, N
E 1,2,3, N
T 1,2,3, N
Wire Size
Stationary Contact Assembly Kit
Stationary Load Contact Assembly Kit
Arc Grid Assembly Kit
Movable Contact Assembly Kit
CN/CE, CA Linear Actuator and Capacitors CA (See Note)
Coil Volts Poles Quantity mf
120 2 1 340-408
2
240
3
1 108-130
208 3 1 145-174
4 1 145-174
575/600 3 2S 36-43
4 2S 36-43
480 3 2S 72-86
4 2S 72-86
Note: 2S denotes two capacitors
wired in series
416 3 2S 72-86
SN CN1 Cut-out Switch
SE CE1 Cut-out Switch
A3 Emergency Position Auxiliary Contact
A4 Normal Position Auxiliary Contact
DS Disconnect Switch (older versions)
Page 83

CN-P
CN/
CE
E1 E2 E3 EN
N1 N2 N3 NN
T1 T2 T3 TN
BR
SCN/A4
SCE/A3
T a g Description
N 1,2,3 N
E 1,2,3 N
T 1,2,3 N
Cable Connection Lug
CN/CE Solenoid
CN-P Solenoid Plunger and Link
SCN/SCE Coil Cutout Switches
A3/A4 Auxiliary Contacts
BR Rectifier
Power Panel - 225 to 400 Amps Molded Type
Page 84

CN/O
CE/O
DS
T3
T2
T1
N3
N2N1
SCE
SCEO
STATIONARY
CONTACT
MOVABLE
CONTACT
SCN
SCNO
ARC GRID
E1 E2 E3
Tag
NL 1,2,3
EL 1,2,3
T 1,2,3
NLN,ELN,TN
ELN
240/41 6
277/480
480
120/208
240 3
3,4
3
3,4
3
Cable Connection Lug, CU Wire
Movable and Stationary
Contact Assembly
(For 3P Units)
Arc GridAssembly Kit
Description
NL 1,2,3
NLN
EL 1,2,3
CN/CNO
CE/CEO
DS
SE/SEO
SN/SNO
SCE/SCE
SCN/SCNO
RTN/R TE
Main Operator Solenoids
Disconnect S witch
Normal Position Contact
Emergency Position Contact
Sol Limit Switch
Coil Rectifier
Voltage System
Volts
Pole
Ph Coil VDCWire
3
3
3
3
3
3
4
4
4
3
480
416
480
208
240
Delayed Transition - 400 Amps
Sol Limit Switch
Page 85

DS
A3 SE
A4
SN
CN
CE
A3
A4
MOVABLE CONTACT
ARC GRID
STATIONARY CONTACT
(ARC GRID REMOVED FOR CLARITY)
N3
E3
N2
E2
N1
E1
NN
EN
Tag
Description
Cable Connection Lug
N 1,2,3, N
E 1,2,3, N
T 1,2,3, N
Stationary Contact Assembly Kit
Arc Grid Assembly Kit
Movable Contact Assembly Kit
CN/CE
Coil Volts Poles
120 2
2
3
240
4
208 3,4
575/600
3
3
4
480
4
Main Operating Coils
416 3
SN CCN Cutout Switch
SE CCE Cutout Switch
A3 Emergency Position Auxiliary Contact
A4 Normal Position Auxiliary Contact
DS Disconnect Switch
Power Panel - 600 to 1200 Amps
Page 86

N 1,2,3
E 1,2,3
T 1,2,3
CN
CE
DS
RN
RE
A3 SE
A4
SN
E3
N3
E2
N2
E1
N1
EN
NN
ARC GRID ASSEMBLY
MOVABLE CONTACT
STATIONARY CONTACT
(ARC GRID REMOVED FOR CLARITY)
DS
A4
A3
SE
Cable Connection Lug
Main Operating Coils
SN CCN Cutout Switch
Normal Position Emergency Contact
Rectifier
Disconnect Switch
Emergency Position Auxiliary Contact
CN/CE
RN, RE
Coil Volts
3
4
3
4
3
4
3
2
416
480
575/600
208
240
120
Poles
2,3
4
Description
Ta g
CCE Cutout Switch
Power Panel - 1600 to 3000 Amps
Page 87

STATIONARY
CONTACT
MOVABLE
CONTACT
ARC GRID
ASSEMBLY
RN
RE
N3
N2
N1
E1
CN
CN
E2
E3
NN
EN
CE
CE
Power Panel — 4000 Amps
TA G DESCRIPTION
Cable Connection L ug
N 1,2,3, N
E 1,2,3, N
CN/CE
Arc Grid Assembly Kit
Movable Contact Assembly Kit
Main Operating Coils
Coil Volts Poles
240
3
4
208
3
4
575/600
3
4
480
3
4
416 3
SN CCN Cut-out Switch
SE CCE Cut-out Switch
A3 Emergency Position Aux Contact
A4 Normal Position Aux Contact
DS Disconnect Switch
RN, RE Rectifier
Wire Size
T 1,2,3, N
Stationary Contact Assembly Kit
Page 88

(J8) (J7)
(J5)
(J10) (J9)
SEC.
PRI.
SEC.
PRI.
SEC.
PRI.
2
1
3
Relay Transformer Box - Standard
Page 89
Item P Description
1
2
3
Transformer
Transformer
Relay
Molded
Other
1VA
25 VA
Flange
Mount
1VA
25 VA
24 V
Coil

SEC.
PRI.
SEC.
PRI.
SEC.
PRI.
2
1
3
(J8) (J7)
(J5)
(J10) (J9)
Relay Transformer Box - Delayed
Page 90
I t e m P D e s c r ipt io n
1
2
3
Transformer (25 VA)
Transformer (1VA)
Relay (24V)

A Auxiliary Contacts:
A1 Operates on normal line failure (SPDT)
A1E Operates on emergency line failure (SPDT)
A3 Closed when switch is in emergency position
A4 Closed when switch is in normal position
A6 Deenergizes external motor control circuit 5 seconds
(adjustable) prior to transfer in either direction
B Battery Chargers
C Plant Exerciser (no load): Automatically starts the generator
to run unloaded at selected intervals (7 day clock operation)
C/D Plant Exerciser (load/no load): Allows the generator to start and run
unloaded or to simulate a power failure, start generator and run
under load; specify weekly
E Engine Start Contact
F Fan Contact: Closed when engine runs (S.P.N.O.)
H Time Delay - Engine Start: Non-adjustable delay on starting engine
after normal failure; factory set at 3 seconds; includes accessory E
HT Heater and Thermostat
J Frequency Sensors: All CTS Automatic Transfer Switches having
an engine generator as the emergency source are supplied with
a sensor to prevent transfer until the emergency power reaches
90% of rated voltage and 95% of frequency (adjustable)
Additional frequency sensors are available:
J1N Adjustable under-frequency sensor (normal)
J2 Adjustable solid state close differential over/under -frequency
sensor (specify if for normal and/or emergency source) (J2N, J2E)
K Frequency Meter
L Indicating LED Pilot Lights:
L1 Indicates switch in emergency position
L2 Indicates switch in normal position
L3 Indicates normal source available
L4 Indicates emergency source available
M Meters:
M1 Ammeter: Single phase
M2 Ammeter: Three phase with phase selector switch
M3 Voltmeter: Single phase
M4 Voltmeter: Three phase with phase selector switch
P1 Time Delay - Engine Start: Adjustable 0.5 to 10 seconds
Q2 Peak Shave/Remote Load Test: Input for peak shave or remote
load test; includes automatic return to normal if emergency
source fails and normal is present; 120 VAC or 24 VDC
Q3 Inhibit Transfer: Input circuit to inhibit transfer to emergency;
120 VAC or 24 VDC
Q7 Inhibit Transfer: Input circuit to inhibit transfer to normal;
120 VAC or 24 VDC
R1 Over-voltage Sensing: Normal (1 or 3 phase)
R7 Over-voltage Sensing: Emergency (1 phase)
R8 Over-voltage Sensing: Emergency (3 phase)
R15 Load Shed Control (CTS): Input to remote circuit for load shed
from emergency to “dead” normal; 120 VAC or 24 VDC
R15D Load Shed Control (CTSD): Input to remote circuit for load shed
from emergency to center off position; 120 V AC or 24 VDC
R16 Phase Sequence Sensing
R17 Under-voltage Sensing: Emergency (3 phase)
R50
In-Phase Monitor: Prevents transfer until two sources are
in relative synchronism
S
Selector and Disconnect Switches:
S1 Three-position selector switch (Stop/Test/Automatic)
S2 Disconnect switch in series with accessory E to disconnect
engine starting circuit
S3 Source selector switch circuit; to select either source as primary
S5 Auto/manual retransfer selector switch
S12 Auto/manual operation for ATS
T
T
ime Delay on Retransfer to Normal: To delay retransfer to
normal source (immediate retransfer on generator set failure);
standard setting 30 minutes, adjustable 0-60 minutes
T3/
T
ime Delays - Presignal for Auxiliary Control: Prior to transfer
W3
between two live sources in either direction, provides an
adjustable (factory set at 20 seconds) resignal contact closure
U
T
ime Delay for Engine Cool Down: Allows engine to run unloaded
after switch retransfers to normal; standard setting 5 minutes,
adjustable 0-60 minutes
W
T ime Delay on Transfer to Emergency: T
o delay transfer to emergency
after normal source failure; standard setting 1 second, adjustable
0-5 minutes
YEN Pushbutton Bypass of T & W Timers
ZNET Network communications interface card
6
Test Switch: A pushbutton (momentary) test switch is standard
on all CTS Automatic Transfer Switches; MX200 microprocessor
switches are standard with load/no load and fast test (with load)
modes and are pass code protected; other selector switches,
available at additional cost, include:
6A Maintained Auto - Maintained Test
6B Maintained Auto - Momentary Test (key operated)
6C Maintained Auto - Maintained Test (key operated)
Note
:
Pass code access standard on MX200 normally
eliminates the need for key operated switch
Standard Features and Options
Page 91

Helpful Shortcuts for Viewing Schematics in
Adobe Acrobat
Key Stroke Function
H Hand Tool
Z Zoom Tool
Ctrl and L Full Screen Viewing Mode¹
Ctrl and 0 (zero) Fit in Window
Ctrl and + (plus) Zoom In
Ctrl and - (minus) Zoom Out
Ctrl and F Find
Ctrl and G Find Again
¹ Press Esc to return to normal viewing mode.
When you view a PDF document in a Web browser, all of the Acrobat Reader
tools are available in the browser. In Windows, you can click the two small
vertical lines (next to the Adobe icon at the left of the tool bar) to minimize or
maximize the tool bar.
Note: Many keyboard commands are mapped to the Web browser rather than to
Acrobat, so some Acrobat keyboard shortcuts may not be available in the
browser window.
Page 92

T i gh t e nin g To rque f or L u g s
Socket Size
Across Flat s
Torque
Lb. - In. Lb. - Ft.
451/8 4
1005/32 8
1203/16 10
150
7/32 12
2001/4 17
2755/16 23
3753/8 31
5001/2 42
6009/16 50
NOTE: A ll c o n t ro l w ir es (18-12 A WG) m u st b e
t or qued t o 19 i n/l bs.
Page 93
Page 94
Page 95
©2002 Caterpillar
All Rights Reserved
Printed in U.S.A.
