Installation Procedure
|
|
| NOTICE |
|---|
|
Care must be taken to ensure that fluids are contained during performance of inspection, maintenance, testing, adjusting and repair of the product. Be prepared to collect the fluid with suitable containers before opening any compartment or disassembling any component containing fluids. Refer to Special Publication, NENG2500, “Caterpillar Tools and Shop Products Guide” for tools and supplies suitable to collect and contain fluids on Caterpillar products. Dispose of all fluids according to local regulations and mandates. |
|
|
- Be sure that the pin bores in the stick, in the link assemblies, and in the bucket cylinder are clean and free of dirt prior to installation of the bucket cylinder.
- Attach a suitable lifting device to bucket cylinder (4), and position the bucket cylinder on the stick. Be sure that the grease fittings in the head end and in the rod end of the bucket cylinder are facing away from the stick.
|
|
|
|
|
|
| Illustration 1 | g00535026 |
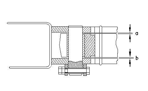
- Slide the bucket cylinder to one side until the bucket cylinder makes contact with the stick. Measure the total clearance between the bucket cylinder and the stick at the pin bore. The total clearance of Measurement (a) plus Measurement (b) must not be more than 1.0 mm (0.04 inch). If the total clearance is less than 1.0 mm (0.04 inch), the addition of shims between the bucket cylinder and stick will not be required. Apply 5P-0960 Molybdenum Grease on pin (7) and install the pin. Install retaining bolt (6) and the nuts.
|
|
|
|
|
|
| Illustration 2 | g00535038 |
- If the total clearance is more than 1.0 mm (0.04 inch), the addition of shims between the bucket cylinder and the stick will be required. Install the shims between the stick and the bucket cylinder. The shims should be installed on the side of the retaining bolt. Apply 5P-0960 Molybdenum Grease on pin (7) and install the pin. Install retaining bolt (6) and the two nuts.
|
|
|
|
|
|
| Illustration 3 | g00535067 |
|
Top View Of Stick And Bucket Cylinder |
|
- Lower the bucket cylinder between the link assemblies. Apply 5P-0960 Molybdenum Grease on pin (2) and install the pin. Install retaining bolt (1) and the nuts.
|
|
|
|
|
|
| Illustration 4 | g00535019 |
- Rotate pin (2) until the retaining bolt is parallel with the link assembly. Tighten the outside nut until the nut is 0.5 mm (0.02 inch) beyond the end of the retaining bolt. Tighten the inside nut against the outside nut to a torque of 70 ± 15 N·m (50 ± 10 lb ft).
|
|
|
|
|
|
| Illustration 5 | g00357378 |
- Check the condition of the O-ring seals in the ends of hose assemblies (5) prior to installation. If the seals are damaged, use new parts for replacement. Connect two hose assemblies (5) to the bucket cylinder.
|
|
|
|
|
|
| Illustration 6 | g00535038 |
- Fill the hydraulic oil tank with oil. Refer to Operation and Maintenance Manual, SEBU7421, “Hydraulic Oil Level – Check”. Lubricate the bucket cylinder pins. Refer to Operation and Maintenance Manual, SEBU7421, “Bucket Linkage – Lubricate”.
- Start the machine, and run the machine at low idle speed. Remove wood block (3). Extend the bucket cylinder to the halfway position. Retract the cylinder rod. The cylinder should be cycled in this manner for approximately ten cycles in order to remove the air from the hydraulic system. Recheck the oil level in the hydraulic oil tank.




