
10 RENR9968-02
Systems Operation Section
i02760777
Fuel System
SMCS C ode: 1250
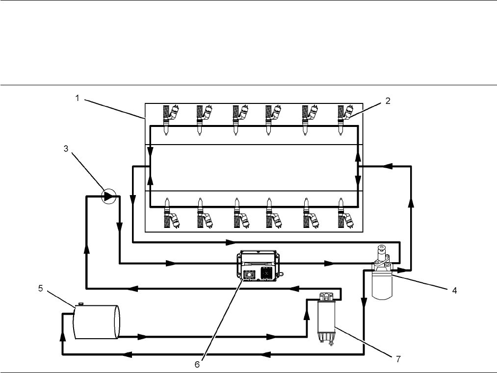
g01155662
Illustration 6
(1) Cylinder head
(2) Unit injector
(3) Fuel transfer pump
(4) S econdary fuel filter and priming pump
(5) F uel tank
(6) Electronic Control Modu le (ECM )
(7) Primary fuel filter and water separa tor
The fuel supply circuit is a conventional design for
unit injector diesel engines. The system consists of
the following major components that are used to
deliver low pressure fuel to the unit injectors:
Fuel tank – Thefueltankisusedtostorethefuel.
Fuel priming pump – The fuel priming pump is used
to ev acuate the air from the fuel s ystem. As the air i s
removed the system fills with fu el.
Fuel filte rs – The primary fuel filter is used to
remove abrasive material and contamination from the
fuel system that may be large enough to damage the
fuel transfer pump. The secondary fuel filter is used
to remove abrasive material and contamination as
small as two microns that could damage the injectors.
Supply lines and return lines – Supply lines an d
return lines are used to deliver the fuel to the different
components.
The purpose of the low pressure fuel supply circuit
is to supply fuel that has been filtered to the fuel
injectors at a rat e that is constant and a pressure
that is constant. The fuel system is als o utilized to
cool components such as the fuel injectors and the
Electronic Control Module (ECM).
Once the injectors receive the low pressure fuel, the
fuel is pressurized again before the fuel is injected
into the cylinder. The unit injector uses mechanical
energy that is provided by the camshaft to achieve
pressures that can be in excess of 200000 kPa
(30000 psi).
Control of the fuel delivery is managed by the
engine’s ECM. Data from several of the engine
systems is collected by the ECM and processed
in order to manage these aspects of fuel injection
control:
•
Injection timing
•
Fuel in jection timing advanc e